Холодильник Electrolux ENF 4451 AOX - инструкция пользователя по применению, эксплуатации и установке на русском языке. Мы надеемся, она поможет вам решить возникшие у вас вопросы при эксплуатации техники.
Если остались вопросы, задайте их в комментариях после инструкции.
"Загружаем инструкцию", означает, что нужно подождать пока файл загрузится и можно будет его читать онлайн. Некоторые инструкции очень большие и время их появления зависит от вашей скорости интернета.

MONTAJ
UYARI
Güvenliğiniz ve cihazın doğru çalışması
için, cihazı monte etmeden önce "Gü‐
venlik bilgileri" bölümünü okuyun.
KONUMLANDIRMA
Bu cihazı, ortam sıcaklığının cihazın bilgi etike‐
tinde belirtilen iklim sınıfına uygun olduğu bir ye‐
re monte ediniz:
İklim sı‐
nıfı
Ortam sıcaklığı
SN
+10°C ile + 32°C arası
N
+16°C ile + 32°C arası
ST
+16°C ile + 38°C arası
T
+16°C ile + 43°C arası
YERLEŞTİRME
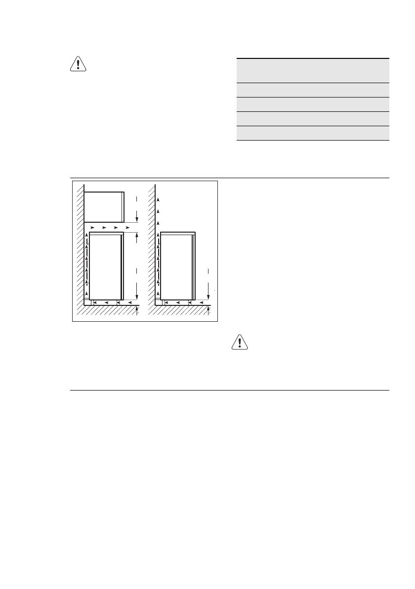
100 mm
15 mm
15 mm
Cihaz, kalorifer, ısıtıcı kazan, doğrudan gelen gü‐
neş ışığı gibi ısı kaynaklarından yeterince uzağa
monte edilmelidir. Havanın, kabinin arka tarafın‐
da rahatça devridaim yapabildiğinden emin olun.
En iyi performansı elde etmek için, eğer cihaz bir
asma tavan altına monte edilmişse, cihaz kabini‐
nin üstü ile duvar arasındaki minimum boşluk en
az 100 mm olmalıdır. Buna rağmen, ideal olarak
cihaz asma tavan altına yerleştirilmemelidir. Ka‐
binin altındaki ayarlanabilir ayakların biri veya
birkaçı kullanılarak doğru düzlemsellik elde edilir.
Eğer kabin bir köşeye yerleştirilir ve menteşeli
kenar duvara doğru bakarsa, rafların çıkarılabil‐
mesi amacıyla kapının yeterince açılabilmesi için
duvar ile kabin arasındaki mesafenin en az 10
mm olması gerekir.
UYARI
Cihazın fişini elektrik prizinden çekebilmek müm‐
kün olmalıdır; dolayısıyla fiş, cihaz kurulumundan
sonra kolay erişilebilir olmalıdır.
ELEKTRİK BAĞLANTISI
Cihazın fişini prize takmadan önce, bilgi etiketin‐
de yazılı voltaj ve frekans değerlerinin evinizin
elektrik beslemesi ile aynı olduğundan emin olun.
Cihaz topraklanmalıdır. Elektrik kablosunun fişi
bu amaca yönelik olarak bir kontak ile donatıl‐
mıştır. Eğer evin elektrik prizi topraklı değilse, yü‐
rürlükteki kanunlara uygun olarak ve bir uzman
teknisyene danışarak cihazı ayrı bir toprak hattı‐
na bağlayın.
Üretici firma, yukarıda belirtilen güvenlik önlemle‐
rine uyulmaması halinde sorumluluk kabul et‐
mez.
Bu cihaz, E.E.C. yönergeleri ile uyumludur.
86 www.electrolux.com
Содержание
- 23 ПОДДЕРЖКА ПОТРЕБИТЕЛЕЙ И СЕРВИСНОЕ ОБСЛУЖИВАНИЕ
- 24 СВЕДЕНИЯ ПО ТЕХНИКЕ БЕЗОПАСНОСТИ; БЕЗОПАСНОСТЬ ДЕТЕЙ И ЛИЦ С
- 27 ПАНЕЛЬ УПРАВЛЕНИЯ; ДИСПЛЕЙ
- 31 ЕЖЕДНЕВНОЕ ИСПОЛЬЗОВАНИЕ; ОЧИСТКА ВНУТРЕННИХ
- 35 ПОЛЕЗНЫЕ СОВЕТЫ
- 37 УХОД И ОЧИСТКА; ПЕРИОДИЧЕСКАЯ ЧИСТКА
- 42 УСТАНОВКА; РАЗМЕЩЕНИЕ
- 44 ШУМЫ ПРИ РАБОТЕ
- 45 ТЕХНИЧЕСКИЕ ДАННЫЕ
- 46 ОХРАНА ОКРУЖАЮЩЕЙ СРЕДЫ












