Холодильник Electrolux ENF 4451 AOX - инструкция пользователя по применению, эксплуатации и установке на русском языке. Мы надеемся, она поможет вам решить возникшие у вас вопросы при эксплуатации техники.
Если остались вопросы, задайте их в комментариях после инструкции.
"Загружаем инструкцию", означает, что нужно подождать пока файл загрузится и можно будет его читать онлайн. Некоторые инструкции очень большие и время их появления зависит от вашей скорости интернета.

INSTALAREA
AVERTIZARE
Citiţi cu atenţie "Informaţiile privind sigu‐
ranţa", pentru siguranţa dv. şi pentru a
asigura utilizarea corectă a aparatului,
înainte de instalarea acestuia.
AMPLASAREA
Instalaţi aparatul într-un loc în care temperatura
ambientului să corespundă cu clasa climatică in‐
dicată pe plăcuţa cu datele tehnice ale aparatu‐
lui:
Clasa cli‐
matică
Temperatura camerei
SN
+10°C până la +32°C
N
+16°C până la +32°C
ST
+16°C până la +38°C
T
+16°C până la +43°C
AMPLASAREA
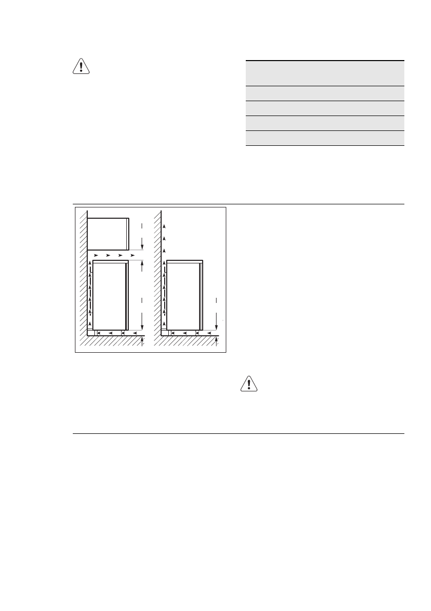
100 mm
15 mm
15 mm
Aparatul trebuie instalat la distanţă faţă de surse‐
le de încălzire, precum radiatoare, boilere, lumi‐
na solară directă etc. Asiguraţi-vă că aerul poate
circula liber prin partea din spate a aparatului.
Pentru a asigura performanţe optime când apa‐
ratul este amplasat sub un corp de mobilier sus‐
pendat, distanţa minimă dintre partea de sus a
aparatului şi corpul suspendat trebuie să fie de
cel puţin 100 mm. În mod ideal, aparatul nu ar
trebui amplasat sub corpuri de mobilier suspen‐
date. Pentru a amplasa aparatul cu precizie în
poziţie orizontală utilizaţi picioarele reglabile de
la bază. Dacă aparatul este amplasat pe colţ, cu
partea cu balamalele spre perete, distanţa dintre
perete şi aparat trebuie să fie de cel puţin 10
mm, pentru a permite o deschidere suficientă a
uşii necesară scoaterii rafturilor.
AVERTIZARE
Trebuie să existe posibilitatea de a decupla apa‐
ratul de la priza de alimentare; prin urmare, şte‐
cherul trebuie să fie accesibil după montare.
CONEXIUNEA ELECTRICĂ
Înainte de a conecta aparatul, asiguraţi-vă că
tensiunea şi frecvenţa indicate pe plăcuţa cu da‐
tele tehnice corespund cu sursa de alimentare a
locuinţei dv.
Aparatul trebuie să fie legat la pământ. Ştecherul
cablului electric este prevăzut cu un contact în
acest scop. Dacă priza din locuinţă nu este le‐
gată la pământ, conectaţi aparatul la o împămân‐
tare separată, în conformitate cu reglementările
în vigoare, după ce aţi consultat un electrician
calificat.
Producătorul nu-şi asumă nicio responsabilitate
dacă aceste măsuri de siguranţă nu sunt respec‐
tate.
Acest aparat este conform cu Directivele C.E.E.
18 www.electrolux.com
Содержание
- 23 ПОДДЕРЖКА ПОТРЕБИТЕЛЕЙ И СЕРВИСНОЕ ОБСЛУЖИВАНИЕ
- 24 СВЕДЕНИЯ ПО ТЕХНИКЕ БЕЗОПАСНОСТИ; БЕЗОПАСНОСТЬ ДЕТЕЙ И ЛИЦ С
- 27 ПАНЕЛЬ УПРАВЛЕНИЯ; ДИСПЛЕЙ
- 31 ЕЖЕДНЕВНОЕ ИСПОЛЬЗОВАНИЕ; ОЧИСТКА ВНУТРЕННИХ
- 35 ПОЛЕЗНЫЕ СОВЕТЫ
- 37 УХОД И ОЧИСТКА; ПЕРИОДИЧЕСКАЯ ЧИСТКА
- 42 УСТАНОВКА; РАЗМЕЩЕНИЕ
- 44 ШУМЫ ПРИ РАБОТЕ
- 45 ТЕХНИЧЕСКИЕ ДАННЫЕ
- 46 ОХРАНА ОКРУЖАЮЩЕЙ СРЕДЫ












