Холодильник Haier C4F744CCG - инструкция пользователя по применению, эксплуатации и установке на русском языке. Мы надеемся, она поможет вам решить возникшие у вас вопросы при эксплуатации техники.
Если остались вопросы, задайте их в комментариях после инструкции.
"Загружаем инструкцию", означает, что нужно подождать пока файл загрузится и можно будет его читать онлайн. Некоторые инструкции очень большие и время их появления зависит от вашей скорости интернета.

4
RUS
RUS
5
ФУНКЦИИ
ПЕРЕД ИСПОЛЬЗОВАНИЕМ
*C4F744C*
Описание
Эта схема может немного отличаться от комплектации холодильника, который вы приобрели.
Настройка температуры «Моя зона» / «My zone»
После разблокировки дисплея нажмите кнопку индикатора «C» для регулировки температуры «My zone», прозвучит
звуковой сигнал, далее войдите в меню настройки показателя температуры «My zone», после этого при каждом нажа-
тии кнопки «С» будет звучать звуковой сигнал, и индикатор температуры можно переключать между такими циклами, как
«Фрукты и овощи» - «Свежесть при 0 °C» - «Мягкая заморозка» - «Фрукты и овощи».
Быстрое охлаждение
После разблокировки дисплея нажмите и удерживайте кнопку «A» в течение 3 секунд, далее прозвучит звуковой сиг-
нал, загорится индикатор функции быстрого охлаждения «а», и в итоге включится функция быстрого охлаждения в холо-
дильной камере. В этом состоянии холодильная камера запустится в соответствии с настройками, и каждый раз после входа
в функцию быстрого охлаждения через 3 часа автоматически будет выполнен выход из нее. После разблокировки дисплея
значок функции быстрого охлаждения «А продолжает гореть в режиме работы; для отключения функции нажмите и удер-
живайте кнопку «а «в течение 3 секунд, далее прозвучит звуковой сигнал, и значок функции быстрого охлаждения погаснет,
иными словами, функция охлаждения в холодильной камере будет отключена.
В режиме быстрого охлаждения невозможно производить регулировку температуры холодильной камеры. Если для регу
-
лировки температуры нажата кнопка «A», то значок функции быстрого охлаждения «А» мигает, указывая при этом на то, что
операция не может быть выполнена.
Быстрая заморозка
После разблокировки дисплея нажмите и удерживайте кнопку «B» в течение 3 секунд, прозвучит звуковой сигнал, загорится значок
функции быстрой заморозки «с», и, таким образом, включится функция быстрой заморозки. В этом состоянии морозильная камера бу-
дет работать в соответствии с настройкой, и после входа в функцию быстрой заморозки через 50 часов автоматически будет выполнен
выход из неё. После разблокировки дисплея значок функции быстрой заморозки «с» продолжает гореть в режиме работы. для отклю-
чения функции нажмите и удерживайте кнопку «В «в течение 3 секунд, далее прозвучит звуковой сигнал, и значок функции быстрой
заморозки «С» погаснет, иными словами, функция заморозки в морозильной камере будет отключена.
Примечание!
Функция автоматически отключается через 50 часов. Затем холодильник будет работать в прежнем режиме.
В случае необходимости замораживания большого количества продуктов за один раз рекомендуется включать функцию быстрой
заморозки за 24 часа перед использованием морозильной камеры.
В режиме быстрой заморозки невозможно произвести регулировку температуры морозильной камеры. Если для регулировки
температуры нажата кнопка «B», то значок функции быстрого замораживания «С» мигает, указывая при этом на то, что опе
-
рация не может быть выполнена.
Режим отпуска
После разблокировки дисплея нажмите кнопку функции режима отпуска «D», прозвучит звуковой сигнал, далее загорится значок
функции режима отпуска «f», и, таким образом, включится функция режима отпуска. В этом состоянии холодильная камера будет
работать в соответствии с настройками и отображать температуру 17 °C. После разблокировки дисплея при горящем значке функции
отпуска «f», нажмите кнопку функции отпуска «D» прозвучит звуковой сигнал, и значок функции отпуска “f» будет выключен, иными
словами, функция режима отпуска будет отключена.
В режиме отпуска настройка температуры охлаждения не может быть выполнена. Если для регулировки температуры на
-
жата кнопка «А., то мигает значок функции отпуска «f», указывающий при этом на то, что операция не может быть выполнена.
Сигнал открытой двери
При открытой двери холодильной камеры более 3 минут система охлаждения дает 3-кратный сигнал каждые 10 секунд; если дверь
холодильной камеры остаётся открытой более 7 минут, то система будет давать 3 кратный сигнал каждые 5 секунд, пока дверь холо-
дильника не будет закрыта.
Память при сбое электропитания
Рабочий статус сбоя электропитания мгновенно сохраняется в памяти, и после повторного включения режима электропитания ра-
бота системы охлаждения выполняется по прежним настройкам.
Примечание!
Если действие над кнопкой той или иной функции не выполняется дольше 5 секунд, то установленное зна
-
чение подтверждается, а остальные кнопки нажимаются для оперативного подтверждения настроек. После установки зна
-
чения индикатор отображает заданную температуру. Через 30 секунд в отсутствии любых действий по нажатию кнопок
дисплей погаснет.
Место размещения
Выравнивание корпуса холодильника. Холодильник должен быть размещен на
ровной и твердой поверхности. Если холодильник помещается на неровную поверх-
ность, в качестве подставки должны использоваться ровные прочные и огнестойкие
материалы. Если холодильник слегка неустойчив, вы можете удлинить или укоро-
тить настраиваемые ножки холодильника, поворачивая их по часовой или против
часовой стрелки.
Для обеспечения правильного закрытия двери холодильник слегка наклонен
назад - конструктивная особенность.
Подготовка перед использованием
Удалите упаковку, основание из пенопласта и клейкую ленту, фиксирующую ак-
сессуары. Проверьте сопроводительную документацию и аксессуары. В случае рас-
хождения в комплектации обратитесь в магазин в течение 5 дней с момента покуп-
ки. Передвиньте холодильник в соответствующее место - смотрите раздел «Место
размещения». Рекомендуется почистить корпус перед использованием. Почистите
наружную и внутреннюю часть холодильника водой перед тем, как разместить в нем
продукты питания. После выравнивания и очистки прибора, дайте ему постоять в не-
рабочем состоянии не менее 6 часов перед тем, как включить его, чтобы обеспечить
его нормальную работу. После подключения холодильника к электроснабжению,
температура холодильника и морозильной камеры автоматически устанавливается
на 5 °C и -18 °C соответственно. Отделение My Zone работает в режиме холодильного
устройства. Режим настройки холодильника. Ручная настройка режима: можно задать
температуру нажатием кнопки «настройка температуры» (смотрите раздел «Описание функций» данного руководства). Загрузите холо-
дильник продуктами питания после того как он некоторое время поработал и отсек холодильника достаточно охладился
.
ФУНКЦИИ
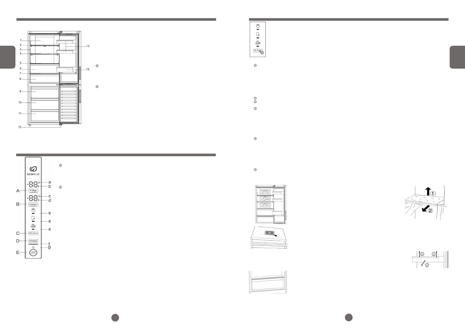
Панель управления
Описание значения основных кнопок на панели управления дисплея:
A
Кнопка регулировки температуры холодильной камеры.
B
Кнопка регулировки температуры морозильной камеры.
C
Кнопка регулировки температуры режимов «Моя зона»/«My zone».
�
Кнопка включение / выключение / функции режима отпуска.
E
Кнопка блокировка и разблокировка дисплея.
Описание функций на панели управления дисплея:
а
Значок функции быстрого охлаждения : показывает включена ли функция быстрого охлаждения.
b
Индикатор значения температуры холодильной камеры.
c
Значок функции быстрой заморозки: показывает включена ли функция быстрой заморозки.
d
Индикатор показывает значение температуры морозильной камеры.
e
Индикатор показывает значение режимов «Моя зона»/«My zone»..
f
Значок функции режима отпуска: показывает включен ли режим отпуска в системе охлаждения.
g
Значок блокировки: Показывает статус блокировки/разблокировки основного дисплея.
Описание функций
Первое включение
После первого подключения холодильника к источнику электропитания загорается дисплей; заданное по
умолчанию значение температуры холодильной камеры - 5 °C, заданное по умолчанию значение темпера-
туры морозильной камеры -18 ° C; значение температуры по умолчанию для «Моя зона»/«My zone». - при-
мерно 0 ° C.
Блокировка и разблокировка экрана дисплея
Разблокировка:
при выключенной панели дисплея откройте дверцу холодильной камеры или коснитесь
любой кнопки на дисплее - загорается значок замка «g». В это же время нажмите функциональную кнопку
блокировки «E» и удерживайте ее в течение 3 секунд: раздастся звуковой сигнал, погаснет значок «g», и это
означает, что экран дисплея разблокирован и горит.
Ручная блокировка:
после разблокировки панели дисплея нажмите и удерживайте функциональную кнопку блокировки «E» в тече-
ние 3 секунд; после того как раздастся звуковой сигнал, загорится индикатор значка «g» - это свидетельствует о том, что панель дисплея
заблокирована, а сам дисплей отключается через 30 секунд без нажатия кнопки.
Автоблокировка:
если дверь холодильной камеры закрыта и в течение 30 секунд не производится нажатие кнопок, панель дисплея
автоматически отключается и блокируется.
Настройка температуры холодильной камеры (2 ~ 8°C)
После разблокировки дисплея нажмите кнопку индикатора «А» для регулировки температуры холодильной камеры, прозвучит
звуковой сигнал, далее войдите в меню настройки показателя температуры холодильной камеры, после этого при каждом нажатии
кнопки «A» будет звучать звуковой сигнал, и механизм настройки индикатора температуры холодильной камеры будет уменьшен на 1
единицу. Температурные режимы холодильной камеры работают в цикле «08» - «07» - «06» - «05» - «04» - «03» - «02» - «08».
Настройка температуры морозильной камеры (-16 ~ -24 °C)
После разблокировки дисплея нажмите кнопку индикатора «В» для регулировки температуры морозильной камеры, прозвучит
звуковой сигнал, далее войдите в меню настройки показателя температуры морозильной камеры, после этого при каждом нажатии
кнопки «В» будет звучать звуковой сигнал, и механизм настройки индикатора температуры морозильной камеры будет уменьшен на
1 единицу. Температурные режимы морозильной камеры работают в цикле «-16» - «-17» - «-18» - «-19» - «-20» - «-21» - «-22» - «-23»
- «-24» - «-16».
Ящик «Моя зона» / «My zone»
Температура в ящике поддерживается на уровне примерно 0 °C. Она может слегка изменяться в зависимо-
сти от разной температуры окружающей среды или режима работы холодильника. Он подходит для хранения
свежей рыбы, мяса и приготовленной пищи в течение 1–2 дней.
В зависимости от требований хранимых продуктов отсек «Моя зона»/«My zone». 0 °C. В соответствии с
требованиями к хранению продуктов, для обеспечения оптимальной питательной ценности продуктов мо-
жет быть выбрана наиболее подходящая температура от -3 °С до 5 °С.
• Для хранения овощей и фруктов, температура приблизительно, как в холодильной камере;
• Для хранения свежей зоны температура, как в холодильной камере, приблизительно к 0°C;
• Для хранения свежей рыбы температура близка к -3°C.
Многоканальный
поток воздуха
Холодильник оснащен системой
многоканального воздушного потока,
с помощью которого холодные потоки
воздуха расположены на каждом уров-
не полок. Это помогает поддерживать
равномерную температуру и обеспе-
чивать более длительное сохранение
свежести продуктов.
Настройка высоты
полок
В холодильнике имеется
ящик для фруктов и овощей. Он
подходит для хранения фруктов,
овощей и т. п.Полку можно пере-
ставить, чтобы установить полку
на место, поместите проушины
с обеих сторон полки на направ-
ляющие и задвиньте ее до упора.
Полка HCS
Фрукты и овощи будут оставаться свежими в течение более длительного времени, если они хранятся в
этом отсеке с автоматическим регулированием влажности. Крышка ящика для фруктов и овощей оснащена
экологичной растительной мембраной с респираторной функцией. Если уровень влажности увеличится в свя-
зи с дыханием свежих овощей, конструкция мембраны откроется, и влага сможет выйти наружу. Если овощи/
фрукты потеряют слишком много воды, мембрана предотвратит испарение воды. Таким образом, влажность
ящика для фруктов и овощей можно поддерживать на максимальном уровне 90%.
Съемные дверные полки
Дверные полки можно снимать для очистки: Возьмитесь руками с каждой стороны полки, потяните ее
вверх (1) и вытяните наружу (2).
Лампа в отсеке холодильника и ее замена
Параметры лампы: 15 В.. Лампа светодиодная и этот источник света обеспечивает малое потребление энергии и долгий срок служ-
бы. Если имеются неисправности, свяжитесь с персоналом по сервисной службой Haier.
1. Светодиодная лампа холодильника
2. Держатель для вин
3. Заводская табличка
4. Складная полка
5.
Крышка ящика для фруктов и овощей
6. Ящика для фруктов и овощей
7. Стеклянная крышка «My zone»
8. Ящик «My zone»
9. Верхний выдвижной ящик для
морозильной камеры
10. Средний выдвижной ящик для
морозильной камеры
11. Нижний выдвижной ящик для
морозильной камеры
12. Регулируемые ножки
13. Полки дверцы
Содержание
- 3 Описание; Место размещения; ФУНКЦИИ; Панель управления; Описание функций
- 4 Большой объем хранения; Рекомендация по хранению для разных продуктов; ОБСЛУЖИВАНИЕ
- 5 ГАРАНТИЙНОЕ И ПОСЛЕГАРАНТИЙНОЕ СЕРВИСНОЕ; МАЗМҰНЫ; Шартты таңбалар; Аксесуарлар; ҚАПТАУ ЖӘНЕ КӘДЕГЕ ЖАРАТУ