HAJDU ID 190 литров, 18.5 кВт ID 50 A - Инструкция по эксплуатации

HAJDU ID 190 литров, 18.5 кВт ID 50 A

Водонагреватель HAJDU ID 190 литров, 18.5 кВт ID 50 A - инструкция пользователя по применению, эксплуатации и установке на русском языке. Мы надеемся, она поможет вам решить возникшие у вас вопросы при эксплуатации техники.

Если остались дополнительные вопросы — свяжитесь с нами через контактную форму.

1 Страница 1
2 Страница 2
3 Страница 3
4 Страница 4
5 Страница 5
6 Страница 6
7 Страница 7
8 Страница 8
9 Страница 9
10 Страница 10
11 Страница 11
12 Страница 12
13 Страница 13
14 Страница 14
15 Страница 15
16 Страница 16
17 Страница 17
18 Страница 18
19 Страница 19
20 Страница 20
21 Страница 21
22 Страница 22
23 Страница 23
24 Страница 24
25 Страница 25
26 Страница 26
27 Страница 27
28 Страница 28
29 Страница 29
30 Страница 30
31 Страница 31
32 Страница 32
33 Страница 33
34 Страница 34
35 Страница 35
36 Страница 36
37 Страница 37
38 Страница 38
39 Страница 39
40 Страница 40
41 Страница 41
42 Страница 42
43 Страница 43
44 Страница 44
Страница: / 44
Загрузка инструкции






ZÁRTRENDSZERŰ INDIREKT FORRÓVÍZTÁROLÓ

UNVENTED HOT WATER STORAGE TANK WITH INDIRECT HEATING

КОСВЕННЫЕ ВОДОНАГРЕВАТЕЛИ СЕРИИ ID

Chauffe-eau mixte


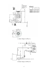
Fali kivitel/Wall hanging

Álló kivitel/Freestanding

ID20A

-

ID25A

ID25S

ID40A

ID40S

ID50A

ID50S



FELSZERELÉSI ÉS HASZNÁLATI ÚTMUTATÓ

INSTALLATION AND OWNER’S MANUAL

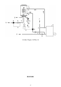
Инструкция по монтажу и эксплуатации

Технический паспорт

Manuel de mise en service, d'opération et d'entretien


A készülék használatba vétele előtt gondosan olvassa el ezt az útmutatót!

Before using this unit, please read this manual carefully.

Перед использованием данного устройства внимательно прочитайте это

руководство.

Avant d'utiliser cet appareil, s'il vous plaît lire attentivement ce manuel.


1221112930 /06


"Загрузка инструкции" означает, что нужно подождать пока файл загрузится и можно будет его читать онлайн. Некоторые инструкции очень большие и время их появления зависит от вашей скорости интернета.

Характеристики

Другие модели - Водонагреватели HAJDU

Все водонагреватели HAJDU