HAJDU 150л, 24кВт AQ IND FC 150 2142113902 - Инструкция по эксплуатации

HAJDU 150л, 24кВт AQ IND FC 150 2142113902

Водонагреватель HAJDU 150л, 24кВт AQ IND FC 150 2142113902 - инструкция пользователя по применению, эксплуатации и установке на русском языке. Мы надеемся, она поможет вам решить возникшие у вас вопросы при эксплуатации техники.

Если остались дополнительные вопросы — свяжитесь с нами через контактную форму.

1 Страница 1
2 Страница 2
3 Страница 3
4 Страница 4
5 Страница 5
6 Страница 6
7 Страница 7
8 Страница 8
Страница: / 8
Загрузка инструкции









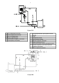
ВОДОНАГРЕВАТЕЛЬ

НАКОПИТЕЛЬНЫЙ С КОСВЕННЫМ И

ЭЛЕКТРИЧЕСКИМ ТИПОМ НАГРЕВАНИЯ

Модели:

IDE, IND

КОСВЕННОЕ

И ЭЛЕКТРИЧЕСКОЕ НАГРЕВАНИЕ

НАСТЕННОЕ ИСПОЛНЕНИЕ

НАПОЛЬНОЕ

ИСПОЛНЕНИЕ

IDE75F

IDE100S

IDE100F

IDE150S

IDE150F

IDE200S

IDE200F



КОСВЕННОЕ

НАГРЕВАНИЕ

НАСТЕННОЕ ИСПОЛНЕНИЕ

НАПОЛЬНОЕ ИСПОЛНЕНИЕ

IND75F

IND100S

IND100F

IND150S

IND150F

IND200S

IND200F






РУКОВОДСТВО ПО МОНТАЖУ И ЭКСПЛУАТАЦИИ


16.005.041.728/01 (1221110967)
(8 oldal)

2007-07-12

E 1498/01

(495) 646-888-0

"Загрузка инструкции" означает, что нужно подождать пока файл загрузится и можно будет его читать онлайн. Некоторые инструкции очень большие и время их появления зависит от вашей скорости интернета.

Характеристики

Другие модели - Водонагреватели HAJDU

Все водонагреватели HAJDU