Генераторы Honda EU70iSRGT - инструкция пользователя по применению, эксплуатации и установке на русском языке. Мы надеемся, она поможет вам решить возникшие у вас вопросы при эксплуатации техники.
Если остались вопросы, задайте их в комментариях после инструкции.
"Загружаем инструкцию", означает, что нужно подождать пока файл загрузится и можно будет его читать онлайн. Некоторые инструкции очень большие и время их появления зависит от вашей скорости интернета.

71
Коммутационная схема
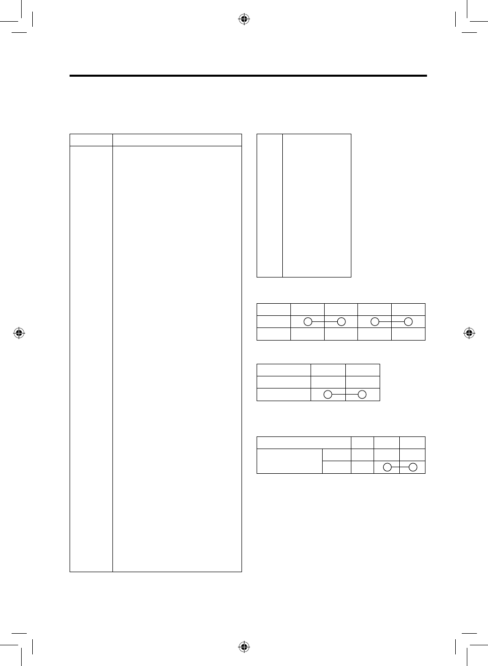
Список сокращений
Символ
Название части
ACCP
ACOR
Bat
CPB
CSw
EcoSw
EgB
FrB
FP
FuB
GeB
GCU
GND
GT
IgC
IgPG
In
IU
IUB
LED
MSw
MW
NF
OLSw
O2Se
PC
Rc
RCB
Rc (OP)
SP
StM
StSw
SW
TCM
ThSe
Предохранитель цепи
переменного тока
Розетка переменного тока
Аккумуляторная батарея
Блок панели управления
Комбинированный
переключатель
Выключатель экодроссельной
заслонки
Блок двигателя
Блок рамы
Топливный насос
Блок предохранителей
Блок генератора
Блок управления генератора
Заземление
Клемма заземления
Катушка зажигания
Импульсное зажигание
генератора
Инжектор
Инвертор в сборе
Блок инвертора
Светодиод
Выключатель зажигания
Первичная обмотка
Шумовой фильтр
Реле уровня масла
Датчик O
2
Персональный компьютер
Дистанционное управление
Блок дистанционного
управления
Пульт дистанционного
управления (дополнительное)
Свеча зажигания
Электростартер
Пусковой переключатель
Вторичная обмотка
Привод управления
дроссельной заслонкой
Датчик температуры
Код цвета провода
Bl
Br
G
Gr
Bu
Lb
Lg
O
P
R
W
Y
V
BE
Черный
Коричневый
Зеленый
Серый
Синий
Голубой
Салатовый
Оранжевый
Розовый
Красный
Белый
Желтый
Фиолетовый
Бежевый
КОМБИНИРОВАННЫЙ ПЕРЕК ЛЮЧАТЕЛЬ
MAIN1
MAIN2
BAT
ACC
ВКЛ
ВЫКЛ
КНОПК А СТАРТЕРА
IG
E
ОТПУСТИТЬ
НАЖАТЬ
ВЫК ЛЮЧАТЕЛЬ ЭКО-ДРОССЕЛЬНОЙ
ЗАСЛОНКИ
КЛЕММА
Hz
GND
SW
ЭКОДРОССЕ ЛЬ
НАЯ ЗАСЛОНКА
ВКЛ
ВЫКЛ
ТЕХНИЧЕСКАЯ ИНФОРМАЦИЯ