Генераторы EuroPower EPS 32 DE - инструкция пользователя по применению, эксплуатации и установке на русском языке. Мы надеемся, она поможет вам решить возникшие у вас вопросы при эксплуатации техники.
Если остались вопросы, задайте их в комментариях после инструкции.
"Загружаем инструкцию", означает, что нужно подождать пока файл загрузится и можно будет его читать онлайн. Некоторые инструкции очень большие и время их появления зависит от вашей скорости интернета.

EUROPOWER
РУКОВОДСТВО
ДЛЯ
ПОЛЬЗОВАТЕЛЯ
www.EUROPOWERGenerators.com
EPS32DE KU/LS-EPS33TDE KU/LS-EPS33TDE KU/MA-EPS40TDE KU/LS-EPS40TDE KU/MA
Стр
.17/19
Datum:
07/12/2010
Rev.:
04
Uitv: TU
Goedkeurder:
YH
Ref: EPS32DE_33TDE_EPS40TDE-04052010rev04-RU.doc
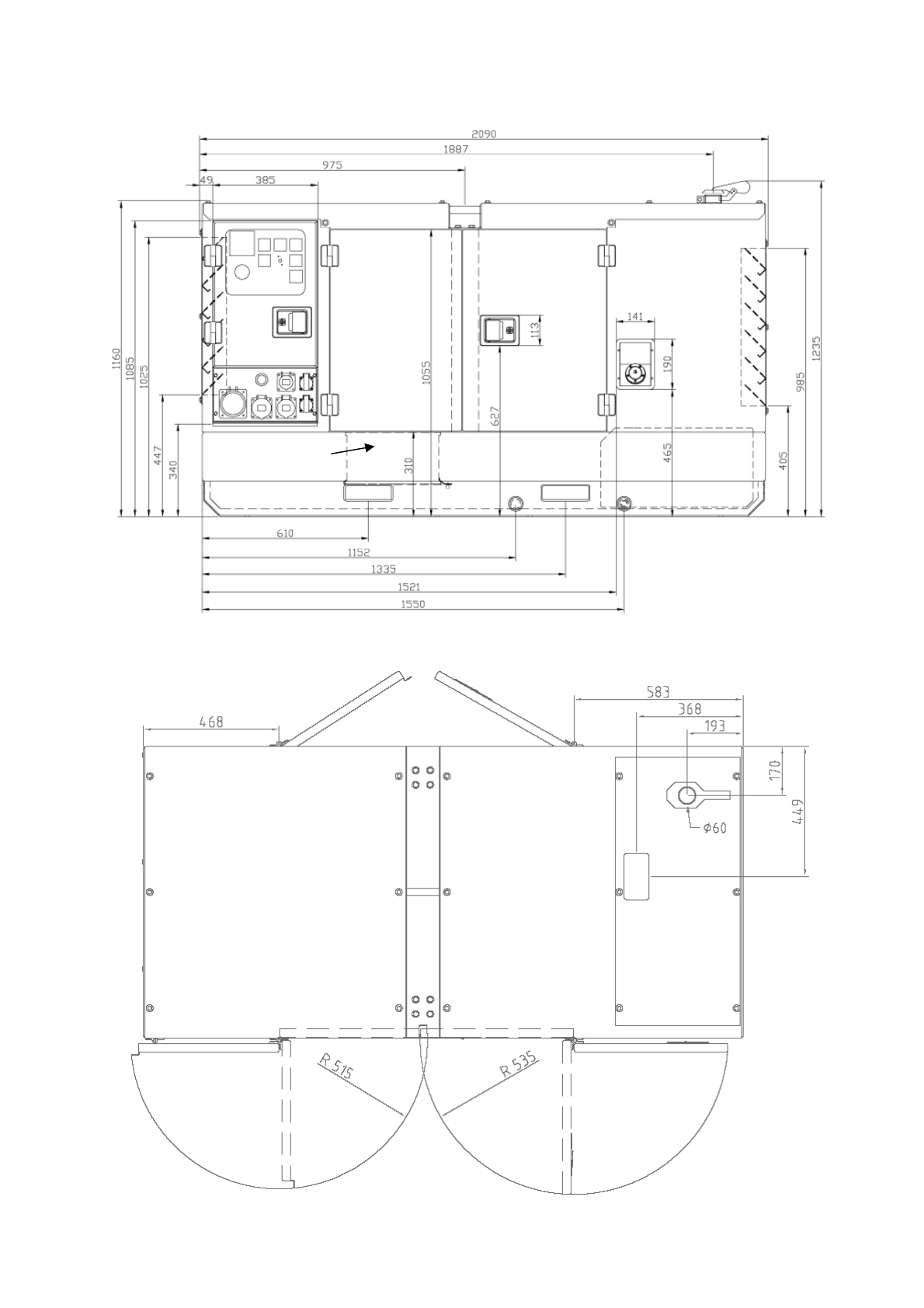
ВИД
СВЕРХУ
ВИД
СВЕРХУ
Бак
Аккумулятор
Бак
Аккумулятор
