Генераторы EuroPower EPS 11 DE - инструкция пользователя по применению, эксплуатации и установке на русском языке. Мы надеемся, она поможет вам решить возникшие у вас вопросы при эксплуатации техники.
Если остались вопросы, задайте их в комментариях после инструкции.
"Загружаем инструкцию", означает, что нужно подождать пока файл загрузится и можно будет его читать онлайн. Некоторые инструкции очень большие и время их появления зависит от вашей скорости интернета.

278
171
750
1990
*
245
708
258
642
198
±5
324±5
1003
750
25
50
27
345
608
292
355
109
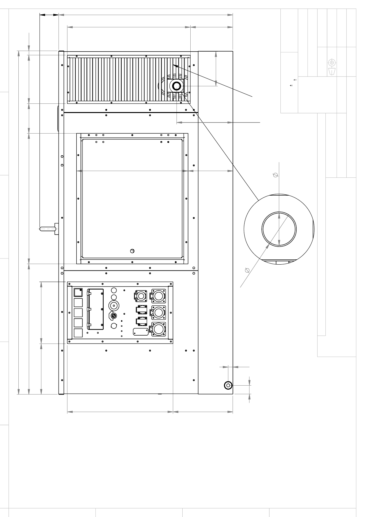
Maten in mm. / Dimensions in mm. / Maße in mm. / Dimens. en mm.
LUCHTUITLAATROOSTER GRILLE D'ÉVACUATION D'AIR AIR OUTLET GRID GITTER FÜR ABLUFT
d=
37
D =
40
DETAIL A SCALE 1 : 2
* De hoofdmaten (lxb) zijn opgegeven inclusief koppen van bouten! * Les dimensions principales (l*l) incluent les têtes du boulons. * Main dimensions (l*w) with bolts included! * Die Hauptmaße (l*b) sind angegeben einschließlich Bolzenköpfe!
ZIJAANZICHT (ZIJDE DIESELPOMP) CÔTÉ POMPE D'ALIMENTATION SIDE VIEW (FUEL PUMP SIDE) SEITENANSICHT (SEITE DIESELPUMPE)
1mm
1°
REMARKS:
TOL. ANGULAR:
TOL. LINEAR:
981112013
ART.NR.:
EUROPOWER
Generators
CUSTOMER:
-
TITLE:
-
-
OD.NR.:
00
REV.NR.:
-
21/11/2008
SENT ON:
REVISED ON:
SH
MH
JeB
DESIGN:
DRAWN:
REVISED:
APPV'D:
UNLESS OTHERWISE SPECIFIED: DIMENSIONS ARE IN MILLIMETERS
DEBUR AND BREAK SHARP EDGES
MATERIAL:
DIRECTORY:
SCALE:1:10
SHEET 1 OF 5
A4
4
1
3
2
A
B
C
D
5
6
MAIN DIMENSIONS GENERATOR
EPS20TDE - EPS18DE (version M-engine)
-
