Fondital WHPS BA 500 SS - Инструкция по эксплуатации

Fondital WHPS BA 500 SS

Водонагреватель Fondital WHPS BA 500 SS - инструкция пользователя по применению, эксплуатации и установке на русском языке. Мы надеемся, она поможет вам решить возникшие у вас вопросы при эксплуатации техники.

Если остались дополнительные вопросы — свяжитесь с нами через контактную форму.

1 Страница 1
2 Страница 2
3 Страница 3
4 Страница 4
5 Страница 5
6 Страница 6
7 Страница 7
8 Страница 8
9 Страница 9
10 Страница 10
11 Страница 11
12 Страница 12
13 Страница 13
14 Страница 14
15 Страница 15
16 Страница 16
17 Страница 17
18 Страница 18
19 Страница 19
20 Страница 20
21 Страница 21
22 Страница 22
23 Страница 23
24 Страница 24
25 Страница 25
26 Страница 26
27 Страница 27
28 Страница 28
Страница: / 28

Содержание:

  • Страница 20 – ОПИСАНИЕ УСТРОЙСТВА; PУC
  • Страница 21 – ТЕХНИЧЕСКИЕ ХАРАКТЕРИСТИКИ МОДЕЛИ WHPS BA SS; МОДЕЛЬ
  • Страница 22 – ТЕХНИЧЕСКИЕ ХАРАКТЕРИСТИКИ МОДЕЛИ WHPS BA DS
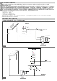
  • Страница 24 – ПРИМЕРЫ ОБОРУДОВАНИЯ; КОТЕЛ
  • Страница 27 – ОБСЛУЖИВАНИЕ И ЧИСТКА
Загрузка инструкции

MANUALE DI INSTALLAZIONE USO E
MANUTENZIONE

WHPS BA SS

WHPS BA DS

IST 03 C 340 - 01

IT

GB

RU

INSTALLATION, USE AND
MAINTENANCE HANDBOOK

ИНСТРУКЦИЯ ПО УСТАНОВКЕ,

ЭКСПЛУАТАЦИИ И ТЕХНИЧЕСКОМУ

ОБСЛУЖИВАНИЮ

"Загрузка инструкции" означает, что нужно подождать пока файл загрузится и можно будет его читать онлайн. Некоторые инструкции очень большие и время их появления зависит от вашей скорости интернета.

Краткое содержание

Страница 20 - ОПИСАНИЕ УСТРОЙСТВА; PУC

20 1. ОБЩИЕ ПОЛОЖЕНИЯ Настоящая инструкция по эксплуатации, являющаяся неотъемлемой и существенной частью изделия, передается монтажником пользователю, который должен хранить ее для дальнейшего обращения к ней.Данная инструкция по эксплуатации всегда должна находиться вместе с изделием в случае, есл...

Страница 21 - ТЕХНИЧЕСКИЕ ХАРАКТЕРИСТИКИ МОДЕЛИ WHPS BA SS; МОДЕЛЬ

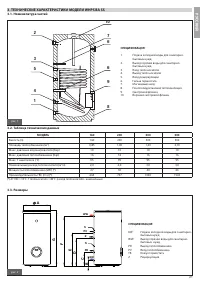
21 9 76 1 2 3 4 5 6 8 10 рис. 1 3.1. Номенклатура частей 3. ТЕХНИЧЕСКИЕ ХАРАКТЕРИСТИКИ МОДЕЛИ WHPS BA SS 3.2. Таблица технических данных (*) ΔТ ГВС = 35°C, Т теплоносителя = 80°C, расход теплоносителя - номинальный A G B C D E F WW PV PR Z KW Tr Tr 3.3. Размеры рис. 2 МОДЕЛЬ 160 200 300 500 Емкость ...

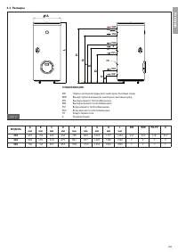
Страница 22 - ТЕХНИЧЕСКИЕ ХАРАКТЕРИСТИКИ МОДЕЛИ WHPS BA DS

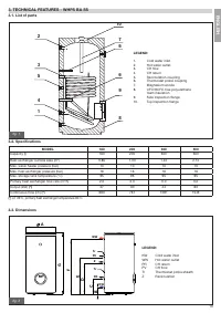
22 МОДЕЛЬ A мм B мм C мм D мм E мм F мм G мм KW WW PR-PV Z 160 610 132 293 533 683 904 1056 3/4’’ 3/4’’ 3/4’’ 3/4’’ 200 610 132 293 633 783 1177 1329 3/4’’ 3/4’’ 3/4’’ 3/4’’ 300 650 130 320 810 960 1390 1560 1’’ 1’’ 1’’ 1’’ 500 750 143 373 913 1063 1633 1818 1’’ 1’’ 1’’ 1’’ 4.1. Номенклатура частей ...

Характеристики

Другие модели - Водонагреватели Fondital