Фильтры для воды Аквафор DWM-312S PRO - инструкция пользователя по применению, эксплуатации и установке на русском языке. Мы надеемся, она поможет вам решить возникшие у вас вопросы при эксплуатации техники.
Если остались вопросы, задайте их в комментариях после инструкции.
"Загружаем инструкцию", означает, что нужно подождать пока файл загрузится и можно будет его читать онлайн. Некоторые инструкции очень большие и время их появления зависит от вашей скорости интернета.

7
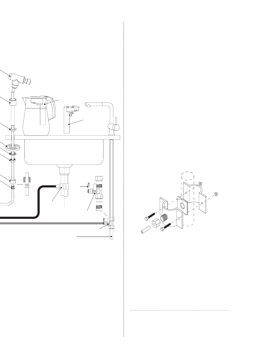
10. Вставьте в отверстие подставки (8) свобод-
ный конец трубки, идущий от наконеч ника
для чистой воды. Установите ограничитель:
снизу столешницы наденьте на свободный
конец трубки втулку (13), а затем цангу (14).
Рекомендуемое расстояние от конца резьбо-
вого хвостовика до втулки – около 600 мм.
Установка
дренажного хомута
Устанавливать хомут рекомендуется на слив
раковины (мойки) перед сифоном (дренажный
хомут подходит к большинству сливных труб
диаметром около 40 мм).
11. Снимите с прокладки защитную пленку.
Приклейте уплотнительную прокладк у
с внутренней стороны хомута, так чтобы
отверстие в прокладке совпало с отвер-
стием в штуцере хомута.
12. Установите хомут на трубу и затем затяните
болты. Болты следует затягивать равно-
мерно, чтобы две части хомута распола-
гались параллельно.
Обратите внимание на то, чтобы подводящие
трубки проходили свободно, без изломов.
Установка наконечника
для чистой воды с подставкой
и ограничителем
7. Просверлите в мойке (столешнице) отверстие
диаметром 12 мм.
8. Установите резиновую прокладку (9) снизу
в подставку (8). Вставьте резьбовой хвосто-
вик подставки в отверстие столешницы.
9. Снизу столешницы наденьте на резьбовой
хвостовик пластиковую (10) и металлическую
стопорную (11) шайбы и наверните гайку (12).
OSMO PRO
8
7
17
18
9
10
11
12
13
14
2
3
4
1
6
Водопровод холодного
водоснабжения
Положение
«Кран закрыт»
5
16
15
12. Накидная гайка
13. Металлическая втулка
14. Цанга
15. Стопорные клипсы
16. Соединительная трубка
(красная)
17. Отсекатель
18. Накопительная емкость
Схема установки водоочистителя
13. Сквозь штуцер хомута просверлите от-
верстие диаметром 7 мм. На свободный
конец дренажной трубки (черного цвета)
наденьте пластиковую гайку и, вставив
трубку в дренажный хомут на 20–30 мм,
наверните гайку на штуцер.
14. Соберите водоочиститель, установив моду-
ли в коллектор (см. раздел «Установка мо-
дулей»). Порядок установки модулей пока-
зан на «Схеме установки водоочистителя».
ПРИМЕЧАНИЕ.
На этом этапе устанавливать
мембранный модуль не нужно. Для проведе-
ния промывки фильтра ввинтите в среднее
гнездо коллектора промывочную заглушку.
Содержание
- 3 Модули PRO
- 4 Комплектация; ТЕХНИЧЕСКИЕ ХАРАКТЕРИСТИКИ
- 5 Принцип работы DWM Pro
- 6 Гид по установке; Установка DWM Pro; Схема установки водоочистителя
- 8 Соединительные трубки; Установка модулей; Промывка DWM Pro
- 9 Работа DWM PRO; Эксплуатация; Снятие крышки
- 10 Эксплуатация отсекателя; Замена фильтрующих модулей
- 11 Безопасность
- 12 Сроки службы и гарантии
- 13 Срок службы (ресурс) сменных фильтрующих модулей; Таблица неисправностей
- 16 NEW; PRO