Эван NOVATOR- 9 - Инструкция по эксплуатации

Эван NOVATOR- 9

Котел Эван NOVATOR- 9 - инструкция пользователя по применению, эксплуатации и установке на русском языке. Мы надеемся, она поможет вам решить возникшие у вас вопросы при эксплуатации техники.

Если остались дополнительные вопросы — свяжитесь с нами через контактную форму.

1 Страница 1
2 Страница 2
3 Страница 3
4 Страница 4
5 Страница 5
6 Страница 6
7 Страница 7
8 Страница 8
9 Страница 9
10 Страница 10
11 Страница 11
12 Страница 12
13 Страница 13
14 Страница 14
Страница: / 14

Содержание:

  • Страница 2 – Дата
  • Страница 8 – Подготовка к работе; Монтаж и подключение
  • Страница 10 – Заполнение отопительной системы.; ней незаполненных пустот.; Подключение датчика температуры воздуха; Совместное; Схема обслуживания насоса.
Загрузка инструкции

ЛИТЯ.681936.057РЭ

1 Общие указания

Пожалуйста, ознакомьтесь с настоящим руководством до начала

установки и эксплуатации прибора. Это сделает его использование комфор-
тным и безопасным.

1.1

Электроприборы отопительные ЭВАН NOVATOR – 4, 5, 6, 7, 9, 12, 15, 18, 21,

24, 28 У3 ТУ 3468-012-97567311-2015 (в дальнейшем - прибор) являются стационарны-
ми отопительными приборами и предназначены для отопления жилых, бытовых,
производственных, сельскохозяйственных и других помещений. Прибор может
применяться совместно с другими источниками теплоснабжения в качестве основного
или резервного.

Прибор предназначен для эксплуатации в помещениях (объёмах) с естественной

вентиляцией (отсутствие воздействия атмосферных осадков, отсутствие конденсации
влаги), при температуре окружающего воздуха от +40 до минус 45 ºС и относительной
влажности воздуха до 98 % при +25 ºС.

Прибор предназначен для работы в системах отопления с принудительной

циркуляцией теплоносителя.

1.2

Конструкция прибора постоянно совершенствуется, поэтому возможны

некоторые изменения, не отраженные в настоящем Руководстве и не ухудшающие
эксплуатационные качества прибора.

1.3

Прибор до подачи в торговый зал или к месту выдачи покупки должен пройти

предпродажную подготовку, которая включает: распаковку прибора, удаление с него
заводской смазки, пыли, стружек; осмотр прибора; проверку комплектности, качества
прибора, наличия необходимой информации о приборе и о его изготовителе.

1.4

По требованию потребителя он должен быть ознакомлен с устройством и

действием прибора, который должен демонстрироваться в собранном, технически
исправном состоянии.

1.5

Лицо, осуществляющее продажу, по требованию потребителя проверяет в его

присутствии внешний вид прибора, его комплектность, правильность цены.

1.6

При передаче прибора потребителю одновременно передается Руководство

по эксплуатации (с указанием в нем даты и места продажи).

Вместе с прибором потребителю передается также товарный чек, в котором

указываются наименование прибора и продавца, дата продажи и цена прибора, а также
подпись лица, непосредственно осуществляющего продажу.

1.7

Продавец обязан предоставить потребителю информацию об организациях,

выполняющих монтаж и подключение прибора. Монтаж и подключение прибора
производится за отдельную оплату.

2 Технические данные

2.1 Прибор относится к низкотемпературным котлам с максимальной температу-

рой нагрева теплоносителя не выше 90

С и максимальным давлением теплоносителя не

выше 0,3 МПа.

2.2 Номинальную мощность котла необходимо выбирать исходя из теплового

баланса здания, рассчитанного по СНиП 23-02-2003.

В случае невозможности проведения расчета теплового баланса, приблизительно

отапливаемую площадь для потолков 2,7 м и нормального класса энергосбережения
можно определить из Таблицы 1.

Дата

Характеристика выполненных работ

Адрес, № лицензии, подпись

и печать исполнителя

- 1 -

- 28 -

"Загрузка инструкции" означает, что нужно подождать пока файл загрузится и можно будет его читать онлайн. Некоторые инструкции очень большие и время их появления зависит от вашей скорости интернета.

Краткое содержание

Страница 2 - Дата

Таблица 1. Повышение класса энергетической эффективности отапливаемого объекта ведет к резкому снижению энергопотребления, затрат на отопление и снижению загрязнения окружающей среды, в частности при изменении класса энергоэффективности с D до А потребление энергии снижается в 2-3 раза. 2.3 По степе...

Страница 8 - Подготовка к работе; Монтаж и подключение

а) немедленно отключить прибор от электрической сети автоматическим выключателем; б) если при этом существует возможность замерзания теплоносителя в системе отопления, то его необходимо слить; в) вызвать специалиста из сервисного центра или организации, зарегистриро- ванной в соответствующих органах...

Страница 10 - Заполнение отопительной системы.; ней незаполненных пустот.; Подключение датчика температуры воздуха; Совместное; Схема обслуживания насоса.

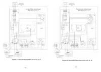
6.1.9 В системе должен быть установлен предохранительный клапан (7) рис. 5, рассчитанный на давление 0,3 МПа. Устанавливать запорно-регулирующую арматуру между теплообменной емкостью и предохранительным клапаном запрещается! 6.1.10 В верхних точках поднимающихся от выходного патрубка прибора участко...

Характеристики

Другие модели - Котлы Эван

Все котлы Эван