Страница 2 - Основные технические данные приборов приведены в таблице 1.; Наименование; Таблица 1; Номинальное напряжение:; Расход электроэнергии за 1 час работы прибора, не более:; Отметка
2.3 Основные технические данные приборов приведены в таблице 1. - 2 - - 19 - Наименование Ед.изм. Значение Таблица 1 ЭВАН NEXT -7 ЭВАН NEXT -5 Номинальное напряжение: Номинальная потребляемая мощность : кВт 7 ЭВАН NEXT -3 кВт кВт 5 3 ЭВАН NEXT -7 ЭВАН NEXT -5 70 50 Номинальная частота: Гц 50 ± 1 Диа...
Страница 3 - Комплектность; В комплект поставки входят:; Устройство; Принцип действия приборов основан на преобразовании; 3 Сведения о сертификации
- 3 - 3 Комплектность В комплект поставки входят: 1 . прибор 1 шт. 2 . руководство по эксплуатации 1 шт. 3 . индивидуальная потребительская тара 1 шт. 4. манжета 1 шт. 4 Устройство прибора 4.1 Принцип действия приборов основан на преобразовании электроэнергии в тепловую трубчатыми электронагревателя...
Страница 5 - Н е п р о и з в о д и т е с а м о с т о я т е л ь н о р а з б о р к у, т е х н и ч е с к о е; РЕ; Таблица 2; выключателя
- 5 - - 16 - 4.7 Приборы ЭВАН NEXT-3...-9 имеют три ступени мощности. Выключателем «I» прибор включается на 2/3 от номинальной мощности (первая ступень), выключателем « II » - на 1/3 (вторая ступень). Одновременным включением выключателей « I » и « II » прибор включается на номинальную мощность (тре...
Страница 6 - Подготовка к работе
- 6 - 5.6 Запрещается включать прибор при: - отсутствии у него защитного проводника РЕ. - наличии замерзшего теплоносителя в приборе или системе отопления , - отсутствии теплоносителя в расширительной емкости. 5.7 Запрещается эксплуатация прибора: - без автоматического выключателя;- во взрыво- и пож...
Страница 7 - по эксплуатации экспанзомата!; Рисунок 3 - Примерная схема системы отопления; ГБ; 2 Гарантии изготовителя; прибора; 1 Свидетельство о приемке и продаже
6.1.4 Пуско-наладочные работы предусматривают:- подключение электроотопительного котла к системе отопления;- подключение электроотопительного котла к электрической сети;- заполнение системы теплоносителем;- удаление воздуха из системы отопления;- доведение давления до нормы согласно требованиям наст...
Страница 8 - Так как при срабатывании предохранительного клапана возможен; Установка запорной арматуры на трубопроводе, соединяющем; соответствующую требованиям; Порядок работы; Д л я к а ж д о го т и п а п р и б о р а р е а л и з ов а н а р е г ул и р ов к а; Таблица 3; Возможная; Заменить предохранитель.; 0 Возможные неисправности и методы их устранения; Правила хранения и транспортирования
Так как при срабатывании предохранительного клапана возможен выброс теплоносителя или пара через его дренажное отверстие, необходимо к этому отверстию выполнить слив в канализационную систему, защищающий от этих факторов. 6.1.7 На входе и выходе из прибора в соответствии с рисунком 2 устанавливаются...
Страница 9 - II; ЭВАН; Окончание работы
- 9 - 8 Техническое обслуживание Внимание! Безопасное и надежное функционирование прибора зависит от его правильного и своевременного технического обслуживания, которое должно осуществляться исключительно организацией, имеющей право на соответствующий вид работ. 8.1 Первое техническое обслуживание п...
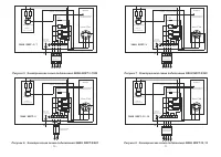
Страница 10 - Рисунок
- 10 - - 11 - ПАНЕЛЬ УСТАНОВОЧНАЯ Блок ТЭН Пр 1 Насос Термовыключатель с самовозвратом Терморегулятор КОТЕЛ Рисунок 6. Электрическая схема подключения ЭВАН NEXT-9/220 Насос A В С N I II III ПАНЕЛЬ Управления РЕ Зажим для защитного проводника РЕ ЭВАН NEXT-9 А Автоматический выключатель N С N В А Авто...