Страница 8 - electrolux; OFF
8 electrolux OFF (ВЫКЛ.) Электропитание котла вклю-чено, а переключатель уста-новлен в положение OFF(символ мигает) Дистанционное управление подключено Датчик контроля наружной температуры подключен Котел осуществляет отопле-ние(символ мигает) 40.....85 Котел осуществляет отопле-ние с подключенным в...
Страница 9 - ИНСТРУКЦИИ ПО ЭКСПЛУАТАЦИИ
9 2 ИНСТРУКЦИИ ПО ЭКСПЛУАТАЦИИ 2.1 Предупреждения Убедитесь, что контур системы отопления наполнен водой соответствующим обра- зом, даже если котел используется только для горячего водоснабжения. В противном случае необходимо правильно наполнить контур, см. раздел «Наполнение контура отопления» на с...
Страница 12 - Регулировка
12 electrolux Рисунок 2.13 Мин. Макс. На ЖК дисплее последовательно отображают- ся символы см. рисунок 2.14 и 2.15 Рисунок 2.14 Рисунок 2.15 Регулировка Установите необходимую температуру воды в системе горячего водоснабжения и уменьшите необходимость смешивания горячей воды с хо- лодной. Таким обра...
Страница 14 - Требования к воде, используемой в качестве; Наполнение контура отопления; Кран наполнения; Давление между; Защита от замерзания
14 electrolux 3. ПОЛЕЗНЫЕ СОВЕТЫ Перед включением котла необходимо заполнить систему отопления теплоноси-телем. В качестве теплоносителя необхо-димо использовать подготовленную воду. Требования к воде, используемой в качестве теплоносителя PH 7-11 Электропроводность <200 SO 4 2- , ppm <500 Cl ...
Страница 15 - Периодическое техобслуживание; Для очистки используйте ткань, смоченную; Отклонения от нормы в работе
15 Рисунок 3.4 В случае отключения необходимо, чтобы квали- фицированный специалист опорожнил котел (кон- тур системы отопления и системы горячего водо- снабжения), а также систему отопления и горячего водоснабжения. 3.4 Периодическое техобслуживание Для обеспечения исправной и бесперебойной работы ...
Страница 16 - Шумы воздушных пузырьков
16 electrolux Еще один сигнал тревоги может быть подан в слу- чае отсутствия возможности приема теплообмен- ником горячего водоснабжения всей мощности, предоставляемой котлом (например, если теплооб- менник закупорен накипью). Такое может случить- ся только, когда котел работает в режиме нагрева вод...
Страница 18 - Принципиальная схема
18 electrolux 4. 2 Принципиальная схема 9 Труба нагнетания системы отопления 10 Труба выхода системы горячего водоснаб- жения 11 Газовый кран 12 Труба входа системы горячего водоснаб- жения 13 Труба возврата системы отопления 14 Кран наполнения контура системы отопле- ния 15 Прессостат 16 Отводы зам...
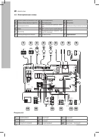
Страница 20 - Электрическая схема; переменный
20 electrolux 10 12 13 14 15 c m c 1 3 4 g/v X5 P1 P2 X1 X6A X7 X3 X12 X17 X2 X15 X13 X11 X10 X4 M ~ m c n 1 2 3 n m c 1 2 3 L N g/v c m m n c m m m c c n c c n n g/v n n c mg/v M ~ M ~ c m g/v m c t c c b b b n n n COM (1) NO (3) b b b n r r c c r r n b c b c t r r 1 3 2 4 t r r b n g/v g/v g/v OUT...
Страница 21 - Технические характеристики GCB 24 Quantum Fi
21 4.4 Технические характеристики GCB 24 Quantum Fi Показатель Ед. изм. GCB 24 Fi GCB 32 Fi Общие данные Тип используемого газа Природный (G20) / Сжиженный (G30-G31) Номинальное давление при-родного газа (G20) мбар 17-25 17-25 Номинальное давление сжи-женного газа (G30) мбар 25-37 25-37 Тепловая мощ...
Страница 24 - УСТАНОВКА
24 electrolux 5 УСТАНОВКА 5.1 Предупреждение Продукты сгорания котла должны выво- диться непосредственно на открытый воз- дух или в предназначенный для этих целей дымоход в соответствии с действующими национальными нормами и местными пра- вилами. Перед установкой необходимо в обязательном порядке тщ...
Страница 34 - К ВЫНОСНОЙ; Клеммная; К двухполюсному
34 electrolux 5.9 Электрическое подключение вынос- ной панели управления (опция) Рисунок 5.20 Открутите винты и снимите крышку клеммной ко- лодки (см. Рисунок 5.20). Для подключения вынасной панели управ- ления к котлу см. также руководство к ВЫНОС- НОЙ ПАНЕЛИ УПРАВЛЕНИЯ. К ВЫНОСНОЙ ПАНЕЛИ УПРАВЛЕНИ...
Страница 35 - него датчика к котлу; него датчика; Внешняя температура °C
35 или стенах, подверженных образованию плесени; • датчик не находился в непосредственной близости от вентиляторов, выпускных патрубков или дымоотводов. 5.11 Электрическое подключение внеш- него датчика к котлу Рисунок 5.24 Для подключения внешнего датчика к котлу не- обходимо использовать провода с...
Страница 38 - • Включите электропитание котла: на дисплее; Минуты
38 electrolux • Включите электропитание котла: на дисплее последовательно отобразятся следующие символы. Рисунок 5.36 Чтобы настроить время постциркуляции насо- са, войдите в режим программирования, на- жав и удерживая в течение 15 с кнопку сброса 5 (см. Рисунок 5.43): на ЖК-дисплее появится парамет...
Страница 39 - чения; Когда котел работает в системе отопления в ре-
39 Рисунок 5.40 • Через 5 секунд после настройки желаемого значения времени постциркуляции насоса на ЖК-дисплее появится надпись «ОК» в под- тверждение того, что автоматическое со- хранение установленного значения прошло успешно. Рисунок 5.41 • Чтобы выйти из режима программирования, установите пере...
Страница 40 - кунд). Это значение можно установить на максимум 255
40 electrolux • Нажмите кнопку сброса 5 (Рисунок 5.42 ) и про- листайте параметры до P10, предназначенного для настройки частоты повторного включения котла. На ЖК-дисплее последовательно ото- бразятся следующие символы (параметр P10 будет загораться поочередно с 88). Рисунок 5.45 • Чтобы изменить на...
Страница 41 - ПОДГОТОВКА К ЭКСПЛУАТАЦИИ; Перед выполнением описанных далее дей-; Последовательность действий; Подача газа
41 6. ПОДГОТОВКА К ЭКСПЛУАТАЦИИ 6.1 Предупреждение Перед выполнением описанных далее дей- ствий, убедитесь, что двухполюсный вы- ключатель, предусмотренный при установ- ке, находится в положении «выключен». 6.2 Последовательность действий Подача газа • Откройте запорный кран на газовой маги- страли ...
Страница 44 - Проверка минимального давления в горелке
44 electrolux GCB 24 Quantum Fi - Макс . давление газа на горелке Природный газ G20 Па 1280 m бар 12,8 Сжиженный газ Бутан G30 Па 2820 m бар 28,2 Сжиженный газ Пропан G31 Па 3600 m бар 36,0 1 мбар соответствует приблизительно 10 мм H20 GCB 32 Quantum Fi - Макс . давление газа на горелке Природный га...
Страница 45 - Важно! Измерив давление газа, необходимо; Регулировка розжига горелки
45 Рисунок 7.3 • Установите на место защитную заглушку «A» (Рисунок 7.2). В ходе проверки максимального и минимально- го давления в горелке проверьте расход газа по счетчику и сравните его значение с данными рас- хода газа в разделе «Технические характеристи- ки» на с. 21. Важно! Измерив давление га...
Страница 48 - Для приспособления котла к типу газа необхо-; Операции и настройка газа; Винты
48 electrolux 8. СМЕНА ТИПА ГАЗА 8.1 Предупреждение Все действия по приспособлению котла к подаваемому типу газа должны произво- диться специалистами уполномоченного сервисного центра. Для приспособления котла к типу газа необхо- димо использовать только детали оригинально- го производства. Чтобы оз...
Страница 49 - НАСТРОЙКИ регулятора; ГАЗ; МЕТАН; Тип газа; раться поочередно с цифрой 04.
49 Рисунок 8.4 • Нажмите кнопку сброса 5 (Рисунок 8.2) и пролистайте параметры до P05, предна- значенного для настройки типа газа. На ЖК-дисплее последовательно отобразят- ся следующие символы (параметр P05 бу- дет загораться поочередно с 01). Рисунок 8.45 • Чтобы изменить настройку, поверните ре- г...
Страница 50 - Настройка типа газа второго уровня; В следующей таблице показана связь между; Природный газ; В следующей таблице показано, как соотно-
50 electrolux Рисунок 8.8 • Через 5 секунд после настройки типа газа на ЖК-дисплее появится надпись «OK» в под- тверждение того, что автоматическое сохране- ние установленного значения прошло успешно. Рисунок 8.9 Настройка типа газа второго уровня • Нажмите кнопку сброса 5 (Рисунок 8.2) и пролистайт...
Страница 51 - фастоне модулирующего устройства.
51 фастоне модулирующего устройства. ГАЗ НАСТРОЙКА РЕГУЛЯТОРА на ЖК-дисплее Ток в модулирующем устройстве Природный газ G20 1 125 мА Сжиженный газ G30-G31 1 165 мА • Произведите калибровку газовых клапа- нов в соответствии с инструкциями, см. раздел «ПРОВЕРКА РЕГУЛИРОВКИ ГАЗА» на с. 44. • Чтобы выйт...
Страница 52 - Описанные в данной главе действия долж-; Снятие внешних панелей; Передняя панель; Опорожнение контура системы; • Закройте отсечной клапан на входе систе-
52 electrolux 9. ТЕХОБСЛУЖИВАНИЕ 9.1 Предупреждение Описанные в данной главе действия долж- ны выполняться только квалифицирован- ными специалистами, рекомендуется об- ращаться в уполномоченный сервисный центр. Для обеспечения надежной и бесперебойной работы котла, необходимо, чтобы специалисты упол...
Страница 53 - Кран для опорожнения системы
53 мы горячего водоснабжения (если таковой предусмотрен при монтаже). • Откройте краны горячей воды. 9.4 Опорожнение контура системы ото- пления • Закройте краны на нагнетании и возврате системы отопления. • Откройте кран опорожнения котла, см. Ри- сунок 9.3. Кран для опорожнения системы ЗАКРЫТО ОТК...
Страница 60 - ТАЛОН НА ГАРАНТИЙНОЕ ОБСЛУЖИВАНИЕ/
ТАЛОН НА ГАРАНТИЙНОЕ ОБСЛУЖИВАНИЕ/ Заполняется при продаже Модель/ Модель: ............................................................................................................... ....................................................................................................................