Страница 74 - ПОДДЕРЖКА ПОТРЕБИТЕЛЕЙ И СЕРВИСНОЕ
СОДЕРЖАНИЕ 1. СВЕДЕНИЯ ПО ТЕХНИКЕ БЕЗОПАСНОСТИ...............................................75 2. УКАЗАНИЯ ПО БЕЗОПАСНОСТИ................................................................. 78 3. ОПИСАНИЕ ИЗДЕЛИЯ................................................................................... 80 4....
Страница 75 - возможностями
1. СВЕДЕНИЯ ПО ТЕХНИКЕ БЕЗОПАСНОСТИ Перед установкой и эксплуатацией прибора внимательно ознакомьтесь с приложенным руководством. Производитель не несет ответственность за травмы и повреждения, полученные/вызванные неправильной установкой и эксплуатацией. Позаботьтесь о том, чтобы данное руководство...
Страница 76 - Общие правила техники безопасности
• Если прибор оснащен устройством защиты от детей, рекомендуем Вам включить это устройство. • Очистка и доступное пользователю техническое обслуживание не должно производиться детьми без присмотра. • Держите прибор и его сетевой шнур в месте, недоступном для детей младше 8 лет. 1.2 Общие правила тех...
Страница 78 - УКАЗАНИЯ ПО БЕЗОПАСНОСТИ; электросети
они могут взорваться даже после завершения нагрева при помощи СВЧ. • Прибор следует регулярно чистить, а также удалять из него какие бы то ни было остатки продуктов. • Если не поддерживать прибор в чистом состоянии, это может привести к повреждению его поверхности, что, в свою очередь, может неблаго...
Страница 80 - Панель управления
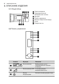
3. ОПИСАНИЕ ИЗДЕЛИЯ 3.1 Общий обзор 1 3 4 7 5 6 2 1 Лампа освещения 2 Предохранительная блокировочная система 3 Дисплей 4 Панель управления 5 Крышка отверстия волновода 6 Гриль 7 Поворотная ось 3.2 Панель управления 1 2 3 4 5 6 7 8 9 Символ Функция Описание 1 Кнопка режима Выбор режима гриля / комби...
Страница 81 - Комплект с вращающимся; ПЕРЕД ПЕРВЫМ ИСПОЛЬЗОВАНИЕМ
Символ Функция Описание 4 Кнопка «Размораживание» Размораживание продуктов по весу или по времени. 5 — Дисплей Отображение настроек и текущего времени. 6 Кнопка «Часы» Установка текущего времени. 7 Кнопка Стоп/Сброс Выключение прибора или удаление настроек приготовления. 8 Кнопка Пуск/+30 секунд Вкл...
Страница 82 - Установка текущего; времени; ЕЖЕДНЕВНОЕ ИСПОЛЬЗОВАНИЕ; Общие сведения по; эксплуатации прибора
• Извлеките из микроволновой печи все съемные элементы и дополнительную упаковку. • Перед первым использованием прибор следует очистить. 4.2 Установка текущего времени При первом включении прибора в сеть или при сбое электропитания на дисплее отображается «0:00» и выдается звуковой сигнал. 1. Многок...
Страница 84 - Включение и выключение; микроволновой печи
Кухонная посуда/материал Микроволновая печь Гриль / конвекц ия Размораж ивание Нагрев Пригото вление Пленка для жарки, пригодная для использования в микроволновойпечи 3) X X X -- Жарка в посуде из металла, например, эмалированной посуды, чугуна. -- -- -- X Формы для выпечки, с черной лакировкой или ...
Страница 85 - Таблица уровней мощности
5.3 Таблица уровней мощности Нажмит е на Мощность Уровень мощности Приблизительное значение мощности в процентах 1 раз 900 Ватт P100 100 % 2 раза 720 Ватт P 80 80 % 3 раза 450 Ватт P 50 50 % 4 раза 270 Ватт P 30 30 % 5 раз 90 Ватт P 10 10 % Другие функции Нажмите на кнопку режима Уровень мощности Пр...
Страница 86 - приготовление; Приготовление в режиме; конвекции
Для выбора размораживания по весу требуется, чтобы вес продуктов был не менее 100 г и не более 2000 г. Для размораживания продуктов весом менее 200 г положите их на край вращающегося поддона. 1. Однократно нажмите на для выбора размораживания по весу, или нажмите на ту же кнопку дважды для разморажи...
Страница 87 - АВТОМАТИЧЕСКИЕ ПРОГРАММЫ; программы
5.8 Грилирование и комбинированное приготовление 1. Нажмите на . 2. Задайте требуемую функцию при помощи ручки выбора настроек. 3. Чтобы подтвердить выбор, нажмите на . 4. Задайте требуемое время, повернув ручку выбора уровня мощности. 5. Нажмите на для подтверждения и включения микроволновой печи. ...
Страница 89 - ИСПОЛЬЗОВАНИЕ ДОПОЛНИТЕЛЬНЫХ; ПРИНАДЛЕЖНОСТЕЙ; Установка комплекта с; вращающимся поддоном; Установка подставки для; гриля; ДОПОЛНИТЕЛЬНЫЕ ФУНКЦИИ; Функция «Защита от; детей»
7. ИСПОЛЬЗОВАНИЕ ДОПОЛНИТЕЛЬНЫХ ПРИНАДЛЕЖНОСТЕЙ ВНИМАНИЕ! См. Главы, содержащие Сведения по технике безопасности. 7.1 Установка комплекта с вращающимся поддоном ОСТОРОЖНО! Не готовьте продукты без вращающегося поддона. Используйте только комплект с вращающимся поддоном, поставляемый вместе с микрово...
Страница 90 - Рекомендации по использованию режима микроволновой; обработки
9.1 Рекомендации по использованию режима микроволновой обработки Неисправность Решение Отсутствуют данные для веса или объема продуктов, которые предстоит приготовить. Ориентируйтесь на похожий продукт. Увеличить или уменьшить время приготовления, следуя правилу: Двойное количество = почти вдвое бол...
Страница 91 - Приготовление в режиме; ПОИСК И УСТРАНЕНИЕ НЕИСПРАВНОСТЕЙ
9.6 Комбинированное приготовление Используйте режим комбинированного приготовления, чтобы сохранить определенные продукты хрустящими.По истечении половины срока приготовления переверните продукты и продолжите приготовление.Имеется 4 режима комбинированного приготовления. В каждом режиме функции микр...
Страница 92 - обращения в сервис-центр
Неисправность Возможная причина Решение Прибор не работает. Сгорел предохранитель на электрощите. Проверьте предохранитель. В случае повторного срабатывания предохранителя обратитесь к квалифицированному электрику. Прибор не работает. Дверца не закрыта как следует. Проверьте, не мешает ли что-либо з...
Страница 93 - Общая информация; подключение
12. УСТАНОВКА ВНИМАНИЕ! См. Главы, содержащие Сведения по технике безопасности. 12.1 Общая информация ОСТОРОЖНО! Не закрывайте вентиляционные отверстия. В случае их блокировки прибор может перегреться. ОСТОРОЖНО! Не подключайте прибор через переходники или удлинители. Это может привести к перегрузке...
Страница 94 - ОХРАНА ОКРУЖАЮЩЕЙ СРЕДЫ
13. ОХРАНА ОКРУЖАЮЩЕЙ СРЕДЫ Материалы с символом следует сдавать на переработку. Положите упаковку в соответствующие контейнеры для сбора вторичного сырья. Принимая участие в переработке старого электробытового оборудования, Вы помогаете защитить окружающую среду и здоровье человека. Не выбрасывайте...