Страница 4 - СПИСОК ТАБЛИЦ
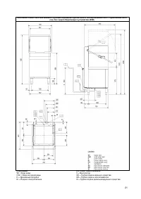
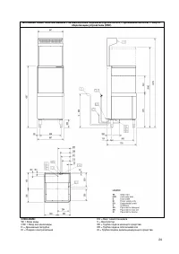
4 СПИСОК ИЛЛЮСТРАЦИЙ Рис. 1 Изображение маркировки/ шильдика машины Рис. 2 Местоположение шильдика и маркировки Рис. 3 Идентификация технических данных Рис. 4 Пример идентификационных данных документа Рис. 5 Удаление упаковки Рис. 6 Размещение машины Рис. 7 Удаление упаковочной пленки Рис. 8 Регулир...
Страница 5 - Введение
5 Введение Сборник инструкций по эксплуатации и техническому обслуживанию (далее «Сборник инструкций») пре-доставляет пользователю полезную информацию, необходимую для простой, правильной и безопасной эксплуатации оборудования (далее «Машина», «Посудомоечная машина», «Агрегат»). Следующий далее текс...
Страница 7 - ны; А5. Идентификация агрегата; Рис. 3 - Идентификация технических данных
7 В тексте графические символы сопровож-даются предупреждениями по технике безо-пасности, короткими фразами с объяснени-ем или примером данного типа опасности. Предупреждения служат для того, чтобы гарантировать безопасность персонала и защитить от ущерба оборудование и обра-батываемые материалы. Сл...
Страница 8 - мента
8 А5.2. Интерпретация заводского описа-ния Заводское описание модели, присутствую-щее в шильдике агрегата, имеет следующее значение: Модели с однослойным капотом (1) N Е (2) НТ НТ (3) 8 8 (4) WS M (5) G (6) (7) Модели с изолированным капотом (1) Z E (2) НТ НТ (3) 8 8 (4) I T (5) E I (6) L E (7) G L ...
Страница 9 - Стадия; А9. Хранение сборника инструкций
9 Стадия Защитная одежда Спец. обувь Перчат-ки Очки Каска Транспорти- ровка - - Перемеще- ние - - Распаковка - - Сборка - - Эксплуата- ция (1) - Регулировка - - - Плановая чистка (1) - Внеплано- вая чистка (1) - Обслужива- ние - - Демонтаж - - Утилизация - - Описание - использовать обязательно - име...
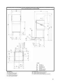
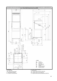
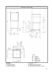
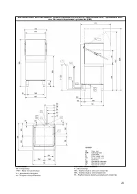
Страница 10 - МОДЕЛИ; EHT8TIL
10 В. ОБЩЕЕ ОПИСАНИЕ МАШИНЫ В1. Общее описание Посудомоечная машина предназначена для мойки керамической столовой посуды, стаканов, столо-вых приборов, подносов и крышек, пластиковых и стальных контейнеров, а также различных кера-мических и стальных кухонных инструментов. Данная машина была спроекти...
Страница 14 - Рис. 5 – Удаление упаковки; машины
14 ВНИМАНИЕ! К выполнению монтажных опера-ций допускается исключительно технический персонал со специ-альной подготовкой / специалисты службы технической поддержки, обязанные использовать средства индивидуальной защиты (защит-ные ботинки, рукавицы, очки, ком-бинезон и т.п.), специальный инст-румент,...
Страница 15 - Обеспечить доступ к днищу машины.; Е5. Удаление и утилизация упаковки; Рис. 10 - Подключение к водопроводной сети; воды на входе не выходило
15 При помощи опорных ножек отрегули-ровать положение машины, добив-шись горизонтальности, как в про-дольном, так и в поперечном направ-лении (Рис. 8). Рис. 8 - Регулировка опорных ножек Машину следует закрепить к полу при помощи 2 крепежных хомутов из ком-плекта машины (рис. 9). Рис. 9 - Крепежные ...
Страница 25 - Е7. Подключение к сети электропитания; Провод
25 Е7. Подключение к сети электропитания Подключение к сети электропитания должно быть выполнено в соответствии с действую-щими местными нормативами и требования-ми. ВНИМАНИЕ! К выполнению работ с электропро-водкой и электрокомпонентами до-пускается исключительно квали-фицированный электрик. Убедите...
Страница 26 - Рис. 15 - Система контроля энергопотребления; Подключение к блоку HACCP
26 Питание 220…240 В 1N Рис. 14 - Электропитание 220-240В 1N Открыть клеммную коробку и установить мос-ты (имеющиеся в комплекте электрощита) следующим образом: два между клеммами № 1 и № 3, два между клеммами № 2 и № 4, один между клеммами № 3 и № 5, и еще два между клеммами № 4 и № 6. Подвести пи-...
Страница 27 - ОПИСАНИЕ ПАНЕЛИ УПРАВЛЕНИЯ; Световой индикатор «температура в баке»; во время этапа мойки световой индикатор НЕ ГОРИТ.
27 F. ОПИСАНИЕ ПАНЕЛИ УПРАВЛЕНИЯ Описание: А = ВКЛ. / ВЫКЛ. В = Подъем капота С = Спуск капота D = Световой индикатор «температура в баке» Е = Световой индикатор «кран подачи воды» F = Световой индикатор «температура в бойлере» G = Моечный цикл 1 Н = Моечный цикл 2 I = Моечный цикл 3 L = Режим: Скор...
Страница 29 - ПУСК В ЭКСПЛУАТАЦИЮ; проверить; Рис. 18 - Моечные и ополаскивающие рукава; G2. Пуск в эксплуатацию; Открыть краны подачи воды.
29 G. ПУСК В ЭКСПЛУАТАЦИЮ G1. Предварительные контрольные опе-рации, настройка и тестирование ВНИМАНИЕ! К выполнению перечисленных ни-же операций допускается исключи-тельно технический персонал со специальной подготовкой / специа-листы службы технической под-держки, обязанные использовать средства и...
Страница 30 - моющего; должна; параметр; дозатор
30 ополаскивателя происходит автоматически в соответствии с настройками концентрации. Концентрация моющего средст- ва/ополаскивателя зависит от типа исполь-зуемого средства и от жесткости воды (необ-ходимо проверить характеристики средства на упаковке). ВНИМАНИЕ Перистальтические дозаторы (для подач...
Страница 31 - для доступа в режим программирования – на; Описание параметра; Начальная подача МС
31 Рис. 21 - Электрическое подключение дозатора ополаскивателя Подключить дозатор ополаскивателя между клеммами № 8 и № 9. Эти точки подключения находятся под напряжением во время подачи воды в бак и в конце цикла ополаскивания, в течение заданно-го времени (см. параграф G4 «Регулиров-ка дозаторов»)...
Страница 36 - При резком закрытии капота
36 Эксплуатация и обслуживание машины тем не менее связана с некоторым количеством остаточных рисков, которые не могут быть устранены посредством проектных решений или за счет установки защитных устройств и ограждений. Поэтому настоящий сборник инструкций при-зван информировать персонал о подобных р...
Страница 39 - Жесткость воды на; вующем заводским настройкам.
39 Моечные циклы: - Цикл I Для посуды с легкой степенью загрязнения: нажать на кнопку «G» (см. Табл. 2 «Панель управления» и таблицу продолжительности моечных циклов). - Цикл II (рекомендуется к использованию) Для посуды со средней степенью загрязне-ния: нажать на кнопку «Н» (см. Табл. 2 «Па-нель уп...
Страница 40 - Типы кассет и загрузка посуды
40 (6%) (2 л – это минимальное количество уксуса, необходимое для корректного проведения цикла декальцинации). ВНИМАНИЕ Разрешается использовать исключитель-но столовый уксус, ЗАПРЕЩАЕТСЯ ис-пользовать химические средства для уда-ления накипи. Декальцинацию с исполь-зованием химических средств может...
Страница 41 - В случае выбора для мойки
41 менты для стаканов и кассета для таре-лок максимальным диаметром 320 мм. Примечание: В случае выбора для мойки тарелок только одного типа кассет рекомен-дуется использовать ЗЕЛЕНЫЕ кассеты. I7. Аварийная сигнализация В случае аномального функционирования или неисправности на дисплей выводится опр...
Страница 42 - ВНИМАНИЕ
42 End, это означает, что контейнер для соли пуст. Тем не менее, система позволяет осу-ществлять пуск моечных циклов, но следует помнить о том, что в машину будет поступать недекальцифицированая вода. Наполнение контейнера солью Поднять капот (для машин с автоматиче-ским подъемом/спуском капота нажа...
Страница 44 - Профилактические процедуры
44 ВНИМАНИЕ Поверхности из нержавеющей стали про-мыть теплой водой с мылом (запрещается использовать моющие средства, содер-жащие абразивные частицы, стальные мочалки и скребки и т.д.); затем протереть влажной салфеткой и вытереть насухо. Панель управления протереть слегка влажной салфеткой, использ...
Страница 46 - КОНДЕНСАЦИЯ ВЛАГИ НА СТАКАНАХ
46 I13 . Возможные неисправности ПЛОХОЙ РЕЗУЛЬТАТ МЫТЬЯ 1) Проверить, не загрязнен ли аспирационный фильтр, аккуратно прочистить его. 2) Проверить, не засорены ли моющие рукава твердыми частицами. 3) Проверить правильность начальной и/или дополнительных дозировок моющего средст-ва. 4) Используемый р...