Духовые шкафы Samsung NV68A1145RS/WT - инструкция пользователя по применению, эксплуатации и установке на русском языке. Мы надеемся, она поможет вам решить возникшие у вас вопросы при эксплуатации техники.
Если остались вопросы, задайте их в комментариях после инструкции.
"Загружаем инструкцию", означает, что нужно подождать пока файл загрузится и можно будет его читать онлайн. Некоторые инструкции очень большие и время их появления зависит от вашей скорости интернета.

8 O'zbek
O
‘rnatish
O‘rnatish
Bufetga joylashtirish
Pech ichki qurilgan bufetga o‘rnatilayotgan bo‘lsa, bufetning plastik yuzalari va yelim qismlari
90 °C gacha haroratga chidamli bo‘lishi kerak. Pech chiqargan issiqlikdan jihoz zararlansa,
bunga Samsung javobgar bo‘lmaydi.
Pechda havo aylanishi to‘g‘ri yo‘lga qo‘yilishi kerak. Havo aylanishi uchun bufetning pastki
tortmasi bilan tayanch devor orasida 50 mm atrofida oraliq qoldiring. Pechni plita ostiga
o‘rnatsangiz, plitani o‘rnatish yo‘riqnomasiga amal qiling.
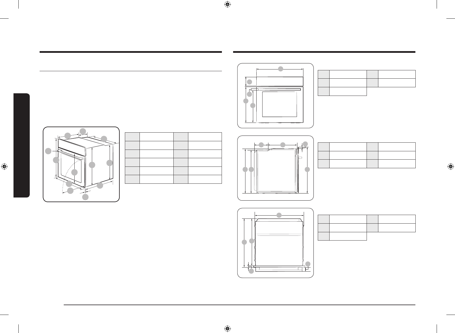
O‘rnatishga kerakli o‘lchamlar
D
E
C
B
A
L
K
J
I
F
H
G
Pech (mm)
A
560
G
Maks. 506
B
177
H
Maks. 494
C
372
I
21
D
Maks. 50
J
549
E
595
K
578
F
595
L
558
A
B
C
D
E
Pech (mm)
A
595
D
458,5
B
115
E
25
C
461,4
F
A B
C
D
E
Pech (mm)
A
578
D
372
B
558
E
17
C
177
F
595
C
A
B
D
E
Pech (mm)
A
560
D
21
B
549
E
Maks. 50
C
570
NV68A1110BB_WT_DG68-01365G-00_UZ.indd 8
2021-02-19 5:13:36
Содержание
- 3 Инструкции по технике безопасности; Важные меры предосторожности; Использование руководства; В данном руководстве используются следующие обозначения:
- 6 Функция автоматической экономии энергии; Установка; Комплектация
- 7 Подключение к источнику питания
- 8 Установка в отсек кухонной мебели
- 10 Подготовка к использованию; Начальные установки
- 11 Принадлежности
- 12 Механический замок (только для соответствующих моделей); Использование
- 13 Быстрый прогрев; Время приготовления
- 14 Режимы приготовления
- 15 Остановка процесса приготовления
- 16 Рекомендации по приготовлению; Приготовление вручную
- 18 Пробные блюда
- 19 Обслуживание; Очистка
- 21 Замена
- 22 Устранение неисправностей; Контрольные пункты
- 23 Информационные коды
- 24 Приложение; ЭНЕРГЕТИЧЕСКАЯ ЭФФЕКТИВНОСТЬ; Технические характеристики
- 25 Заметки
Характеристики
Остались вопросы?Не нашли свой ответ в руководстве или возникли другие проблемы? Задайте свой вопрос в форме ниже с подробным описанием вашей ситуации, чтобы другие люди и специалисты смогли дать на него ответ. Если вы знаете как решить проблему другого человека, пожалуйста, подскажите ему :)