Духовые шкафы Samsung NV68A1145RS/WT - инструкция пользователя по применению, эксплуатации и установке на русском языке. Мы надеемся, она поможет вам решить возникшие у вас вопросы при эксплуатации техники.
Если остались вопросы, задайте их в комментариях после инструкции.
"Загружаем инструкцию", означает, что нужно подождать пока файл загрузится и можно будет его читать онлайн. Некоторые инструкции очень большие и время их появления зависит от вашей скорости интернета.

8 Русский
Ус
тановк
а
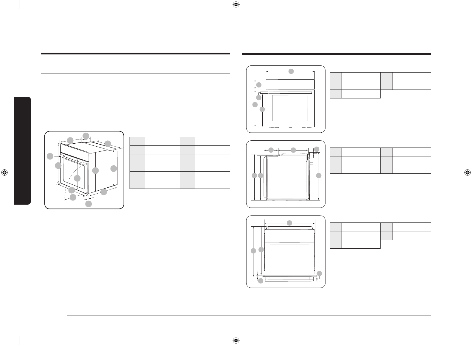
Установка
Установка в отсек кухонной мебели
При установке духового шкафа в отсек встроенной мебели его пластиковые поверхности и клей,
используемый для крепления, должны выдерживать температуру до 90 °C. Компания Samsung не несет
ответственности за повреждения мебели в результате нагревания духового шкафа.
Необходимо обеспечить достаточную вентиляцию духового шкафа. Для этого оставьте зазор,
составляющий примерно 50 мм, между нижней полкой и стенкой отсека. При установке духового шкафа
под варочной панелью следуйте инструкциям по установке для варочной панели.
Необходимые размеры для установки
D
E
C
B
A
L
K
J
I
F
H
G
Духовой шкаф (мм)
A
560
G
Макс. 506
B
177
H
Макс. 494
C
372
I
21
D
Макс. 50
J
549
E
595
K
578
F
595
L
558
A
B
C
D
E
Духовой шкаф (мм)
A
595
D
458,5
B
115
E
25
C
461,4
F
A B
C
D
E
Духовой шкаф (мм)
A
578
D
372
B
558
E
17
C
177
F
595
C
A
B
D
E
Духовой шкаф (мм)
A
560
D
21
B
549
E
Макс. 50
C
570
NV68A1110BB_WT_DG68-01365G-00_RU.indd 8
2021-02-24 12:21:41
Содержание
- 3 Инструкции по технике безопасности; Важные меры предосторожности; Использование руководства; В данном руководстве используются следующие обозначения:
- 6 Функция автоматической экономии энергии; Установка; Комплектация
- 7 Подключение к источнику питания
- 8 Установка в отсек кухонной мебели
- 10 Подготовка к использованию; Начальные установки
- 11 Принадлежности
- 12 Механический замок (только для соответствующих моделей); Использование
- 13 Быстрый прогрев; Время приготовления
- 14 Режимы приготовления
- 15 Остановка процесса приготовления
- 16 Рекомендации по приготовлению; Приготовление вручную
- 18 Пробные блюда
- 19 Обслуживание; Очистка
- 21 Замена
- 22 Устранение неисправностей; Контрольные пункты
- 23 Информационные коды
- 24 Приложение; ЭНЕРГЕТИЧЕСКАЯ ЭФФЕКТИВНОСТЬ; Технические характеристики
- 25 Заметки
Характеристики
Остались вопросы?Не нашли свой ответ в руководстве или возникли другие проблемы? Задайте свой вопрос в форме ниже с подробным описанием вашей ситуации, чтобы другие люди и специалисты смогли дать на него ответ. Если вы знаете как решить проблему другого человека, пожалуйста, подскажите ему :)