Духовые шкафы Samsung NV68A1145RK/WT - инструкция пользователя по применению, эксплуатации и установке на русском языке. Мы надеемся, она поможет вам решить возникшие у вас вопросы при эксплуатации техники.
Если остались вопросы, задайте их в комментариях после инструкции.
"Загружаем инструкцию", означает, что нужно подождать пока файл загрузится и можно будет его читать онлайн. Некоторые инструкции очень большие и время их появления зависит от вашей скорости интернета.

8
Қазақ
Орнат
у
Орнату
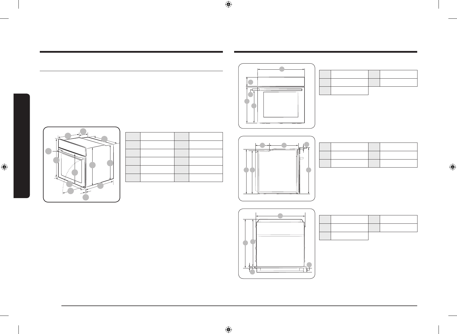
Корпусты орнату
Пешті ас үй жиһазына кіріктіріп орнату керек болса, пештің пластик беттері мен желімделген
бөліктері 90 °C градусқа төзімді болуға тиіс. Samsung пештен бөлінген қызудан жиһазға келген
зақымға жауапты емес.
Пешті дұрыс желдету керек. Корпустың астыңғы сөресі мен тірегіш қабырғасының арасына желдету
үшін шамамен 50 мм бос орын қалдыру керек. Пешті жұмыс бетінің астына орнатсаңыз, жұмыс
бетін орнату нұсқауларын орындаңыз.
Орнатуға қажетті өлшемдер
D
E
C
B
A
L
K
J
I
F
H
G
Пеш (мм)
A
560
G
Ең көбі 506
B
177
H
Ең көбі 494
C
372
I
21
D
Ең көбі 50
J
549
E
595
K
578
F
595
L
558
A
B
C
D
E
Пеш (мм)
A
595
D
458,5
B
115
E
25
C
461,4
F
A B
C
D
E
Пеш (мм)
A
578
D
372
B
558
E
17
C
177
F
595
C
A
B
D
E
Пеш (мм)
A
560
D
21
B
549
E
Ең көбі 50
C
570
NV68A1110BB_WT_DG68-01365G-00_KK.indd 8
2021-02-19 5:14:29
Содержание
- 3 Инструкции по технике безопасности; Важные меры предосторожности; Использование руководства; В данном руководстве используются следующие обозначения:
- 6 Функция автоматической экономии энергии; Установка; Комплектация
- 7 Подключение к источнику питания
- 8 Установка в отсек кухонной мебели
- 10 Подготовка к использованию; Начальные установки
- 11 Принадлежности
- 12 Механический замок (только для соответствующих моделей); Использование
- 13 Быстрый прогрев; Время приготовления
- 14 Режимы приготовления
- 15 Остановка процесса приготовления
- 16 Рекомендации по приготовлению; Приготовление вручную
- 18 Пробные блюда
- 19 Обслуживание; Очистка
- 21 Замена
- 22 Устранение неисправностей; Контрольные пункты
- 23 Информационные коды
- 24 Приложение; ЭНЕРГЕТИЧЕСКАЯ ЭФФЕКТИВНОСТЬ; Технические характеристики
- 25 Заметки
Характеристики
Остались вопросы?Не нашли свой ответ в руководстве или возникли другие проблемы? Задайте свой вопрос в форме ниже с подробным описанием вашей ситуации, чтобы другие люди и специалисты смогли дать на него ответ. Если вы знаете как решить проблему другого человека, пожалуйста, подскажите ему :)