Духовые шкафы Samsung NV68A1110RS/WT - инструкция пользователя по применению, эксплуатации и установке на русском языке. Мы надеемся, она поможет вам решить возникшие у вас вопросы при эксплуатации техники.
Если остались вопросы, задайте их в комментариях после инструкции.
"Загружаем инструкцию", означает, что нужно подождать пока файл загрузится и можно будет его читать онлайн. Некоторые инструкции очень большие и время их появления зависит от вашей скорости интернета.

8 Українська
Вс
танов
лення
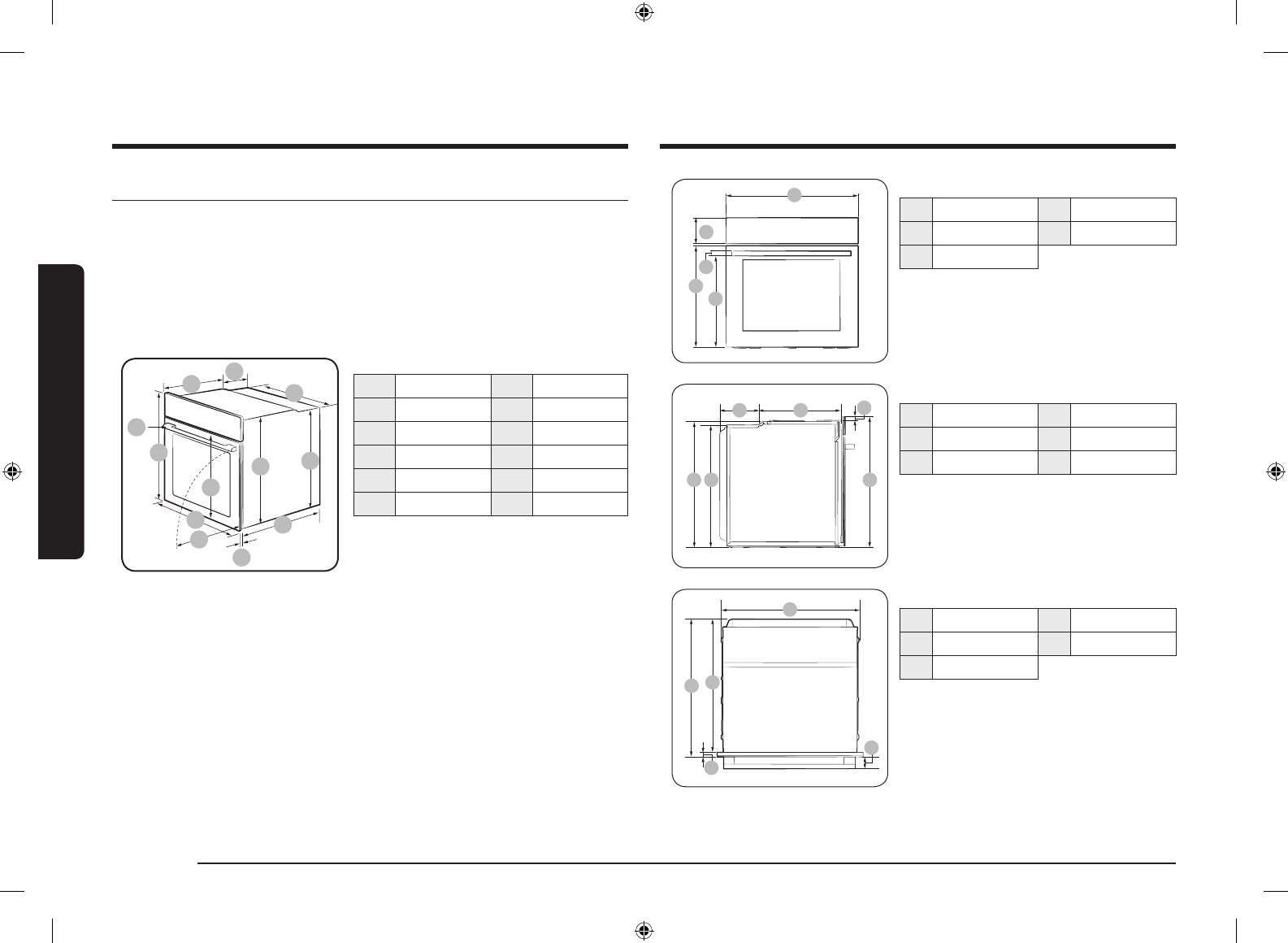
Встановлення
Монтування печі в шафку
У разі встановлення печі у вбудовану шафку перевірте, чи пластмасові поверхні і клейкі частини
витримують температуру 90 °C. Компанія Samsung не несе відповідальності за пошкодження меблів, які
сталися внаслідок тепла, яке генерує піч.
Піч має належним чином провітрюватися. Для належної вентиляції залиште простір близько 50 мм між
нижньою полицею шафки і опорною стіною. Встановлюючи піч під варильною поверхнею, дотримуйтеся
вказівок зі встановлення варильної поверхні.
Вимоги щодо розмірів для встановлення
D
E
C
B
A
L
K
J
I
F
H
G
Піч (мм)
A
560
G
Макс. 506
B
177
H
Макс. 494
C
372
I
21
D
Макс. 50
J
549
E
595
K
578
F
595
L
558
A
B
C
D
E
Піч (мм)
A
595
D
458,5
B
115
E
25
C
461,4
F
A B
C
D
E
Піч (мм)
A
578
D
372
B
558
E
17
C
177
F
595
C
A
B
D
E
Піч (мм)
A
560
D
21
B
549
E
Макс. 50
C
570
NV68A1110BB_WT_DG68-01365G-00_UK.indd 8
2021-02-25 5:56:11
Содержание
- 3 Инструкции по технике безопасности; Важные меры предосторожности; Использование руководства; В данном руководстве используются следующие обозначения:
- 6 Функция автоматической экономии энергии; Установка; Комплектация
- 7 Подключение к источнику питания
- 8 Установка в отсек кухонной мебели
- 10 Подготовка к использованию; Начальные установки
- 11 Принадлежности
- 12 Механический замок (только для соответствующих моделей); Использование
- 13 Быстрый прогрев; Время приготовления
- 14 Режимы приготовления
- 15 Остановка процесса приготовления
- 16 Рекомендации по приготовлению; Приготовление вручную
- 18 Пробные блюда
- 19 Обслуживание; Очистка
- 21 Замена
- 22 Устранение неисправностей; Контрольные пункты
- 23 Информационные коды
- 24 Приложение; ЭНЕРГЕТИЧЕСКАЯ ЭФФЕКТИВНОСТЬ; Технические характеристики
- 25 Заметки
Характеристики
Остались вопросы?Не нашли свой ответ в руководстве или возникли другие проблемы? Задайте свой вопрос в форме ниже с подробным описанием вашей ситуации, чтобы другие люди и специалисты смогли дать на него ответ. Если вы знаете как решить проблему другого человека, пожалуйста, подскажите ему :)