Дрели Bosch EasyImpact 540 - инструкция пользователя по применению, эксплуатации и установке на русском языке. Мы надеемся, она поможет вам решить возникшие у вас вопросы при эксплуатации техники.
Если остались вопросы, задайте их в комментариях после инструкции.
"Загружаем инструкцию", означает, что нужно подождать пока файл загрузится и можно будет его читать онлайн. Некоторые инструкции очень большие и время их появления зависит от вашей скорости интернета.

50
| Українська
1 609 92A 29Z | (8.8.16)
Bosch Power Tools
Для фіксування міцно затягніть гвинт-баранчик
18
за
годинниковою стрілкою.
Встановлення глибини свердлення (див. мал. E – F)
Змонтуйте свердло (див. розділ «Заміна робочого
інструмента»).
За допомогою установного кільця
17
можна
встановлювати бажану глибину свердлення
X
.
Для розблокування поверніть установне кільце
17
ліворуч
. Приставте контейнер для пилу
11
або кріплення
26
урівень до стіни або заготовки. Підведіть кінчик свердла
до стіни або заготовки.
Потягніть установне кільце
17
назад настільки, щоб
відстань відповідала бажаній глибині свердління
X
, або
прикладіть дюбель до напрямної і потягніть установне
кільце
17
назад до дюбеля. Для фіксування поверніть
установне кільце
17
праворуч
. Приберіть дюбель від
напрямної. Отримана глибина свердлення відповідає
довжині
X
на напрямній.
Вказівка:
У разі використання дюбелів точність глибини
свердлення є важливою. Якщо висвердлений отвір є
занадто глибоким, дюбель просунеться занадто глибоко у
стіну або заготовку. Якщо отвір занадто короткий, дюбель
випирає.
Спорожнення контейнера для пилу (див. мал. G)
Контейнера для пилу
11
вистачає приблизно на 25 отворів
у цегляній кладці при глибині свердлення 30 мм і діаметрі
свердла 6 мм.
– Для зняття контейнера для пилу
11
натисніть на бокові
кнопки розблокування
12
і зніміть контейнер для пилу,
потягнувши його донизу.
– Спорожніть контейнер для пилу
11
і встроміть його на
місце (він повинен відчутно зайти в зачеплення).
Зняття Drill Assistant
– Утримуйте затискач
16
пиловловлювального пристрою
13
натисненим і зніміть пиловловлювальний пристрій
13
, потягнувши його вперед.
– Повертайте гвинт-баранчик
18
проти годинникової
стрілки, поки додаткова рукоятка
9
не послабиться, і
зніміть додаткову рукоятку
9
з електроінструмента.
– Для розблокування поверніть установне кільце
17
ліворуч .
– Міцно тримайте додаткову рукоятку
9
і потягніть
напрямну в напрямку до додаткової рукоятки, поки
вона не увійде відчутно в зачеплення.
Відсмоктування пилу/контейнер для пилу
Пил таких матеріалів, як напр., лакофарбових покрить,
що містять свинець, деяких видів деревини, мінералів і
металу, може бути небезпечним для здоров’я.
Торкання або вдихання пилу може викликати у Вас або
у осіб, що знаходяться поблизу, алергічні реакції та/або
захворювання дихальних шляхів.
Певні види пилу, як напр., дубовий або буковий пил,
вважаються канцерогенними, особливо в сполученні з
добавками для обробки деревини (хромат, засоби для
захисту деревини). Матеріали, що містять азбест,
дозволяється обробляти лише спеціалістам.
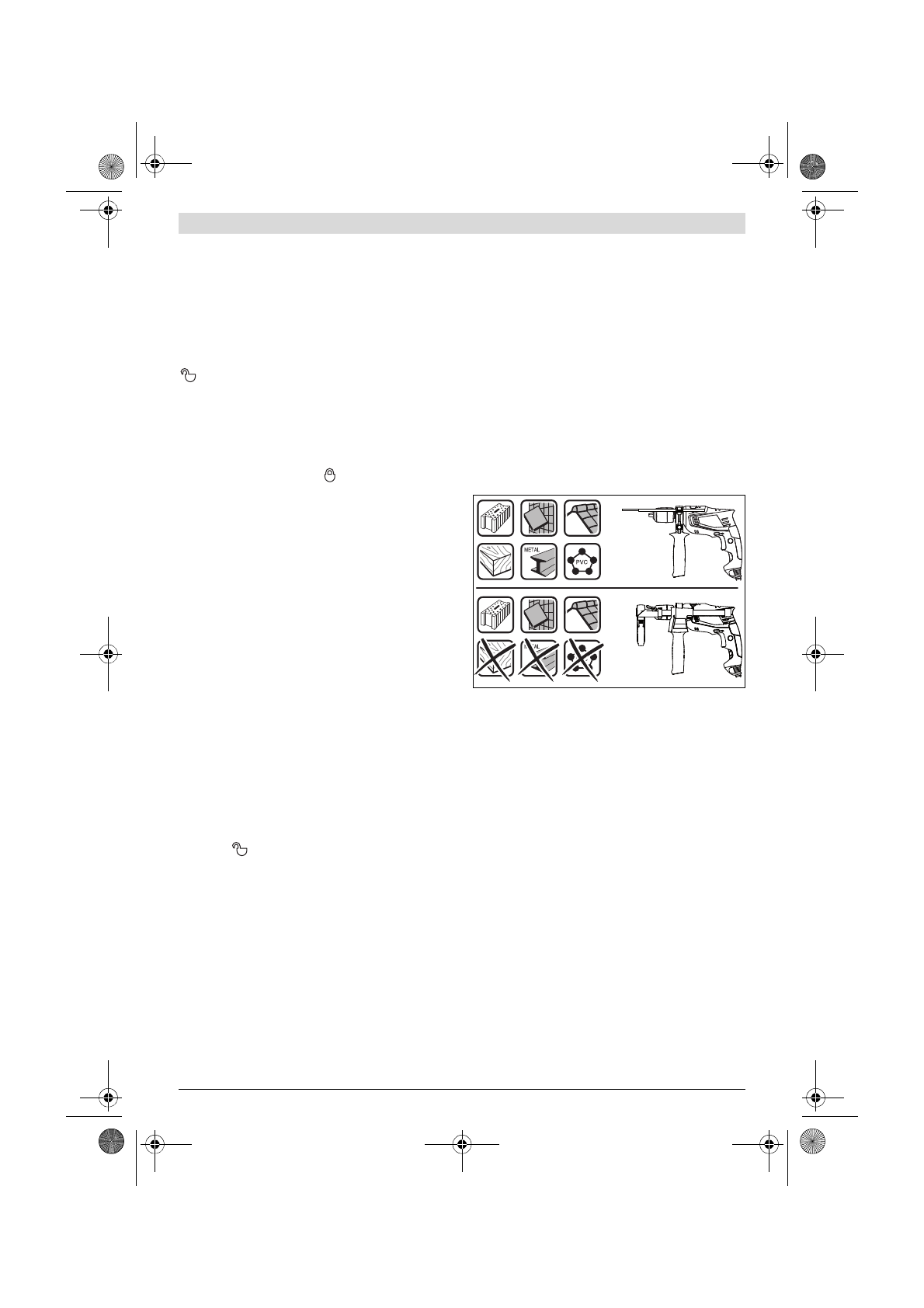
– Використовуйте придатний для матеріалу
відсмоктувальний пристрій.
– Слідкуйте за доброю вентиляцією на робочому місці.
– Рекомендується вдягати респіраторну маску з
фільтром класу P2.
Додержуйтеся приписів щодо оброблюваних
матеріалів, що діють у Вашій країні.
Уникайте накопичення пилу на робочому місці.
Пил
може легко займатися.
Використовуйте контейнер для пилу лише при
роботі з бетоном та камінням.
Дерев’яна і
пластмасова стружка можуть легко призвести до
забиття контейнера.
Увага: небезпека займання! Не працюйте з жодними
металевими матеріалами у разі змонтованого
контейнера для пилу.
Гаряча металева стружка може
запалити частини контейнера для пилу.
Для оптимального використання контейнера для пилу
дотримуйтесь наступних вказівок:
– Слідкуйте за тим, що контейнер для пилу прилягав до
заготовки або стіни урівень. При цьому одночасно
полегшується свердлення під прямим кутом.
– Після досягнення необхідної глибини свердлення
спочатку витягніть свердло з отвору і лише після цього
вимикайте ударний дриль.
– Особливо при роботі з товстими свердлами
пилозахисне кільце
15
може спрацьовуватися. У разі
пошкодження його треба поміняти.
Заміна робочого інструмента
Швидкозатискний свердлильний патрон
(EasyImpact 500/550/550 + Drill Assistant/5500)
(див. мал. H)
Міцно тримайте задню втулку
2
швидкозатискного
патрона
3
і повертайте передню втулку
1
в напрямку
,
щоб можна було встромити робочий інструмент.
Встроміть робочий інструмент.
Добре притримайте задню втулку
2
швидкозатискного
свердлильного патрона
3
і з силою закрутіть від руки
передню втулку
1
в напрямку
.
OBJ_BUCH-2913-001.book Page 50 Monday, August 8, 2016 9:40 AM
Содержание
- 37 Указания по безопасности
- 38 Указания по технике безопасности для дрелей; Описание продукта и услуг; Применение по назначению
- 39 Изображенные составные части
- 40 Данные по шуму и вибрации
- 41 Сборка
- 42 Отсос пыли/контейнер для пыли; Замена рабочего инструмента
- 43 Смена сверлильного патрона; Работа с инструментом; Включение электроинструмента
- 44 Техобслуживание и сервис; Техобслуживание и очистка; Утилизация
Характеристики
Остались вопросы?Не нашли свой ответ в руководстве или возникли другие проблемы? Задайте свой вопрос в форме ниже с подробным описанием вашей ситуации, чтобы другие люди и специалисты смогли дать на него ответ. Если вы знаете как решить проблему другого человека, пожалуйста, подскажите ему :)