Дрели Bosch EasyImpact 540 - инструкция пользователя по применению, эксплуатации и установке на русском языке. Мы надеемся, она поможет вам решить возникшие у вас вопросы при эксплуатации техники.
Если остались вопросы, задайте их в комментариях после инструкции.
"Загружаем инструкцию", означает, что нужно подождать пока файл загрузится и можно будет его читать онлайн. Некоторые инструкции очень большие и время их появления зависит от вашей скорости интернета.

12
| Polski
1 609 92A 29Z | (8.8.16)
Bosch Power Tools
Pochłaniacz pyłu
13
nałożyć na uchwyt
26
.
Wcisnąć przycisk blokady
8
, aby zwolnić system »Drill Assi-
stant«
10
z pozycji parkowania.
Przesunąć »Drill Assistant«
10
przez uchwyt wiertarski i nasu-
nąć na szyjkę wrzeciona elektronarzędzia.
Zablokować system, dokręcając śrubę motylkową
18
w kie-
runku zgodnym z ruchem wskazówek zegara.
Ustawianie głębokości wiercenia (zob. rys E – F)
Osadzić wiertło (zob. rozdział »Wymiana narzędzi«).
Za pomocą pierścienia nastawczego
17
można ustawić pożą-
daną głębokość wiercenia
X
.
Przekręcić pierścień nastawczy
17
w lewo
w celu zwol-
nienia blokady. Pojemnik na pył
11
lub uchwyt
26
umieścić
tak, aby przylegał on równo do ściany lub do obrabianego ele-
mentu. Przyłożyć czubek wiertła do ściany lub elementu prze-
znaczonego do obróbki.
Przesunąć pierścień nastawczy
17
do tyłu tak, aby odstęp od-
powiadał pożądanej głębokości wiercenia
X
. Można umieścić
kołek na szynie i przesunąć pierścień nastawczy
17
do tyłu, aż
do kołka. Aby zablokować ustawienie, pierścień nastawczy
17
należy przekręcić w prawo
. Zdjąć kołek z szyny. Głębo-
kość wiercenia odpowiada długości
X
ustawionej na szynie.
Wskazówka:
W przypadku zastosowania kołków, bardzo
istotne jest dokładnie ustawienie głębokości wiercenia. Jeżeli
wiercony otwór będzie za głęboki, kołek zanurzy się za głębo-
ko w ścianie lub w obrabianym elemencie. Jeżeli otwór okaże
się za mały, kołek będzie wystawał.
Opróżnianie pojemnika na pył (zob. rys. G)
Pojemność pojemnika na pył
11
wystarcza na wywiercenie
ok. 25 otworów w murze, przy głębokości wiercenia: 30 mm i
średnicy: 6 mm.
– Aby wyjąć pojemnik na pył
11
, należy wcisnąć na umiesz-
czone po bokach przyciski blokady
12
i pociągnąć pojem-
nik w dół.
– Opróżnić pojemnik
11
, a następnie ponownie włożyć (tak,
aby w słyszalny sposób zaskoczyła blokada).
Demontaż systemu »Drill Assistant«
– Wcisnąć i przytrzymać zacisk
16
pochłaniacza pyłu
13
, a
następnie zdjąć pochłaniacz
13
, pociągając go do przodu.
– Przekręcić śrubę motylkową
18
w kierunku przeciwnym do
ruchu wskazówek zegara, tak aby dało się przesunąć ręko-
jeść dodatkową
9
i zdjąć ją
9
z elektronarzędzia.
– Przekręcić pierścień nastawczy
17
w lewo
w celu
zwolnienia blokady.
– Przytrzymać rękojeść dodatkową
9
i przesunąć szynę w jej
kierunku, tak, aby w słyszalny sposób zaskoczyła blokada.
Odsysanie pyłu/pojemnik na pył
Pyły niektórych materiałów, na przykład powłok malar-
skich z zawartością ołowiu, niektórych gatunków drewna,
minerałów lub niektórych rodzajów metalu, mogą stano-
wić zagrożenie dla zdrowia. Bezpośredni kontakt fizyczny z
pyłami lub przedostanie się ich do płuc może wywołać re-
akcje alergiczne i/lub choroby układu oddechowego ope-
ratora lub osób znajdujących się w pobliżu.
Niektóre rodzaje pyłów, np. dębiny lub buczyny uważane
są za rakotwórcze, szczególnie w połączeniu z substancja-
mi do obróbki drewna (chromiany, impregnaty do drew-
na). Materiały, zawierające azbest mogą być obrabiane je-
dynie przez odpowiednio przeszkolony personel.
– Należy stosować dostosowany do rodzaju obrabianego
materiału system odsysania pyłu.
– Należy zawsze dbać o dobrą wentylację stanowiska pra-
cy.
– Zaleca się noszenie maski przeciwpyłowej z pochłania-
czem klasy P2.
Należy stosować się do aktualnie obowiązujących w danym
kraju przepisów, regulujących zasady obchodzenia się z
materiałami przeznaczonymi do obróbki.
Należy unikać gromadzenia się pyłu na stanowisku pra-
cy.
Pyły mogą się z łatwością zapalić.
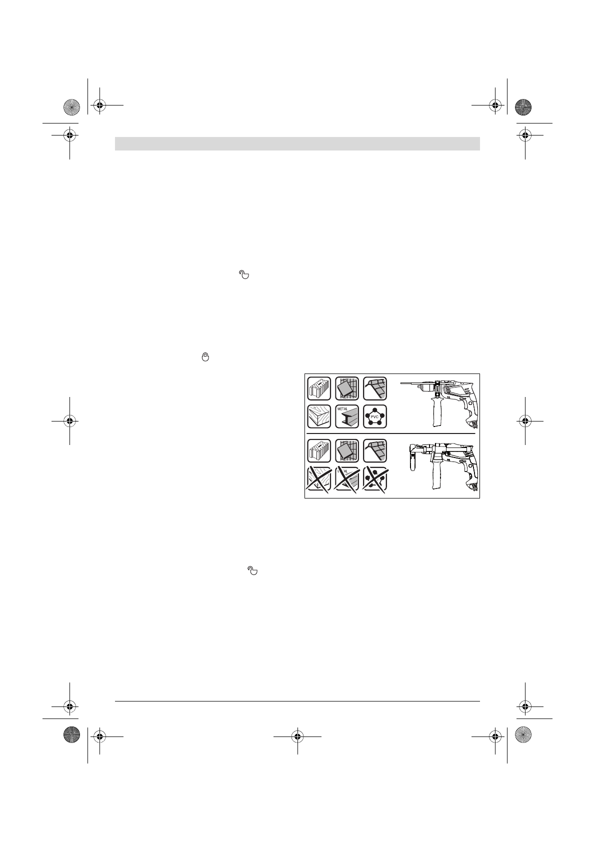
Pojemnik na pył należy stosować tylko przy obróbce
betonu i kamienia.
Wióry drewniane i z tworzyw sztucz-
nych mogą spowodować zatkanie się pojemnika.
Uwaga: niebezpieczeństwo pożaru! Po zamontowaniu
pojemnika na pył nie wolno obrabiać materiałów meta-
licznych.
Gorące wióry metalowe mogą spowodować za-
płon niektórych elementów pojemnika.
Aby optymalnie użytkować pojemnik na pył, należy kierować
się następującymi wskazówkami:
– Zwrócić uwagę, aby pojemnik na pył przylegał dokładnie
do ściany lub obrabianego elementu. Ułatwi to równocześ-
nie wiercenie pod kątem prostym.
– Po osiągnięciu wymaganej głębokości wiercenia należy
najpierw wysunąć wiertło z wywierconego otworu, a do-
piero potem wyłączyć wiertarkę udarową.
– Zwłaszcza przy pracy z wiertłami o większej średnicy może
dojść do zużycia pierścienia ochrony przeciwpyłowej
15
.
W razie uszkodzenia należy go wymienić.
Wymiana narzędzi
Szybkozaciskowy uchwyt wiertarski
(EasyImpact 500/550/550 + Drill Assistant/5500)
(zob. rys. H)
Przytrzymać tylną tuleję
2
szybkozaciskowego uchwytu wier-
tarskiego
3
i obrócić przednią tuleję
1
w kierunku
na tyle,
aby możliwe było osadzenie narzędzia roboczego. Osadzić
narzędzie robocze.
OBJ_BUCH-2913-001.book Page 12 Monday, August 8, 2016 9:40 AM
Содержание
- 37 Указания по безопасности
- 38 Указания по технике безопасности для дрелей; Описание продукта и услуг; Применение по назначению
- 39 Изображенные составные части
- 40 Данные по шуму и вибрации
- 41 Сборка
- 42 Отсос пыли/контейнер для пыли; Замена рабочего инструмента
- 43 Смена сверлильного патрона; Работа с инструментом; Включение электроинструмента
- 44 Техобслуживание и сервис; Техобслуживание и очистка; Утилизация
Характеристики
Остались вопросы?Не нашли свой ответ в руководстве или возникли другие проблемы? Задайте свой вопрос в форме ниже с подробным описанием вашей ситуации, чтобы другие люди и специалисты смогли дать на него ответ. Если вы знаете как решить проблему другого человека, пожалуйста, подскажите ему :)