Daikin EKEQ - Инструкция по эксплуатации

Daikin EKEQ

Кондиционер Daikin EKEQ - инструкция пользователя по применению, эксплуатации и установке на русском языке. Мы надеемся, она поможет вам решить возникшие у вас вопросы при эксплуатации техники.

Если остались дополнительные вопросы — свяжитесь с нами через контактную форму.

1 Страница 1
2 Страница 2
3 Страница 3
4 Страница 4
5 Страница 5
6 Страница 6
7 Страница 7
8 Страница 8
9 Страница 9
10 Страница 10
11 Страница 11
12 Страница 12
13 Страница 13
14 Страница 14
15 Страница 15
16 Страница 16
Страница: / 16

Содержание:

  • Страница 4 – Оглавление; Введение; Инструкция по монтажу
  • Страница 5 – Монтаж; Принадлежности; Обязательные принадлежности; Названия и назначение частей; Правила выбора кондиционера
  • Страница 6 – Таблица 1; рисунок 3; Выбор места установки
  • Страница 7 – Меры предосторожности; Монтаж трубопроводов; Ограничения трубопроводов
  • Страница 8 – Установка комплекта расширительного клапана; Механическая установка; не; Монтаж электропроводки; ТОЛЬКО; «Монтаж электропроводки» на странице 6; рисунке 5; A C
  • Страница 9 – «Монтаж электропроводки»; Подключение проводки внутри блока управления; рисунке 4
  • Страница 10 – Подключение проводки: EKEQMCBAV3; рисунке 2; Таблица подключения и использования
  • Страница 11 – Установка термисторов; Термисторы хладагента; Место установки термистора; Термистор воздуха
  • Страница 12 – Пробный запуск; «Во время подготовительных и монтажных; Дополнительная эксплуатационная проверка; «Возможные; Предварительные операции; Настройка EKEQMCBA на месте; Параметры работы в случае потери электроснабжения
  • Страница 13 – Сигналы работы и отображения; Система не работает; Возможные неисправности и способы их устранения; Система не работает совсем.
  • Страница 14 – Техническое обслуживание
Загрузка инструкции

Инструкция по монтажу

и эксплуатации

EKEQMCBAV3

Комплект дополнительного оборудования для

подключения конденсаторных агрегатов Daikin

к приобретаемым на внутреннем рынке

кондиционерам воздуха

"Загрузка инструкции" означает, что нужно подождать пока файл загрузится и можно будет его читать онлайн. Некоторые инструкции очень большие и время их появления зависит от вашей скорости интернета.

Краткое содержание

Страница 4 - Оглавление; Введение; Инструкция по монтажу

Инструкция по монтажу и эксплуатации 1 EKEQMCBAV3 Комплект дополнительного оборудования для подключения конденсаторных агрегатов Daikin к приобретаемым на внутреннем рынке кондиционерам воздуха 4P383213-1 – 2014.08 Оглавление Страница Введение............................................................

Страница 5 - Монтаж; Принадлежности; Обязательные принадлежности; Названия и назначение частей; Правила выбора кондиционера

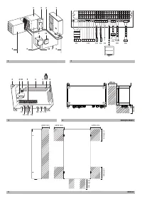
EKEQMCBAV3 Комплект дополнительного оборудования для подключения конденсаторных агрегатов Daikin к приобретаемым на внутреннем рынке кондиционерам воздуха 4P383213-1 – 2014.08 Инструкция по монтажу и эксплуатации 2 Монтаж ■ Операции монтажа кондиционеров описаны в прилагаемойк ним инструкции по монт...

Страница 6 - Таблица 1; рисунок 3; Выбор места установки

Инструкция по монтажу и эксплуатации 3 EKEQMCBAV3 Комплект дополнительного оборудования для подключения конденсаторных агрегатов Daikin к приобретаемым на внутреннем рынке кондиционерам воздуха 4P383213-1 – 2014.08 Таблица 1 Таблице 1 Таблицой 1 1 Кондиционер можно подключить к наружному агрегатув к...

Характеристики

Другие модели - Кондиционеры Daikin

Все кондиционеры Daikin