Daikin ARXN-MB - инструкции и руководства
Кондиционер Daikin ARXN-MB - инструкции пользователя по применению, эксплуатации и установке на русском языке читайте онлайн в формате pdf
Инструкции:
Инструкция по эксплуатации Daikin ARXN-MB
Краткое содержание
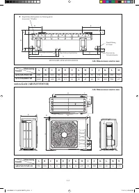
7-1 Ру сс кий Перево д оригинальных инстр укций Kомнатного блок A B ВИД СПЕРЕДИ ВИД СВЕРХУ C ВИД СБОКУ H I B ЗНАК ПОКАЗЫВАЕТ НАПРАВЛЕНИЕ ТРУБОПРОВОДА ЗАДНИЙ ЗАДНИЙ ПРАВЫЙ ЛЕВЫЙ НИЖНИЙ НИЖНИЙ АФИКСИРОВАННЫЕ ВИНТЫ ПЕРЕДНЕЙ РЕШЕТКИ (ВНУТРИ) ЖАЛЮЗИ ПРИЕМНИК СИГНАЛА КОМНАТНЫЙ БЛОК ПЕРЕКЛЮЧАТЕЛЬ ВКЛ./ВЫКЛ...
7-3 Ру сс кий B A Q P R S D O K L L M N F E C G H I J N Размер Модель A B C D E F G H I J K L M N ARXN50/60MV1B 855 730 328 520 179 46 93 149 101 113 603 126 164 15 Наружный блок [ARXN50/60MV1B] Все размеры указаны в мм Размер Модель O P Q R S ARXN50/60MV1B 34 23 362 73 75 7 IM-5WMYJ-1113(0)DK SIEST...
7-4 ! ВHИMAHИE ! ОCTOPOЖHO Установка и техническое обслуживание должны проводиться квалифицированным персоналом, знающим местный код и положения и имеющим опыт работы с данным видом устройств.Весь монтаж проводов должен проводиться в соответствии с национальными правилами электромонтажа.Перед начало...
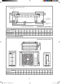
РИСУНОК УСТАНОВКИ УСТАНОВКА НАРУЖНОГО БЛОКА (ARXN25/35MV1B) Kомнатного блок Воздушный Фильтр M4 x 12L Лицeвая панель не менее 30мм от потолка Наружный блок не менее 50мм от стен(с обеих сторон) заделайте зазор в месте отверстия для трубы шпатлевкой. Обрежьте трубу тепловой изоляции до требуемой длин...
Прокладка дренажной системы. (Только блоки с тепловым насосом) 1) Используйте для дренажа дренажную пробку. 2) Если дренажное отверстие закрыто монтажным основанием или поверхностью пола, разместите под опорами наружного блока дополнительные подставки для основания на высоте не менее 30мм. 3) В холо...
В н у т р е н н и й бл о к д ол же н б ы т ь ус та н о в л е н та к и м образом, чтобы предотвратить замыкание холодного выпускаемого воздуха и горячего рециркуляционного воздуха. Пожалуйста, соблюдайте установочные габариты, показанные на рисунке. Не размещайте внутренний блок в месте возможного во...
Утечка воды Водоудержание Погруженный Конец в Воду Дренаж Правильно Неправильно Утечка воды Утечка воды Неправильно Неправильно Сборка монтажной пластины Убедитесь, что стена достаточно крепкая, чтобы выдержать вес блока. В противном случае необходимо укрепить стену пластинами, балками или стойками....
7-10 Модель ATXN25MV1B ATXN35MV1B ATXN50MV1B ATXN60MV1B Mин. допустимая длина (L), м 3 3 Maкс. допустимая длина (L), м 20 30 Максимальная допустимое поднятие (E), м 10 10 Размер Трубы Для Газа, мм / (дюймах) 9,52 (3/8") 12,70 (1/2") 15,88 (5/8") Размер Трубы Для Жидкости, мм / (дюймах) 6...
7-11 Ру сс кий П р о в е д е н и е Т ру б о п р о в од о в И С о е д и н е н и е Муфтой Не используйте грязную или поврежденную трубную обвязку. Если какой-либо трубопровод, испаритель или конденсатор оказались под воздействием или были открыты в течение 15 секунд или более, следует произвести вакуу...
7-12 Модель ATXN25/35MV1B ATXN50/60MV1B ARXN25/35MV1B ARXN50/60MV1B Диапазон напряжения ** 220-240B /~/ 50Гц + ! Сечение шнура сети * мм 2 Количество Проводов 1,5 3 2,5 3 Сечение Проводов Межсоединения * мм 2 Количество Проводов 1,5 4 2,5 4 Рекомендуемый предохранитель /выключатель рейтинг A 15 20 *...
7-13 Ру сс кий СПЕЦИАЛЬНЫЕ МЕРЫ ПРЕДОСТОРОЖНОСТИ ПРИ ЭКСПЛУАТАЦИИ КОНДИЦИОНЕРА С ХЛАДАГЕНТОМ R410A R410A - это новый гидрофторуглеродный хладагент, не повреждающий озоновый слой. Рабочее давление этого нового хладагента в 1,6 раз больше, чем рабочее давление обычного хладагента (R22), поэтому очень ...
7-14 ON/OFF ОХЛАДЬТЕ / ЖАРА (ЗЕЛЕНЫЙ/КРАСНЫЙ) Операция ЗЕЛЕНОГО Режим охлаждения КРАСНЫЙ Обогрев КРАСНЫЙ Режим Авто в процессе Нагрева ЗЕЛЕНОГО Режим Авто в процессе Охлаждения Включен таймер Включен режим ожидания ЗЕЛЕНОГО Включен режим вентилирования ЗЕЛЕНОГО Включен режим осушения КРАСНЫЙ Процесс...
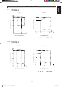
2018 10 0 20 15 10 25 27 30 -10 -15 -20 50464340 30 20 10 10 14 15 19 20 23 25 -10 -20 0 7-15 Ру сс кий 20 15 0 3 7 2 5 2 0 1 2018 10 0 -10 -15 -20 25 23 14 15 19 20 10 50464340 30 20 10 0 ВНУТРЕННЯЯ ТЕМПЕРАТУРА ( ˚ CWB) ОXПАЖДЕНИЕ ОЪОГРЕВ НАР УЖНАЯ ТЕМПЕР А ТУР А ( ˚ CDB) НАР УЖНАЯ ТЕМПЕР А ТУР А (...
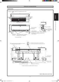
7-16 Ось вращения Выемка на основном блоке СЕРВИС И ТЕХНИЧЕСКОЕ ОБСЛУЖИВАНИЕ Откройте лицевую панель. Возьмитесь за панель в местах углублений на основном блоке (2 углубления с правой и левой стороны) и поднимите ее до упора. 1. • Снимите лицевую панель. Поднимая лицевую панель, сдвиньте ее вправо и...
7-17 Ру сс кий С любыми вопросами по поводу запасных частей обращайтесь, пожалуйста, к уполномоченному дилеру. При обнаружении сбоев в работе модуля кондиционера, немедленно выключите питание сети модуля. Проверьте нижеследующие признаки неисправностей, причины и советы простейших мер по устранению....
P.O.Box 18674, Galleries 4, 11th Floor,Downtown Jebel Ali, Dubai, UAE. Zandvoordestraat 300, B-8400 Oostende, Belgium In the event that there is any conflict in the interpretation of this manual and any translation of the same in any language, the English version of this manual shall prevail. The ma...
Daikin Кондиционеры Инструкции
-
Daikin 3MXS-E
Инструкция по эксплуатации
-
Daikin ABQ-C
Инструкция по эксплуатации
-
Daikin ACQ-D
Инструкция по эксплуатации
-
Daikin AHQ-C
Инструкция по эксплуатации
-
Daikin ARX-K
Инструкция по эксплуатации
-
Daikin ARXS-L
Инструкция по эксплуатации
-
Daikin ARXS-L3
Инструкция по эксплуатации
-
Daikin ATX-J3
Инструкция по эксплуатации
-
Daikin ATX-KV
Инструкция по эксплуатации
-
Daikin ATXN-MB
Инструкция по эксплуатации
-
Daikin ATXP-KV
Инструкция по эксплуатации
-
Daikin ATXS-K
Инструкция по эксплуатации
-
Daikin ATYN-L
Инструкция по эксплуатации
-
Daikin BRC1E53C
Инструкция по эксплуатации
-
Daikin CTXS-K
Инструкция по эксплуатации
-
Daikin CYQL-DK-C
Инструкция по эксплуатации
-
Daikin CYQL-DK-F
Инструкция по эксплуатации
-
Daikin CYQL-DK-R
Инструкция по эксплуатации
-
Daikin CYQM-DK-C
Инструкция по эксплуатации
-
Daikin CYQM-DK-F
Инструкция по эксплуатации