Страница 2 - VIESMANN
Отвечающее санитарно-гигиеническим нормам, комфортное иэкономичное приготовление горячей воды в вертикальныхемкостных водонагревателях из нержавеющей стали. Основные преимущества ■ Длительный срок службы благодаря коррозионной стойкости водонагревателя, изготовленного из высококачественнойнержавеюще...
Страница 3 - Основные преимущества
Vitocell 300-V, тип EVI, с внутренним нагревом A Отверстие для визуального контроля и чистки B Высокоэффективная охватывающая теплоизоляция из жест-кого пенополиуретана (без фторхлоруглеводородов) C Змеевик греющего контура из высококачественной нержа-веющей стали доходит до дна емкости, что обеспеч...
Страница 5 - Объем емкости
h g a b BO HR ZWW HV KW/E c d e f SPR BO Отверстие для визуального контроля и чистки Е Вентиль опорожения HR Обратная магистраль греющего контура HV Подающая магистраль греющего контура KW Трубопровод холодной воды SPR Погружная гильза для датчика температуры емкости или термостатного регулятора WW ...
Страница 8 - Долговременная мощность; Подогрев воды
Долговременная мощность Vitocell 300-V (тип EVA) объемом 130 л 60 60 45 45 45 50 60 70 80 90 Температура подачи греющего контура ...° C Подогрев воды с 10 до ...° C 1,0 м³/ч 5 мбар 50 мбар 35 мбар 2,5 м³/ч 22 мбар 2,0 м³/ч 3,0 м³/ч 45 60 30 40 45 0 5 10 15 20 25 30 0 5 10 15 20 Эксплуатационная мощн...
Страница 9 - Состояние при поставке; Для приготовления горячей воды
Vitocell 300-V (тип EVA) объемом 200 л 60 45 45 60 60 50 60 70 80 90 Температура подачи греющего контура ...° C Подогрев воды с 10 до ...° C 1,0 м³/ч 5 мбар 22 мбар 2,0 м³/ч 35 мбар 2,5 м³/ч 50 мбар 3,0 м³/ч 45 45 30 40 45 0 5 10 15 20 25 30 0 5 10 15 20 Эксплуатационная мощность, кВт 35 25 35 Расхо...
Страница 14 - Гидродинамическое сопротивление, мбар
Гидродинамические сопротивления 4 5 6 8 10 20 30 40 50 60 80 100 200 300 400 500 500 600 800 1000 2000 3000 4000 5000 6000 7000 Гидродинамическое сопротивление, мбар Расход теплоносителя, л/ч для одной водонагревательной секции AB Гидродинамическое сопротивление на стороне греющего контура A Объем е...
Страница 15 - Эксплуатационная мощность, кВт
Долговременная мощность Vitocell 300-V (тип EVI) объемом 200 л 45 45 45 90 Темп. подачи греющего контура ...°C 45 45 60 50 60 70 80 Подогрев воды в конт. ГВС с 10 до ...° C 14 мбар 1,0 м³/ч 48 мбар 2,0 м³/ч 99 мбар 3,0 м³/ч 254 мбар 5,0 м³/ч 60 Расход теплоносителя ... м³/ч Потери давления на сторон...
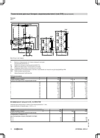
Страница 17 - Технические характеристики; Технические данные батареи водонагревателей (тип EVI)
Емкостные водонагреватели Vitocell 300-V, Typ EVI объемом 300 и 500 л могут быть соединены в батареи из 2 - 3 водонагре- вателей. Коллекторы греющих и водоразборного контуров бата-реи поставляются с завода. Они должны быть заказаны отдельно.Батареи водонагревателей, включающие в себя более 3 секций,...
Страница 18 - Коэффициент мощности N
Пример: 500 л WW KW/E HV e f g h l k b b c c c WW Е EL KW WW Е EL Е EL Z i a c HV HR KW a HV HR HR d Вид сбоку и вид сверху Е Вентиль опорожнения на стороне греющего контура(внутренняя резьба R ½) EL Удалитель воздуха (внутренняя резьба R ½) HR Обратная магистраль отопительного контура HV Подающая м...
Страница 19 - Возможный расход воды; Указания по проектированию; Подключение на стороне контура ГВС
Кратковременная производительность (10-минутная), относительно коэффициента мощности N L при подогреве воды в контуре водоразбора ГВС с 10 до 45 °C Объем л 300 500 Общий объем батареи л 600 1000 1500 Количество емкостных водонагревателей 2 2 3 Кратковременная производительность (л/10 мин.)при темпер...
Страница 20 - Погружная гильза; Объем; Температура греющего контура выше 110 °C
E Контролируемое выходное отверстие выпускной линии F Предохранительный клапан G Запорный вентиль H Регулятор расхода(монтаж и рекомендуемая настройка максимального расходаводы должны соответствовать 10-минутной производитель-ности емкостного водонагревателя) K Подключение манометра L Обратный клапа...
Страница 21 - Принадлежности; Размеры
Электронагревательной вставки При использовании вставок других изготовителей ввинчиваемыйнагреватель должен иметь не подвергаемый нагреву участок дли-ной минимум 100 мм. Инструкция по проектированию Дополнительные указания по проектированию и расчету приве-дены в "Инструкции по проектированию це...
Страница 22 - Циркуляционный насос для нагрева емкостного водонагревателя
b Vitocell 300-V с электронагревательной вставкой EHO B Общая ширина с электронагревательной вставкой EHE Циркуляционный насос для нагрева емкостного водонагревателя № заказа 7339 467 7339 468 7339 469 Тип насоса UP 25-40 VIRS 30/6-1 VI TOP-S 40/4 Напряжение В~ 230 230 230 Потребляемая мощность W 55...
Страница 23 - Блок предохранительных устройств согласно DIN 1988
Блок предохранительных устройств согласно DIN 1988 Блок предохранительных устройств состоит из следующих ком-понентов:■ Запорный вентиль■ Обратный клапан и контрольный патрубок■ патрубок для подключения манометра■ Мембранный предохранительный клапанДля емкостных водонагревателей:■ объемом до 200 л: ...