Thermotrust ST-3 - инструкции и руководства
Котел Thermotrust ST-3 - инструкции пользователя по применению, эксплуатации и установке на русском языке читайте онлайн в формате pdf
Инструкции:
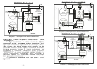
Инструкция по эксплуатации Thermotrust ST-3
1
2
3
4
5
6
7
8
9
10
Thermotrust Котлы Инструкции
-
Thermotrust Classic Star 4N
Инструкция по эксплуатации
-
Thermotrust Classic Star 5N
Инструкция по эксплуатации
-
Thermotrust Classic Star 6
Инструкция по эксплуатации
-
Thermotrust Classic Star 6N
Инструкция по эксплуатации
-
Thermotrust Star Monoblock 12N
Инструкция по эксплуатации
-
Thermotrust Star Monoblock 15
Инструкция по эксплуатации
-
Thermotrust Star Monoblock 18
Инструкция по эксплуатации
-
Thermotrust Star Monoblock 21
Инструкция по эксплуатации
-
Thermotrust Star Monoblock 22
Инструкция по эксплуатации
-
Thermotrust Star Monoblock 6
Инструкция по эксплуатации
-
Thermotrust Star Monoblock 9N
Инструкция по эксплуатации
-
Thermotrust STi-12
Инструкция по эксплуатации
-
Thermotrust STi-15
Инструкция по эксплуатации
-
Thermotrust STi-18
Инструкция по эксплуатации
-
Thermotrust STi-21
Инструкция по эксплуатации
-
Thermotrust STi-24
Инструкция по эксплуатации
-
Thermotrust STi-30
Инструкция по эксплуатации
-
Thermotrust STi-9,45
Инструкция по эксплуатации
-
Thermotrust STi-7,5 220 В
Инструкция по эксплуатации
-
Thermotrust ST-12
Инструкция по эксплуатации