SIME RX 19 CE IONO - инструкции и руководства
Котел SIME RX 19 CE IONO - инструкции пользователя по применению, эксплуатации и установке на русском языке читайте онлайн в формате pdf
Инструкции:
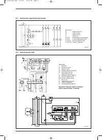
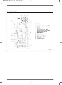
Инструкция по эксплуатации SIME RX 19 CE IONO
1
2
3
4
5
6
7
8
9
10
11
12
13
14
SIME Котлы Инструкции
-
SIME 1R6 OF
Инструкция по эксплуатации
-
SIME 1R7 OF
Инструкция по эксплуатации
-
SIME 1R8 OF
Инструкция по эксплуатации
-
SIME 1R9 OF
Инструкция по эксплуатации
-
SIME 2R10 OF
Инструкция по эксплуатации
-
SIME 2R11 OF
Инструкция по эксплуатации
-
SIME 2R12 OF
Инструкция по эксплуатации
-
SIME 2R13 OF
Инструкция по эксплуатации
-
SIME 2R14 OF
Инструкция по эксплуатации
-
SIME 2R15 OF
Инструкция по эксплуатации
-
SIME 2R6 OF
Инструкция по эксплуатации
-
SIME 2R7 OF
Инструкция по эксплуатации
-
SIME 2R8 OF
Инструкция по эксплуатации
-
SIME 2R9 OF
Инструкция по эксплуатации
-
SIME RMG 100 MK.II
Инструкция по эксплуатации
-
SIME RMG 110 MK II
Инструкция по эксплуатации
-
SIME RMG 70 MK.II
Инструкция по эксплуатации
-
SIME RMG 80 MK.II
Инструкция по эксплуатации
-
SIME RMG 90 MK.II
Инструкция по эксплуатации
-
SIME RONDO 3 OF
Инструкция по эксплуатации