Roda VORTECH ONE OC24 УТ000005176 - инструкции и руководства
Котел Roda VORTECH ONE OC24 УТ000005176 - инструкции пользователя по применению, эксплуатации и установке на русском языке читайте онлайн в формате pdf
Инструкции:
Инструкция по эксплуатации Roda VORTECH ONE OC24 УТ000005176
1
2
3
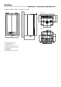
4
5
6
7
8
9
10
11
12
13
14
15
16
17
18
19
20
21
22
23
24
25
26
27
28
29
30
31
32
33
34
35
36
37
38
39
40
41
42
43
44
45
46
47
48
Roda Котлы Инструкции
-
Roda BC-03
Инструкция по эксплуатации
-
Roda BC-04
Инструкция по эксплуатации
-
Roda BC-05
Инструкция по эксплуатации
-
Roda BC-06
Инструкция по эксплуатации
-
Roda BC-07
Инструкция по эксплуатации
-
Roda BC-08
Инструкция по эксплуатации
-
Roda BC-10
Инструкция по эксплуатации
-
Roda Brenner Fest BF-85
Инструкция по эксплуатации
-
Roda Brenner Fest BF-95
Инструкция по эксплуатации
-
Roda Krafter EVO R MOD 20 с чугунным теплообменником
Инструкция по эксплуатации
-
Roda VORTECH DUO CS32 с закрытой камерой сгорания
Инструкция по эксплуатации
-
Roda VORTECH DUO CS28 с закрытой камерой сгорания
Инструкция по эксплуатации
-
Roda Krafter EVO R MOD 60 с чугунным теплообменником
Инструкция по эксплуатации
-
Roda KRAFTER R AP 24
Инструкция по эксплуатации
-
Roda KRAFTER R MOD 24
Инструкция по эксплуатации
-
Roda Krafter EVO R MOD 40 с чугунным теплообменником
Инструкция по эксплуатации
-
Roda Krafter EVO R MOD 30 с чугунным теплообменником
Инструкция по эксплуатации
-
Roda Krafter EVO R MOD 50 с чугунным теплообменником
Инструкция по эксплуатации
-
Roda VORTECH DUO CS14 с закрытой камерой сгорания
Инструкция по эксплуатации
-
Roda BM-07
Инструкция по эксплуатации