Печкин КСГ-20 синий, с авт. TGV-307 - инструкции и руководства
Котел Печкин КСГ-20 синий, с авт. TGV-307 - инструкции пользователя по применению, эксплуатации и установке на русском языке читайте онлайн в формате pdf
Инструкции:
Инструкция по эксплуатации Печкин КСГ-20 синий, с авт. TGV-307
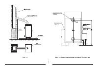
1
2
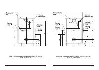
3
4
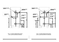
5
6
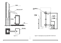
7
8
9
10
11
12
13
14
15
16
17
18
Печкин Котлы Инструкции
-
Печкин КСГ-10 белый, с авт. TGV-307
Инструкция по эксплуатации
-
Печкин КСГВ-20 белый, с авт. TGV-307
Инструкция по эксплуатации
-
Печкин КСГ-20 белый, с авт. TGV-307
Инструкция по эксплуатации
-
Печкин КСГ-12 белый, с авт. TGV-307
Инструкция по эксплуатации
-
Печкин КСГ-10 синий, с авт. TGV-307
Инструкция по эксплуатации
-
Печкин КСГВ-16 синий, с авт. TGV-307
Инструкция по эксплуатации
-
Печкин КСГ-40 синий, с авт. Novasit-820
Инструкция по эксплуатации
-
Печкин КСГВ-16 белый, с авт. TGV-307
Инструкция по эксплуатации
-
Печкин КСГ-10 синий, с авт. EUROSIT под сжиженный газ
Инструкция по эксплуатации
-
Печкин КСГ-16 белый, с авт. TGV-307
Инструкция по эксплуатации
-
Печкин КСГ-31,5 синий, с авт. Novasit-820
Инструкция по эксплуатации
-
Печкин КСГВ-31,5 синий, с авт. Novasit-820
Инструкция по эксплуатации
-
Печкин КСГ-12 синий, с авт. TGV-307
Инструкция по эксплуатации
-
Печкин КСГ-16 синий, с авт. TGV-307
Инструкция по эксплуатации
-
Печкин КСГВ-20 синий, с авт. TGV-307
Инструкция по эксплуатации
-
Печкин КСГВ-40 синий, с авт. Novasit-820
Инструкция по эксплуатации
-
Печкин КСГ-10 белый, с авт. EUROSIT под сжиженный газ
Инструкция по эксплуатации
-
Печкин КСТ 20 стальной
Инструкция по эксплуатации
-
Печкин КСТ 12 стальной
Инструкция по эксплуатации
-
Печкин КСТ 16 стальной
Инструкция по эксплуатации