Печкин КСГ-31,5 синий, с авт. Novasit-820 - Инструкция по эксплуатации

Печкин КСГ-31,5 синий, с авт. Novasit-820

Котел Печкин КСГ-31,5 синий, с авт. Novasit-820 - инструкция пользователя по применению, эксплуатации и установке на русском языке. Мы надеемся, она поможет вам решить возникшие у вас вопросы при эксплуатации техники.

Если остались дополнительные вопросы — свяжитесь с нами через контактную форму.

1 Страница 1
2 Страница 2
3 Страница 3
4 Страница 4
5 Страница 5
6 Страница 6
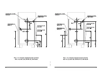
7 Страница 7
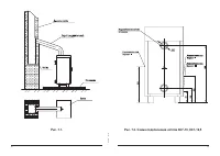
8 Страница 8
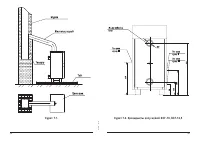
9 Страница 9
10 Страница 10
11 Страница 11
12 Страница 12
13 Страница 13
14 Страница 14
15 Страница 15
16 Страница 16
17 Страница 17
18 Страница 18
Страница: / 18
Загрузка инструкции

Инструкция
по эксплуатации

Газовый напольный котел Печкин КСГ-31,5 синий, с авт.

Novasit-820

Цены на товар на сайте:

http://kotly.vseinstrumenti.ru/gazovye/napolnye/pechkin/ksg-31_5_sinij_s_avt_novasit-820/

Отзывы и обсуждения товара на сайте:

http://kotly.vseinstrumenti.ru/gazovye/napolnye/pechkin/ksg-31_5_sinij_s_avt_novasit-820/#tab-
Responses

"Загрузка инструкции" означает, что нужно подождать пока файл загрузится и можно будет его читать онлайн. Некоторые инструкции очень большие и время их появления зависит от вашей скорости интернета.

Характеристики

Другие модели - Котлы Печкин

Все котлы Печкин