Maunfeld MLP-12B - инструкции и руководства
Посудомоечная машина Maunfeld MLP-12B - инструкции пользователя по применению, эксплуатации и установке на русском языке читайте онлайн в формате pdf
Инструкции:
Инструкция по эксплуатации Maunfeld MLP-12B
Инструкция Maunfeld MLP-12B
Краткое содержание
СОДЕРЖАНИЕ стр .3 СОВЕТЫ ПО БЕЗОПАСНОМУ ИСПОЛЬЗОВАНИЮ ПРИБОРА МЕРЫ БЕЗОПАСНОСТИ стр .6 ХАРАКТЕРИСТИКИ ТЕХНИЧЕСКИЕ ДАННЫЕ стр .7 стр .9 СОСТАВНЫЕ ЧАСТИ ПОСУДОМОЕЧНОЙ МАШИНЫ ПАНЕЛЬ УПРАВЛЕНИЯ ОПИСАНИЕ ПРИБОРА стр .11 стр .14 стр .17 стр .18 ПРЕДУПРЕЖДЕНИЯ , СВЯЗАННЫЕ С УСТАНОВКОЙ РАЗМЕРЫ И УСТАНОВКА В...
-5- www.maunfeld.ru МЕРЫ БЕЗОПАСНОСТИ • Моющие средства для посудомоечной машины являются сильной щелочью , они могут быть чрезвычайно опасными , если их проглотить . Избегайте их попадания на кожу и глаза . • Не оставляйте дверцу машины открытой – это опасно . • Если шнур питания поврежден , во изб...
ОПИСАНИЕ ПРИБОРА СОСТАВНЫЕ ЧАСТИ ПОСУДОМОЕЧНОЙ МАШИНЫ -7- www.maunfeld.ru 1 – Верхняя форсунка 2 – Корзина для столовых приборов 3 – Верхняя корзинка 4 – Внутренний шланг 5 – Нижняя корзинка 6 – Контейнер для соли 7 – Диспенсер средств для полоскания 8 – Полка для чашек 9 – Форсунки 10 – Основной фи...
ПАНЕЛЬ УПРАВЛЕНИЯ ПАНЕЛЬ УПРАВЛЕНИЯ 2 – КНОПКА ЭКСТРА СУШКИ . Служит для выбора функции экстра сушки . Возможно использование только с программами Интенсивная , Стандартная , Экономичная , 90 мин . 3 – ДОПОЛНИТЕЛЬНАЯ ПРОГРАММА . ½ загрузки – данная программа позволяет использовать только 5 мест загр...
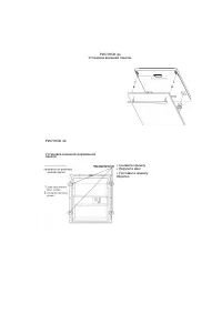
ПОДГОТОВКА К УСТАНОВКЕ www.maunfeld.ru ВНИМАНИЕ ! УСТАНОВКА ТРУБ И ЭЛЕКТРИЧЕСКОГО ОБОРУДОВАНИЯ ДОЛЖНА ПРОИЗВОДИТЬСЯ КВАЛИФИЦИРОВАННЫМИ СПЕЦИАЛИСТАМИ ПОДГОТОВКА К УСТАНОВКЕ Место установки посудомоечной машины должно находиться рядом с подводом холодной воды , сливным шлангом и электрической розеткой...
ПОДГОТОВКА К УСТАНОВКЕ www.maunfeld.ru 1. Для установки фасада воспользуйтесь монтажным трафаретом , который идет в комплекте . Размеры переднего фасада на Рисунке 3. Декоративный фасад должен соответствовать размерам , указанным на рисунке . ( ед . измерения : мм ) РИСУНОК 3 РАЗМЕРЫ И УСТАНОВКА ВНЕ...
ПОДГОТОВКА К УСТАНОВКЕ www.maunfeld.ru Во избежание скопления воды внизу камеры по окончанию мойки , установку сливных шлангов необходимо производить с учетом рекомендаций по длине , высоте и углу перегиба шлангов . Вставьте дренажный шланг в трубу слива минимального диаметра 40 мм , используйте пла...
УСТАНОВКА ПОСУДОМОЕЧНОЙ МАШИНЫ www.maunfeld.ru 1. Прикрепите к дверце посудомоечной машины декоративный фасад при помощи предлагающихся скоб . На рисунке показан образец крепления скоб ( Рис . 4b). -19- УСТАНОВКА ПРИБОРА В НИШУ 2. Отрегулируйте упругость пружин дверцы посудомоечной машины , затянув ...
УСТАНОВКА ПОСУДОМОЕЧНОЙ МАШИНЫ www.maunfeld.ru ПОДКЛЮЧЕНИЕ ХОЛОДНОЙ ВОДЫ Соедините шланг подачи холодной воды с резьбой ³ / ₄ - дюймовым переходником и убедитесь , что он туго затянут . Если трубы подачи воды новые или давно не использовались , дайте воде стечь , чтобы убедиться , что вода чистая и ...
УКАЗАНИЯ ПО ЭКСПЛУАТАЦИИ ВКЛЮЧЕНИЕ МАШИНЫ В ПЕРВЫЙ РАЗ -27- www.maunfeld.ru Перед тем , как использовать посудомоечную машину в первый раз : А . Установите смягчитель воды , В . Залейте в контейнер для соли пол - литра воды , после этого заполните полностью контейнер с солью , С . Налейте в емкость ...
УКАЗАНИЯ ПО ЭКСПЛУАТАЦИИ ВКЛЮЧЕНИЕ МАШИНЫ В ПЕРВЫЙ РАЗ -28- www.maunfeld.ru Примечание : °dH = 1.25 ◦ , Градус Кларка = 1.78°, °fH=0,178 mmol/ л °dH - единица измерения жесткости воды в Германии °fH - единица измерения жесткости воды во Франции Градус Кларка - единица измерения жесткости воды в Вели...
УКАЗАНИЯ ПО ЭКСПЛУАТАЦИИ -29- www.maunfeld.ru СМЯГЧИТЕЛЬ ВОДЫ В разных регионах вода обладает разной жесткостью . При использовании жесткой воды в посудомоечной машине на посуде и внутренних деталях прибора остаются отложения . ЗАГРУЗКА СОЛИ Пользуйтесь только солью , предназначенной для посудомоечн...
УКАЗАНИЯ ПО ЭКСПЛУАТАЦИИ -34- www.maunfeld.ru Моющие средства предназначены для удаления остатков пищи , грязи и пыли . И выведения их в процессе работы из посудомоечной машины . Используйте только средства , предназначенные для посудомоечных машин . Не используйте моющие средства с просроченным сро...
УКАЗАНИЯ ПО ЭКСПЛУАТАЦИИ -36- www.maunfeld.ru Контейнер для моющего средства необходимо наполнять перед каждым циклом мытья , следуя инструкциям в таблице циклов мойки . Одной столовой ложки моющего средства или одной специальной таблетки для посудомоечных машин достаточно для загрузки машины . Чем ...
УКАЗАНИЯ ПО ЭКСПЛУАТАЦИИ -38- www.maunfeld.ru Чтобы достичь наилучших результатов , следуйте приведенным ниже рекомендациям : Удалите остатки еды с посуды . Если остатки еды присохли к посуде , требуется сполоснуть посуду перед загрузкой в посудомойку . Посуда располагается в машине следующим образо...
УКАЗАНИЯ ПО ЭКСПЛУАТАЦИИ www.maunfeld.ru Не подлежат мытью в посудомоечной машине : Деревянные столовые приборы , изделия с фарфоровыми или перламутровыми ручками , изделия из не термоустойчивого пластика , старые столовые приборы со склеенными частями , клееные столовые приборы или тарелки , медная...
УКАЗАНИЯ ПО ЭКСПЛУАТАЦИИ www.maunfeld.ru НАЧАЛО ЦИКЛА МОЙКИ 1. Выдвинуть нижнюю и верхнюю корзину , загрузить посуду , а затем задвинуть корзину обратно . Рекомендуется загружать сначала нижнюю корзину , а затем верхнюю . 2. Залить моющее средство . 3. Вставить шнур питания в розетку . Подача питани...
УКАЗАНИЯ ПО ЭКСПЛУАТАЦИИ www.maunfeld.ru ТАБЛИЦА РАБОЧИХ ЦИКЛОВ МОЙКИ ЗАПУСК ПРОГРАММЫ МОЙКИ -49- Программа Информация для выбора режима Описание режима Расход моющего средства, пре/основное Средство дляполоскания/Продолжительность работы(минуты) Автоматическая/ Стекло Программа авто-определения тип...
УХОД ЗА МАШИНОЙ www.maunfeld.ru Для Вашего удобства мы поместили сливной насос и систему фильтров в легкодоступном месте внутри отсека . Фильтрующая система состоит из трех компонентов : основной фильтр , грубый фильтр и тонкий фильтр . 1 – ОСНОВНОЙ ФИЛЬТР . Остатки пищи и грязи , улавливаемые этим ...
УХОД ЗА МАШИНОЙ www.maunfeld.ru Для достижения наилучших результатов и наивысшего качества система фильтров должна регулярно очищаться . Фильтры эффективно удаляют частички пищи из воды во время мойки , позволяя ей циркулировать по кругу . По этой причине лучше всего удалять крупные частицы из фильт...
УСТРАНЕНИЕ НЕПОЛА ДОК www.maunfeld.ru РЕКОМЕНДАЦИИ ПО УСТРАНЕНИЮ НЕПОЛАДОК ПРОБЛЕМА ВЕРОЯТНАЯ ПРИЧИНА РЕШЕНИЕ М ашина не работает Перегорел предохранитель или отключились пробкиНе подключено электричествоНизкое давление воды Заменить предохранитель и включить пробки.Убрать все приборы, подсоединенны...
УСТРАНЕНИЕ НЕПОЛА ДОК www.maunfeld.ru КОДЫ ОШИБОК КОДЫ Обозначения Возможные причины Не запирается крышка диспенсера Регулятор не установлен в положение «OFF» (ВЫКЛ). Установите регулятор в положение «OFF» и сдвиньте защелку дверцы влево. E1 Долгое время впуска Кран закрыт, или ограничен поток воды,...
ТЕХНИЧЕСКОЕ ОБСЛУЖИВАНИЕ -61- ИНФОРМАЦИЯ О ТРАНСПОРТИРОВКЕ • Храните оригинальную упаковку , она может Вам понадобиться для дальнейшей транспортировки . • Перевозите в оригинальной упаковке , придерживайтесь требований указательных знаков по транспортировке , имеющихся на упаковке . • Если оригиналь...
СЕРВИСНОЕ ОБСЛУЖИВАНИЕ -62- СЕРВИСНОЕ ОБСЛУЖИВАНИЕ ПОСЛЕ ПРОДАЖИ Просим вас придерживаться следующих мер : 1. При покупке товара требуйте , чтобы продавец поставил свою отметку в гарантийном талоне . 2. Используйте свой изделие в соответствии с инструкциями по эксплуатации . 3. Если у Вас возникнут ...
www.maunfeld.ru По всем вопросам технического обслуживания , приобретения аксессуаров , а также по вопросам , связанным с региональным сервисным обслуживанием техники MAUNFELD просим вас обращаться в ближайшую авторизованную сервисную службу . Наши специалисты помогут вам в кратчайшие сроки . Список...
Maunfeld Посудомоечные машины Инструкции
-
Maunfeld MLP 08S
Инструкция по эксплуатации
-
Maunfeld MLP 08S
Инструкция
-
Maunfeld MLP-06DS
Инструкция по эксплуатации
-
Maunfeld MLP-06DW
Инструкция по эксплуатации
-
Maunfeld MLP-082D
Инструкция по эксплуатации
-
Maunfeld MLP-083D
Инструкция по эксплуатации
-
Maunfeld MLP-083I
Инструкция по эксплуатации
-
Maunfeld MLP-122D
Инструкция по эксплуатации
-
Maunfeld MLP-123D
Инструкция по эксплуатации
-
Maunfeld MLP-123I
Инструкция по эксплуатации
-
Maunfeld MLP-12IMROI
Инструкция по эксплуатации
-
Maunfeld MWF12S
Инструкция по эксплуатации
-
Maunfeld MWF12S
Инструкция
-
Maunfeld MWF12I
Инструкция по эксплуатации
-
Maunfeld MWF12I
Инструкция
-
Maunfeld MWF08S
Инструкция по эксплуатации
-
Maunfeld MWF08S
Инструкция
-
Maunfeld MWF08B
Инструкция по эксплуатации
-
Maunfeld MWF08B
Инструкция
-
Maunfeld MWF07IM
Инструкция по эксплуатации