Lemax Uno-35 164546 - инструкции и руководства

Котел Lemax Uno-35 164546 - инструкции пользователя по применению, эксплуатации и установке на русском языке читайте онлайн в формате pdf

1 Page 1
2 Page 2
3 Page 3
4 Page 4
5 Page 5
6 Page 6
7 Page 7
8 Page 8
9 Page 9
10 Page 10
11 Page 11
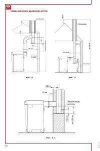
12 Page 12
13 Page 13
14 Page 14
15 Page 15
16 Page 16
17 Page 17
18 Page 18
19 Page 19
20 Page 20
21 Page 21
22 Page 22
23 Page 23
24 Page 24

Краткое содержание

Страница 2 - УВАЖАЕМЫЙ ПОКУПАТЕЛЬ!; Мы благодарны Вам за то, что Вы выбрали продукцию торговой марки

2 Uno В. 1.03 УВАЖАЕМЫЙ ПОКУПАТЕЛЬ! Мы благодарны Вам за то, что Вы выбрали продукцию торговой марки «Лемакс» . Теперь Вы являетесь счастливым обладателем высокоэффективного котла, который при правильной установке, эксплуатации и уходе снизит затраты на отопление Вашего жилья и про-служит Вам долгие...

Страница 3 - СОДЕРЖАНИЕ

3 СОДЕРЖАНИЕ 1. ОБЩИЕ УКАЗАНИЯ .......................................................................................................... 42. КОМПЛЕКТНОСТЬ ............................................................................................................ 43. ТЕХНИЧЕСКИЕ ХАРАКТЕРИСТИКИ .......

Страница 4 - ОБЩИЕ УКАЗАНИЯ; С татистика отказов показы-; КОМПЛЕКТНОСТЬ; серии UNO; предназначены для отопления и горячего

4 Uno В. 1.03 1. ОБЩИЕ УКАЗАНИЯ 1.1. Прежде чем пользоваться отопительным котлом, ознакомьтесь с настоящим руковод- ством. 1.2. Работы по монта ж у, инструк та ж по эксплуатации, запуск в работ у, про- филак тическое обслу живание и ремонт котла производятся специали-зированной организацией и местны...

Lemax Котлы Инструкции