Lemax Premier 23,2 116166 - Инструкция по эксплуатации

Lemax Premier 23,2 116166

Котел Lemax Premier 23,2 116166 - инструкция пользователя по применению, эксплуатации и установке на русском языке. Мы надеемся, она поможет вам решить возникшие у вас вопросы при эксплуатации техники.

Если остались дополнительные вопросы — свяжитесь с нами через контактную форму.

1 Страница 1
2 Страница 2
3 Страница 3
4 Страница 4
5 Страница 5
6 Страница 6
7 Страница 7
8 Страница 8
9 Страница 9
10 Страница 10
11 Страница 11
12 Страница 12
13 Страница 13
14 Страница 14
15 Страница 15
16 Страница 16
17 Страница 17
18 Страница 18
19 Страница 19
20 Страница 20
21 Страница 21
22 Страница 22
23 Страница 23
24 Страница 24
Страница: / 24

Содержание:

  • Страница 2 – УВАЖАЕМЫЙ ПОКУПАТЕЛЬ!; Мы благодарны Вам за то, что Вы выбрали продукцию торговой марки
  • Страница 3 – СОДЕРЖАНИЕ
  • Страница 4 – ОБЩИЕ УКАЗАНИЯ; Статистика отказов показывает, что 94% проблем с аппаратами; КОМПЛЕКТНОСТЬ; Аппарат отопительный со-; собранном виде с газогорелочным устройством.; ТРЕБОВАНИЯ БЕЗОПАСНОСТИ
  • Страница 7 – Категорически; запрещается самовольно устанавливать аппарат отопительный и
  • Страница 8 – УСТРОЙСТВО АППАРАТА ОТОПИТЕЛЬНОГО; Аппарат отопительный газовый бытовой «Premier»
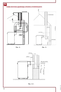
  • Страница 9 – МОНТАЖ, ПОДГОТОВКА К РАБОТЕ; не менее 8 м
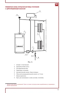
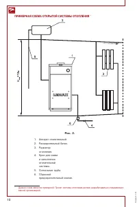
  • Страница 10 – ПРИМЕРНАЯ СХЕМА ОТКРЫТОЙ СИСТЕМЫ ОТОПЛЕНИЯ; предохранительный клапан.
  • Страница 13 – ПОРЯДОК РАБОТЫ
  • Страница 14 – ПРАВИЛА ЭКСПЛУАТАЦИИ, ТЕХНИЧЕСКОЕ ОБСЛУЖИВАНИЕ
  • Страница 15 – смотрена легкосъемная верхняя крышка облицовки.; ГАРАНТИЙНЫЕ ОБЯЗАТЕЛЬСТВА; циями на это не уполномоченными
  • Страница 16 – ВОЗМОЖНЫЕ НЕИСПРАВНОСТИ И МЕТОДЫ ИХ УСТРАНЕНИЯ; Наименование; СВИДЕТЕЛЬСТВО О ПРИЕМКЕ
  • Страница 17 – И ПРОФИЛАКТИЧЕСКОГО ОБСЛУЖИВАНИЯ; Дата; Проверить состояние дымохода и силу тяги в нем
  • Страница 18 – КОНТРОЛЬНЫЕ ТАЛОНЫ; КОНТРОЛЬНЫЙ ТАЛОН НА МОНТА Ж; СВЕДЕНИЯ ОБ УТИЛИЗАЦИИ
Загрузка инструкции

ПАСПОРТ И РУКОВОДСТВО ПО ЭКСПЛУАТАЦИИ

АППАРАТ ОТОПИТЕЛЬНЫЙ

ГАЗОВЫЙ БЫТОВОЙ «ЛЕМАКС»

СЕРИИ PREMIER

"Загрузка инструкции" означает, что нужно подождать пока файл загрузится и можно будет его читать онлайн. Некоторые инструкции очень большие и время их появления зависит от вашей скорости интернета.

Краткое содержание

Страница 2 - УВАЖАЕМЫЙ ПОКУПАТЕЛЬ!; Мы благодарны Вам за то, что Вы выбрали продукцию торговой марки

2 Премьер В. 2.04 УВАЖАЕМЫЙ ПОКУПАТЕЛЬ! Мы благодарны Вам за то, что Вы выбрали продукцию торговой марки Лемакс . Теперь Вы являетесь счастливым обладателем высокоэффективного аппарата отопитель- ного, который при правильной установке, эксплуатации и уходе снизит затраты на отопление Вашего жилья и ...

Страница 3 - СОДЕРЖАНИЕ

3 Премьер В. 2.04 СОДЕРЖАНИЕ 1. ОБЩИЕ УКАЗАНИЯ .......................................................................................................... 42. КОМПЛЕКТНОСТЬ ............................................................................................................ 43. ТЕХНИЧЕСКИЕ ХАР...

Страница 4 - ОБЩИЕ УКАЗАНИЯ; Статистика отказов показывает, что 94% проблем с аппаратами; КОМПЛЕКТНОСТЬ; Аппарат отопительный со-; собранном виде с газогорелочным устройством.; ТРЕБОВАНИЯ БЕЗОПАСНОСТИ

4 Премьер В. 2.04 1. ОБЩИЕ УКАЗАНИЯ 1.1. Прежде чем пользоваться аппаратом отопительным, ознакомьтесь с настоящим руко- водством. 1.2. Работы по монта ж у, инструк та ж по эксплуатации, запуск в работ у, профи- лак тическое обслу живание и ремонт аппарата отопительного производятся специализированно...

Характеристики

Другие модели - Котлы Lemax

Все котлы Lemax