Страница 2 - УВАЖАЕМЫЙ ПОКУПАТЕЛЬ!; Мы благодарны Вам за то, что Вы выбрали продукцию торговой марки
2 Престиж В. 1.02 УВАЖАЕМЫЙ ПОКУПАТЕЛЬ! Мы благодарны Вам за то, что Вы выбрали продукцию торговой марки «Лемакс» . Теперь Вы являетесь счастливым обладателем высокоэффективного котла, который при правильной установке, эксплуатации и уходе снизит затраты на отопление Вашего жилья и про-служит Вам до...
Страница 3 - СОДЕРЖАНИЕ
3 СОДЕРЖАНИЕ 1. ОБЩИЕ УКАЗАНИЯ .......................................................................................................... 42. КОМПЛЕКТНОСТЬ ............................................................................................................ 43. ТЕХНИЧЕСКИЕ ХАРАКТЕРИСТИКИ .......
Страница 4 - ОБЩИЕ УКАЗАНИЯ; С татистика отказов показы-; КОМПЛЕКТНОСТЬ; серии Prestige; предназначены для отопления и горя-
4 Престиж В. 1.02 1. ОБЩИЕ УКАЗАНИЯ 1.1. Прежде чем пользоваться отопительным котлом, ознакомьтесь с настоящим руковод- ством. 1.2. Работы по монта ж у, инструк та ж по эксплуатации, запуск в работ у, про- филак тическое обслу живание и ремонт котла производятся специали-зированной организацией и ме...
Страница 10 - ТРЕБОВАНИЯ БЕЗОПАСНОСТИ; Категорически; запрещается самовольно устанавливать котел и запускать его в ра-
10 Престиж В. 1.02 4. ТРЕБОВАНИЯ БЕЗОПАСНОСТИ 4.1. Никогда не используйте котел без подсоединения к дымоходу.4.2. Перед началом работ котла убедитесь в том, что дымоход не заблокирован.4.3. Необходимо обеспечить достаточную тягу в дымоходе. нет тяги (Не используйте котел!) слабая тяга (Не используйт...
Страница 11 - УСТРОЙСТВО КОТЛА; Котёл Prestige
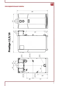
11 5. УСТРОЙСТВО КОТЛА 5.1. Котел представляет собой сварную конструкцию, образующую по всему пе- риметру водяную рубашку, в которую помещен контур горячего водоснабже-ния, изготовленный из медной трубки (для котлов, оснащённых контуром ГВС). В нижней части котла, в проеме топочной камеры, установле...
Страница 12 - МОНТАЖ, ПОДГОТОВКА К РАБОТЕ; Точное; тяги зажигать газогорелочное устройство запрещается.
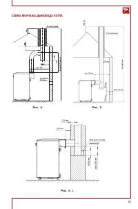
12 Престиж В. 1.02 6. МОНТАЖ, ПОДГОТОВКА К РАБОТЕ 6.1. Объем помещения, в котором устанавливается котел, должен быть не менее 8 м 3 . Расстояние между облицовкой котла и стенами должно быть не менее:– 150 мм сзади;– 100 мм справа и слева;– 1000 мм спереди. 6.2. В помещении, в котором устанавливается...
Страница 13 - ПРИМЕРНАЯ СХЕМА ОТКРЫТОЙ СИСТЕМЫ ОТОПЛЕНИЯ; предохранительный клапан.
13 ПРИМЕРНАЯ СХЕМА ОТКРЫТОЙ СИСТЕМЫ ОТОПЛЕНИЯ * * Данная схема является примерной. Проект системы отопления должен разрабатываться специализиро- ванной организацией. Рис. 2. 1. Котел.2. Расширительный бачок.3. Радиатор отопления. 4. Кран для слива и заполнения отопительной системы. 5. Сигнальная тру...
Страница 16 - ПОРЯДОК РАБОТЫ
16 Престиж В. 1.02 7. ПОРЯДОК РАБОТЫ Для включения котла необходимо проверить заполнение котла и системы отопления водой, проверить наличие тяги, проконтролировать давление газа в газопроводе – оно должно быть не более 5000 Па. Затем выбрать нужный порядок действий, опре-деляемый мощностью котла и п...
Страница 17 - ПРАВИЛА ЭКСПЛУАТАЦИИ, ТЕХНИЧЕСКОЕ ОБСЛУЖИВАНИЕ
17 8. ПРАВИЛА ЭКСПЛУАТАЦИИ, ТЕХНИЧЕСКОЕ ОБСЛУЖИВАНИЕ 8.1. Не сливайте воду из котла и системы отопления в неотопительный период, т. к. это приводит к ускоренному корродированию и преждевременному выходу котла из строя. Добавляйте воду в расширительный бачок по мере её испарения. 8.2. Для исключения ...
Страница 18 - ГАРАНТИЙНЫЕ ОБЯЗАТЕЛЬСТВА; тационных характеристик.
18 Престиж В. 1.02 9. ГАРАНТИЙНЫЕ ОБЯЗАТЕЛЬСТВА 9.1. Гарантийный срок эксплуатации котла при выполнении обязательного ежегодного профилактического обслуживания и соблюдении потребителем условий транспор-тировки, хранения, монтажа и эксплуатации - 36 месяцев со дня продажи. * 9.2. В случае отказа в р...
Страница 20 - ВОЗМОЖНЫЕ НЕИСПРАВНОСТИ И МЕТОДЫ ИХ УСТРАНЕНИЯ; Наименование; СВИДЕТЕЛЬСТВО О ПРИЕМКЕ
20 Престиж В. 1.02 12. ВОЗМОЖНЫЕ НЕИСПРАВНОСТИ И МЕТОДЫ ИХ УСТРАНЕНИЯ Наименование неисправностей Вероятная причина Метод устранения 1. Отключается основная горелка А. Недостаточное разрежение в дымоходе, забит дымоходБ. Нарушена регулировка исходяще-го давления газа с газовой авомати-ки на основную...
Страница 21 - И ПРОФИЛАКТИЧЕСКОГО ОБСЛУЖИВАНИЯ; Дата; При ежегодном техническом обслуживании котла необходимо:; Проверить состояние дымохода и силу тяги в нем
21 13. ОТМЕТКИ О ПРОВЕДЕНИИ ЕЖЕГОДНОГО ТЕХНИЧЕСКОГО И ПРОФИЛАКТИЧЕСКОГО ОБСЛУЖИВАНИЯ Дата Наименование организации Подпись, штамп При ежегодном техническом обслуживании котла необходимо: 1. Проверить состояние дымохода и силу тяги в нем; 2. Проверить и при необходимости очистить от сажи турбулизатор...
Страница 22 - КОНТРОЛЬНЫЙ ТАЛОН НА МОНТА Ж
22 Престиж В. 1.02 15. СВЕДЕНИЯ ОБ УТИЛИЗАЦИИ После завершения эксплуатации котел необходимо демонтировать, выполнив следу-ющие операции:– перекрыть запорные краны на трубопроводах системы отопления, слить воду из котла (при отсутствии запорных кранов слить воду из всей системы отопления); – перекры...
Страница 24 - СЕРВИСНЫЕ ЦЕНТРЫ
24 Престиж В. 1.02 16. СЕРВИСНЫЕ ЦЕНТРЫ Регион Населённый пункт Сервисный центр Телефонный номер Алтайский край Барнаул Баранаулгоргаз (3854) 30-44-04 Барнаул Газпром газораспред. Барнаул (3852) 28-20-00 Барнаул Единая Служба Газа 8-800-700-18-32, 8-800-250-18-32 Бийск Баранаулгоргаз (3852) 28-40-00...