Страница 2 - УВАЖАЕМЫЙ ПОКУПАТЕЛЬ!
2 Газовик В. 2.08 УВАЖАЕМЫЙ ПОКУПАТЕЛЬ! Мы благодарны Вам за то, что Вы выбрали продукцию торговой марки Лемакс . Теперь Вы являетесь счастливым обладателем высокоэффективного аппарата отопитель- ного, который при правильной установке, эксплуатации и уходе снизит затраты на отопление Вашего жилья и ...
Страница 3 - СОДЕРЖАНИЕ
3 Газовик В. 2.08 СОДЕРЖАНИЕ 1. ВНИМАНИЕ ..................................................................................................................... 4 2. КОМПЛЕКТНОСТЬ .......................................................................................................... 4 3. ОБЩИЕ УКАЗ...
Страница 4 - ВНИМАНИЕ; Требования к помещению, испльзуемому для установки аппарата:; КОМПЛЕКТНОСТЬ; виде с газогорелочным устройством.
4 Газовик В. 2.08 1. ВНИМАНИЕ УВА Ж АЕМЫЙ ПОКУПАТЕЛЬ! Запрещается отбор горячей воды из системы отопления! • При покупке аппарата требуйте заполнения торгующей организацией тало-на на гарантийный ремонт. Проверьте комплектность и товарный вид. По-сле продажи аппарата покупателю предприятие-изготовит...
Страница 5 - ТРЕБОВАНИЯ БЕЗОПАСНОСТИ
5 Газовик В. 2.08 современный Вы должны уделить особое внимание конструкции Вашего дымохода. При КПД аппарата ниже 80-85% температура уходящих газов составляет около 200 º С, что обеспечивает хорошую тягу даже при плохо утепленном дымоходе. При КПД выше 86% температура уходящих газов падает до 110-1...
Страница 9 - ВАЖНАЯ ИНФОРМАЦИЯ; Аппарат снабжен датчиком контроля тяги в дымоходе.; НИКОГДА; НЕ ПРОИЗВОДИТЕ САМОСТОЯТЕЛЬНЫХ МАНИПУЛЯЦИЙ С ДАТЧИКОМ ТЯГИ!; УСТРОЙСТВО АППАРАТА; диэлек трическ ую вставк у на входе газа в аппарат.; ПОРЯДОК РАБОТЫ
9 Газовик В. 2.08 ВАЖНАЯ ИНФОРМАЦИЯ Аппарат снабжен датчиком контроля тяги в дымоходе. При возниконовении препятствий (попадания посторонних пред- метов и т. д.) в дымоходе датчик тяги не позволит начать работу отопительного прибора или вык лючит его во время работы. НИКОГДА НЕ ПРОИЗВОДИТЕ САМОСТОЯТ...
Страница 10 - только затем начинайте розжиг горелки.; УКАЗАНИЯ ПО МОНТАЖУ, ТЕХНИЧЕСКОЕ ОБСЛУЖИВАНИЕ; – 100 мм справа и слева
10 Газовик В. 2.08 часовой стрелки до позиции 1-7. Максимальная температура 80 º С теплоносителя со- ответствует цифре 7 на рукоятке управления (при соблюдении условий п. 8.4.). 7.5. Для отключения основной газовой горелки повернуть рукоятку управления 3 по ча- совой стрелке до позиции ( ). При этом...
Страница 11 - ГАРАНТИЙНЫЕ ОБЯЗАТЕЛЬСТВА
11 Газовик В. 2.08 не превышающее рабочее давление воды (см. таблицу 1), на расстоянии не более 150 мм от места присоединения вентиля для заполнения системы отопления. 8.6. Расширительный бачок устанавливается в верхней точке главного стояка, желательно в отапливаемом помещении. Запрещается устанавл...
Страница 12 - ПРАВИЛА УПАКОВКИ, ТРАНСПОРТИРОВАНИЯ И ХРАНЕНИЯ
12 Газовик В. 2.08 – при образовании накипи и прогара на стенках теплообменника. 9.4. Срок службы аппарата 15 лет.9.5. Предприятие оставляет за собой право вносить изменения, не ухудшающие эксплуа- тационных характеристик. 9.6. Работы, связанные с техническим и профилактическим обслуживанием, не явл...
Страница 13 - ВОЗМОЖНЫЕ НЕИСПРАВНОСТИ И МЕТОДЫ ИХ УСТРАНЕНИЯ
13 Газовик В. 2.08 12. ВОЗМОЖНЫЕ НЕИСПРАВНОСТИ И МЕТОДЫ ИХ УСТРАНЕНИЯ Наименование неисправностей Вероятная причина Метод устранения 1. Отключается основ-ная горелка А . Недостаточное разрежение в дымоходе, забит дымоходБ . Нарушена регулировка ис- ходящего давления газа с газовой автоматики на осно...
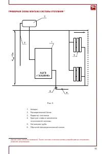
Страница 15 - ПРИМЕРНАЯ СХЕМА МОНТАЖА СИСТЕМЫ ОТОПЛЕНИЯ *; отопительной системы.
15 Газовик В. 2.08 ПРИМЕРНАЯ СХЕМА МОНТАЖА СИСТЕМЫ ОТОПЛЕНИЯ * * Данная схема является примерной. Проект системы отопления должен разрабатываться специализи- рованной организацией. Рис 2. 1. Аппарат.2. Расширительный бачок.3. Радиатор отопления.4. Кран для слива и заполнения отопительной системы. 5....
Страница 17 - КОНТРОЛЬНЫЕ ТАЛОНЫ; КОНТРОЛЬНЫЙ ТАЛОН НА МОНТА Ж
17 Газовик В. 2.08 КОНТРОЛЬНЫЕ ТАЛОНЫ КОНТРОЛЬНЫЙ ТАЛОН НА МОНТА Ж 1. Дата монтажа __________________________________________________________________________ 2. Кем произведен монтаж ________________________________________________________________ ____________________________________________________...
Страница 18 - СВЕДЕНИЯ ОБ УТИЛИЗАЦИИ
18 Газовик В. 2.08 13. СВЕДЕНИЯ ОБ УТИЛИЗАЦИИ После завершения эксплуатации АОГВ необходимо демонтировать, выполнив следую-щие операции:– перекрыть запорные краны на трубопроводах системы отопления, слить воду из АОГВ (при отсутствии запорных кранов слить воду из всей системы отопления); – перекрыть...