Страница 2 - УВАЖАЕМЫЙ ПОКУПАТЕЛЬ!; Мы благодарны Вам за то, что Вы выбрали продукцию торговой марки
2 Премиум 50-100 В. 1.17 УВАЖАЕМЫЙ ПОКУПАТЕЛЬ! Мы благодарны Вам за то, что Вы выбрали продукцию торговой марки Лемакс . Теперь Вы являетесь счастливым обладателем высокоэффективного котла, который при правильной установке, эксплуатации и уходе снизит затраты на отопление Вашего жилья и про-служит В...
Страница 3 - СОДЕРЖАНИЕ
3 СОДЕРЖАНИЕ 1. ОБЩИЕ УКАЗАНИЯ ......................................................................................................... 4 2. КОМПЛЕКТНОСТЬ .......................................................................................................... 4 3. ТЕХНИЧЕСКИЕ ХАРАКТЕРИСТИКИ ........
Страница 4 - серии Премиум; предназначены для отопления и го-; Котел соответствует всем требованиям безо-; с газогорелочным устройством.; ТРЕБОВАНИЯ БЕЗОПАСНОСТИ
4 Премиум 50-100 В. 1.17 1. ОБЩИЕ УКАЗАНИЯ 1.1. Прежде чем пользоваться отопительным котлом, ознакомьтесь с настоящим руковод- ством. 1.2. Работы по монта ж у, инструк та ж по эксплуатации, запуск в работ у, профи- лак тическое обслу живание и ремонт котла производятся специализирован-ной организаци...
Страница 8 - Категорически; запрещается самовольно устанавливать котел и запускать его в ра-; УСТРОЙСТВО КОТЛА
8 Премиум 50-100 В. 1.17 нет тяги (Не используйте котел!) слабая тяга (Не используйте котел!) недостаточная тяга (Не используйте котел!) хорошая тяга (Котел можно использовать!) 4.4. Техническое обслуживание котла должно производиться только специально обучен- ным, квалифицированным персоналом серви...
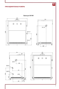
Страница 9 - МОНТАЖ, ПОДГОТОВКА К РАБОТЕ; проекте на систему отопления.
9 На задней поверхности котла расположены резьбовые патрубки, предназначенные для подключения котла к системе отопления и горячего водоснабжения. Регулиро-вание и поддерживание заданной температуры обеспечивается терморегулятором, модулирующим пламя основной горелки, снабженным ручкой с делениями, к...
Страница 12 - предохранительный клапан.; ПРИМЕРНАЯ СХЕМА ОТКРЫТОЙ СИСТЕМЫ ОТОПЛЕНИЯ *
12 Премиум 50-100 В. 1.17 Рис. 2. 1. Котел.2. Расширительный бачок.3. Радиатор отопления. 4. Кран для слива и заполнения отопительной системы. 5. Сигнальная труба.6. Сбросной предохранительный клапан. ПРИМЕРНАЯ СХЕМА ОТКРЫТОЙ СИСТЕМЫ ОТОПЛЕНИЯ * * Данная схема является примерной. Проект системы отоп...
Страница 14 - СХЕМА МОНТАЖА ДЫМОХОДА КОТЛА; тяги зажигать газогорелочное устройство запрещается.; ПОРЯДОК РАБОТЫ
14 Премиум 50-100 В. 1.17 Рис. 4. СХЕМА МОНТАЖА ДЫМОХОДА КОТЛА 150 6.12. После подключения котла к системе газоснабжения и заполнения теплоносителем отопительной системы, работники специализированного сервисного центра или местного управления газового хозяйства должны отрегулировать и проверить на с...
Страница 16 - ПРАВИЛА ЭКСПЛУАТАЦИИ, ТЕХНИЧЕСКОЕ ОБСЛУЖИВАНИЕ
16 Премиум 50-100 В. 1.17 8. ПРАВИЛА ЭКСПЛУАТАЦИИ, ТЕХНИЧЕСКОЕ ОБСЛУЖИВАНИЕ 8.1. Не сливайте воду из котла и системы отопления в неотопительный период, т. к. это приводит к ускоренному корродированию и преждевременному выходу котла из строя. Добавляйте теплоноситель в систему отопления по мере его и...
Страница 17 - ГАРАНТИЙНЫЕ ОБЯЗАТЕЛЬСТВА; тационных характеристик.
17 9. ГАРАНТИЙНЫЕ ОБЯЗАТЕЛЬСТВА 9.1. Гарантийный срок эксплуатации котла при выполнении обязательного ежегодного профилактического обслуживания и соблюдении потребителем условий транспор-тировки, хранения, монтажа и эксплуатации – 36 месяцев со дня продажи*. 9.2. В случае отказа в работе котла в теч...
Страница 19 - ВОЗМОЖНЫЕ НЕИСПРАВНОСТИ МЕТОДЫ ИХ УСТРАНЕНИЯ; Наименование
19 12. ВОЗМОЖНЫЕ НЕИСПРАВНОСТИ МЕТОДЫ ИХ УСТРАНЕНИЯ Наименование неисправностей Вероятная причина Метод устранения 1. Отключается основная горелка А. Недостаточное разрежение в ды-моходе, забит дымоходБ. Нарушена регулировка исходящего давления газа с газовой автоматики на основную и пилотную горелк...
Страница 20 - Дата; При ежегодном техническом обслуживании котла необходимо:; Проверить состояние дымохода и силу тяги в нем
20 Премиум 50-100 В. 1.17 13. ОТМЕТКИ О ПРОВЕДЕНИИ ЕЖЕГОДНОГО ТЕХНИЧЕСКОГО И ПРОФИЛАКТИЧЕСКОГО ОБСЛУЖИВАНИЯ Дата Наименование организации Подпись, штамп ВНИМАНИЕ! Техническое обслуживание котла производит специализированная организа-ция за отдельную плату 1 раз в год перед началом отопительного сезо...
Страница 21 - КОНТРОЛЬНЫЕ ТАЛОНЫ; КОНТРОЛЬНЫЙ ТАЛОН НА МОНТА Ж
21 14. КОНТРОЛЬНЫЕ ТАЛОНЫ КОНТРОЛЬНЫЙ ТАЛОН НА МОНТА Ж 1. Дата монтажа __________________________________________________________________________ 2. Кем произведен монтаж ________________________________________________________________ ________________________________________________________________...
Страница 22 - СВЕДЕНИЯ ОБ УТИЛИЗАЦИИ
22 Премиум 50-100 В. 1.17 15. СВЕДЕНИЯ ОБ УТИЛИЗАЦИИ После завершения эксплуатации котёл необходимо демонтировать, выполнив сле-дующие операции:– перекрыть запорные краны на трубопроводах системы отопления, слить воду из котла (при отсутствии запорных кранов слить воду из всей системы отопления); – ...
Страница 24 - СЕРВИСНЫЕ ЦЕНТРЫ
24 Премиум 50-100 В. 1.17 16. СЕРВИСНЫЕ ЦЕНТРЫ Регион Населённый пункт Сервисный центр Телефонный номер Алтайский край Барнаул Баранаулгоргаз (3854) 30-44-04 Барнаул Газпром газораспред. Барнаул (3852) 28-20-00 Барнаул Единая Служба Газа 8-800-700-18-32, 8-800-250-18-32 Бийск Баранаулгоргаз (3852) 2...