Страница 2 - УВАЖАЕМЫЙ ПОКУПАТЕЛЬ!; Мы благодарны Вам за то, что Вы выбрали продукцию торговой марки
2 Лидер V 2.19 УВАЖАЕМЫЙ ПОКУПАТЕЛЬ! Мы благодарны Вам за то, что Вы выбрали продукцию торговой марки Лемакс . Теперь Вы являетесь счастливым обладателем высокоэффективного котла, который при правильной установке, эксплуатации и уходе снизит затраты на отопление Вашего жилья и про-служит Вам долгие ...
Страница 3 - СОДЕРЖАНИЕ
3 Лидер V 2.19 СОДЕРЖАНИЕ 1. КОМПЛЕКТНОСТЬ .......................................................................................................... 4 2. ОБЩИЕ УКАЗАНИЯ ......................................................................................................... 4 3. ТЕХНИЧЕСКИЕ ХАРАКТЕ...
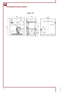
Страница 4 - с газогорелочным устройством.; ТЕХНИЧЕСКИЕ ХАРАКТЕРИСТИКИ; – изменять конструкцию котла или его частей
4 Лидер V 2.19 1. КОМПЛЕКТНОСТЬ 1.1. Отопительный котел с установленным на нем газогорелочным устройством.1.2. Упаковочная тара.1.3. Руководство по эксплуатации котла. 2. ОБЩИЕ УКАЗАНИЯ 2.1. Котлы чуг унные отопительные типа «Лидер» предназначены д ля отопления квар- тир, жилых домов, кот тед жей, з...
Страница 9 - тяги зажигать газогорелочное устройство запрещается.; ПОРЯДОК РАБОТЫ; ручку управления против часовой стрелки в позицию розжига (
9 Лидер V 2.19 4.7. При появлении запаха газа необходимо закрыть кран на газопроводе, проветрить помеще- ние, вызвать специалиста из местной службы газового хозяйства по телефону 04, 004 или 040 для сотовых. До приезда аварийной службы не пользуйтесь выключателями электро-освещения, не пользуйтесь г...
Страница 13 - ку управления по часовой стрелке в позицию «выключено» (; ) и только затем начинайте; Пьезорозжиг
13 Лидер V 2.19 7.5. Для отключения основной газовой горелки повернуть ручку управления по часовой стрелке до позиции ( ). При этом на пилотной горелке будет гореть факел. 7.6. Для полного отключения подачи газа на пилотную и основную горелку повернуть руч- ку управления по часовой стрелке в позицию...
Страница 15 - УКАЗАНИЯ ПО МОНТАЖУ И ТЕХНИЧЕСКОМУ ОБСЛУЖИВАНИЮ
15 Лидер V 2.19 7.5. Выключение аппарата производится путем поворота ручки в положение «точка» (рис. 9). При этом пилотная и основные горелки (если горят) погаснут. 7.6. Если ручка управления после перевода в положение «точка» сразу же устанавливается в положение «искра» , то горелка не зажжется , п...
Страница 16 - ПРИМЕРНАЯ СХЕМА МОНТАЖА СИСТЕМЫ ОТОПЛЕНИЯ *
16 Лидер V 2.19 Рис. 4. СХЕМА МОНТАЖА ДЫМОХОДА КОТЛА Рис 4.1. 1. Котел.2. Расширительный бачок. 3. Радиатор отопле- ния. 4. Кран для слива отопительной системы. 5. Кран для заполне- ния отопительной системы. 6. Сигнальная труба. ПРИМЕРНАЯ СХЕМА МОНТАЖА СИСТЕМЫ ОТОПЛЕНИЯ * * Данная схема является при...
Страница 18 - ства или организация, обслуживающая бытовые газовые приборы.; ГАРАНТИЙНЫЕ ОБЯЗАТЕЛЬСТВА; несоблюдения правил установки и эксплуатации; ПРАВИЛА УПАКОВКИ, ТРАНСПОРТИРОВКИ И ХРАНЕНИЯ
18 Лидер V 2.19 ства или организация, обслуживающая бытовые газовые приборы. 8.16. Запрещается эксплуатация котла при заполнении отопительной системы этиленсо- держащей жидкостью. Для заполнения системы отопления и горячего водоснабжения не допускается использовать теплоноситель жёсткостью выше 5 мм...
Страница 20 - ВОЗМОЖНЫЕ НЕИСПРАВНОСТИ И МЕТОДЫ ИХ УСТРАНЕНИЯ; Наименование
20 Лидер V 2.19 12. ВОЗМОЖНЫЕ НЕИСПРАВНОСТИ И МЕТОДЫ ИХ УСТРАНЕНИЯ Наименование неисправностей Вероятная причина Метод устранения 1. Отключается основная горелка А. Недостаточное разрежение в ды- моходе, забит дымоход Б. Нарушена регулировка исходящего давления газа с газовой автоматики на основную ...
Страница 21 - И ПРОФИЛАКТИЧЕСКОГО ОБСЛУЖИВАНИЯ; Дата; При ежегодном техническом обслуживании котла необходимо:
21 Лидер V 2.19 13. ОТМЕТКИ О ПРОВЕДЕНИИ ЕЖЕГОДНОГО ТЕХНИЧЕСКОГО И ПРОФИЛАКТИЧЕСКОГО ОБСЛУЖИВАНИЯ Дата Наименование организации Подпись, штамп При ежегодном техническом обслуживании котла необходимо: 1. Проверить состояние дымохода и силу тяги в нем;2. Проверить и при необходимости очистить от сажи ...
Страница 22 - КОНТРОЛЬНЫЕ ТАЛОНЫ; КОНТРОЛЬНЫЙ ТАЛОН НА МОНТА Ж; СВЕДЕНИЯ ОБ УТИЛИЗАЦИИ
22 Лидер V 2.19 14. КОНТРОЛЬНЫЕ ТАЛОНЫ КОНТРОЛЬНЫЙ ТАЛОН НА МОНТА Ж 1. Дата монтажа __________________________________________________________________________ 2. Кем произведен монтаж ________________________________________________________________ ___________________________________________________...