Страница 5 - ОБЩАЯ ИНФОРМАЦИЯ; Производитель свидетельствует
Прежде чем вставить вилку питающего провода посудомоечной машины в розетку питания и приступить к эксплуатации, обязательно внимательно ознакомьтесь с содержанием настоящей инструкции по эксплуатации и установке. Изложенные в ней указания помогут снизить риск получеaния телесных травм и повреждения ...
Страница 6 - УКАЗАНИЯ ПО ТЕХНИКЕ БЕЗОПАСНОСТИ; Перед установкой
УКАЗАНИЯ ПО ТЕХНИКЕ БЕЗОПАСНОСТИ Перед установкой Проверьте и убедитесь, что машина не получила повреждений во время транспортировки. Категорически за - прещается устанавливать и исполь - зовать поврежденную машину. В слу - чае сомнений просим обращаться к продавцу. Перед первым запуском См. Примеча...
Страница 8 - Безопасность
8 УКАЗАНИЯ ПО ТЕХНИКЕ БЕЗОПАСНОСТИ Безопасность детей Вода, которая использовалась в процессе мытья в посудомоечной машине, непри - годна для питья. Опасность вредного воздействия едких средств. При открывании дверцы во время работы программы следует соблюдать осторож - ность из-за высокой температу...
Страница 9 - В случае
9 УКАЗАНИЯ ПО ТЕХНИКЕ БЕЗОПАСНОСТИ В случае возникновения проблем Ремонт и модификацию посудомоечной машины могут выполнять только квалифи - цированные сотрудники сервиса.В случае проблем или перед началом ре - монта всегда отключайте прибор от сети электропитания:Отключите устройство, отсоедините ш...
Страница 10 - которые не
10 УКАЗАНИЯ ПО ТЕХНИКЕ БЕЗОПАСНОСТИ Предметы, которые не разрешается мыть в посудомоечной машине Пепельницы, посуда со следами воск а и парафина, полирующие средства, краски и химические ве - щества, а также предметы из желез - ных сплавов; С т о л о в ы е п р и б о р ы с д е - р е в я н н ы м и , к...
Страница 11 - РАСПАКОВКА
11 УКАЗАНИЯ ПО ТЕХНИКЕ БЕЗОПАСНОСТИ РАСПАКОВКА На время транспорта прибор упако - ван и предохраняется таким обра - зом, чтобы избежать его повре - ждения. После распаковки просим обращаться с упаковочными мате - риалами таким образом, чтобы они не угрожали окружающей среде. Все упаковочные материал...
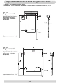
Страница 13 - УСТАНОВКА УСТРОЙСТВА; РАЗМЕЩЕНИЕ ПРИБОРА
13 Для установки посудомоечной машины необходимо выбрать место, удобное для загрузки и выгрузки посуды.Не разрешается устанавливать машину в помещениях, в которых температура воздуха может снижаться ниже 0°C. Перед монтажом на месте снимите всю упаковку с машины в соответствии с инструкцией на упако...
Страница 14 - СЛИВНОЙ ШЛАНГ; ПОДСОЕДИНЕНИЕ К ЭЛЕКТРИЧЕСКОЙ СЕТИ
14 ВНИМАНИЕ: Некоторые модели посудомоечных машин оснащены системой Aquastop. При наличии системы Aquastop возникает опасное напряжение. Строго запрещается перерезать, перекручивать и перегибать систему Aquastop Ее запрещается заворачивать или скручивать. Внимание! Для безопасности закрывайте кран п...
Страница 16 - ОПИСАНИЕ ПРИБОРА; УСТРОЙСТВО ПОСУДОМОЕЧНОЙ
16 Ниже перечислены элементы посудомоечной машины (Рис. 1): ОПИСАНИЕ ПРИБОРА УСТРОЙСТВО ПОСУДОМОЕЧНОЙ МАШИНЫ ВНИМАНИЕ: Иллюстрации приведены исключительно для просмотра. Внешний вид и набор кор - зин может отличаться в зависимости от модели посудомоечной машины. Нижний разбрызгива - тель Блок фильтр...
Страница 17 - ДИСПЛЕЙ И ПАНЕЛЬ УПРАВЛЕНИЯ
17 ДИСПЛЕЙ И ПАНЕЛЬ УПРАВЛЕНИЯ ВНИМАНИЕ: Иллюстрации приведены исключительно для просмотра. Внешний вид и набор кор - зин может отличаться в зависимости от модели посудомоечной машины. ВНИМАНИЕ: Иллюстрации приведены исключительно для просмотра. Внешний вид и набор кор - зин может отличаться в завис...
Страница 19 - ПОДГОТОВКА УСТРОЙСТВА К РАБОТЕ
19 Перед запуском прибора убедитесь, что параметры сети электропитания соответ - ствуют параметрам, указанным на заводском щитке. Снимите всю упаковку с внутренних частей машины. Приготовьте средство для смягчения воды. Полностью наполнить дозатор соли водой, затем засыпать 1,5 кг специальной соли (...
Страница 26 - ЗАГРУЗКА ПОСУДЫ В ПОСУДОМОЕЧНУЮ МАШИНУ
26 ЗАГРУЗКА ПОСУДЫ В ПОСУДОМОЕЧНУЮ МАШИНУ Верхняя корзина Верхняя корзина запроектирована для мытья хрупкой посуды, такой как стаканы, чайные чашки, десертные тарелки и т.п. Посуда в верхней корзине должна иметь меньшую степень загрязнения, чем посуда в нижней корзине . Кроме того, на полках можно г...
Страница 31 - ВКЛЮЧЕНИЕ ПОСУДОМОЕЧНОЙ МАШИНЫ И ВЫБОР ПРОГРАММЫ
ВКЛЮЧЕНИЕ ПОСУДОМОЕЧНОЙ МАШИНЫ И ВЫБОР ПРОГРАММЫ 31 Включение устройства1. Вынуть нижнюю и верхнюю корзины, загрузить посуду и вставить корзины обратно. Рекомендуется в первую очередь загружать нижнюю корзину, затем верхнюю. 2. Налить/засыпать моющее средство. 3. Вставить штепсельную вилку в розетку...
Страница 33 - ОЧИСТКА И УХОД
ОЧИСТКА И УХОД Очистка внешней поверхностиДверца и уплотнение дверцыДля того, чтобы удалить грязь, скопившуюся на уплотнении в дверце, необходимо регулярно протирать уплотнение влажной салфеткой. Загружая посуду в машину, остатки еды и напитков могут попадать на боковые части дверцы машины. Эти пове...
Страница 34 - УСТРАНЕНИЕ НЕПОЛА ДОК
УСТРАНЕНИЕ НЕПОЛА ДОК 34 3. Крупные частицы еды смываются под проточной водой. Для более тщательной очистки фильтров использовать мягкую чистящую щетку. 4. Собрать фильтры в обратном порядке, вставить крышку фильтра и повернуть впра - во по стрелке. ПРЕДУПРЕЖДЕНИЕ Не закручивать слишком сильно фильт...
Страница 36 - КОДЫ ОШИБОК И УСТРАНЕНИЕ НЕПОЛА ДОК
36 КОДЫ ОШИБОК И УСТРАНЕНИЕ НЕПОЛА ДОК В случае аварии на дисплее машины высвечивается код ошибки, идентифицирующий проблему: КОД ОШИБКИ ОПИСАНИЕ НЕПОЛАДКИ ДЕЙСТВИЯ Индикатор короткой программы быстро мигает. Слишком долго выполняется заполнение водой. Вентиль закрыт, подача воды заблокирована или д...
Страница 50 - Гарантия
Более подробная информация находится в Базе Данных Продуктов EPREL на сайте https://eprel.ec.europa.eu. Информацию можно по - лучить, отсканировав QR-код с энергетической этикетки или введя модель продукта с энергетической этикетки в поисковой системе EPREL https://eprel.ec.europa.eu/ ГАРАНТИЯ, ПОСЛ...
Страница 52 - Компания изготовитель; Претензии по качеству
Компания изготовитель Амика С.А., Польша, 64-510 Вронки, ул. Мицкевича, 52 Тел. +48 67 25 46100, факс +48 67 25 40 320 Amica S.A., ul. Mickiewicza 52, 64-510 Wronki tel. 67 25 46 100, fax 67 25 40 320 Сделано в Китае Претензии по качеству направлять в / Импортер на территорию РФ ООО «Ханса», 121609,...