Страница 3 - УКАЗАНИЯ ПО ТЕХНИКЕ БЕЗОПАСНОСТИ
3 УКАЗАНИЯ ПО ТЕХНИКЕ БЕЗОПАСНОСТИ Перед установкой Проверьте и убедитесь, что машина не получила повреждений во время транс - портировки. Категорически запрещается устанавливать и использовать повреж - денную машину. В случае сомнений просим обращаться к продавцу. Перед первым запуском • См. примеч...
Страница 4 - Предметы, которые не разрешается; ОХРАНА ОКРУЖАЮЩЕЙ СРЕДЫ; РЕЦИКЛИНГ
4 УКАЗАНИЯ ПО ТЕХНИКЕ БЕЗОПАСНОСТИ машину. Не мойте в посудомоечной машине непредназначенную для этого посуду. Предметы, которые не разрешается мыть в посудомоечной машине • Пепельницы, посуда со следами воска и парафина, полирующие средства, краски и химические вещества, а также предметы из железны...
Страница 5 - УСТАНОВКА ПОСУДОМОЕЧНОЙ МАШИНЫ; Размещение прибора
5 УСТАНОВКА ПОСУДОМОЕЧНОЙ МАШИНЫ Размещение прибора • Для установки посудомоечной машины необходимо выбрать место, удобное для загрузки и выгрузки посуды. • Не разрешается устанавливать машину в помещениях, в которых температура воз - духа может снижаться ниже 0°C. • Перед монтажом на месте снимите ...
Страница 6 - Подсоединение к электрической сети
6 УСТАНОВКА ПОСУДОМОЕЧНОЙ МАШИНЫ Подсоединение к электрической сети Подключайте штепсельную вилку с заземлени - ем только к исправной заземленной розетке. Убедитесь, что напряжение питания, указанное на маркировке, соответствуют параметрам электросети. Заземление должен выполнять только квалифициров...
Страница 7 - УСТРОЙСТВО ПОСУДОМОЕЧНОЙ МАШИНЫ
7 УСТРОЙСТВО ПОСУДОМОЕЧНОЙ МАШИНЫ Ниже перечислены элементы Вашей посудомоечной машины (Рис. 1): 1. Распылительные сопла 2. Лоток для столовых приборов 3. Верхняя корзина 4. Внутренняя труба 5. Нижняя корзина 6. Дозатор для соли 7. Дозатор для моющего средства 8. Полки для чашек и бокалов 9. Распыли...
Страница 9 - ПОДГОТОВКА К РАБОТЕ
9 ПОДГОТОВКА К РАБОТЕ Значение декальцинации воды Для обеспечения правильного функ - ционирования посудомоечной машины необходима мягкая вода (с низким содержанием кальция). В противном случае на посуде и внутренних поверх - ностях посудомоечной машины будет оседать известковый налет. Это может отри...
Страница 10 - Загрузка моющего средства
10 ПОДГОТОВКА К РАБОТЕ Загрузка моющего средства Чтобы открыть дозатор для моющего сред - ства, нажмите на защелку, как это показано на рисунке. (1) Линии с отметками на внутренней поверхности дозатора помогают загрузить правильное количество моющего средства. Дозатор вмещает максимально 30 г моющег...
Страница 11 - Загрузка ополаскивателя и регулировка
11 В случае прекращения использования комбини - рованных моющих средств • Загрузите в дозаторы соль и ополаскива - тель. • Установите самый высокий уровень жестко - сти воды (6) и выполните один цикл мойки без посуды. • Выберите соответствующий уровень жест - кости воды. • Выберите соответствующую д...
Страница 12 - Расход моющих средств
12 ПОДГОТОВКА К РАБОТЕ Жесткость воды Немецкие градусы жесткости dH Французские градусы жесткости dF Английские градусы жесткости dE Уровень жесткости воды 1 0~5 0~9 0~6 H1 2 6-11 10-20 7-14 H2 3 12-17 21-30 15-21 H3 4 18-22 31-40 22-28 H4 5 23-34 41-60 29-42 H5 6 35-55 61-98 43-69 H6 Если жесткость...
Страница 13 - ЗАГРУЗКА ПОСУДЫ В ПОСУДОМОЕЧНУЮ МАШИНУ
13 ЗАГРУЗКА ПОСУДЫ В ПОСУДОМОЕЧНУЮ МАШИНУ Верхняя корзина Верхняя корзина запроектирована для мытья хрупкой посуды, такой как стаканы, чайные чашки, десертные тарелки и т.п. Посуда в верхней корзине должна иметь меньшую степень загрязнения, чем посуда в нижней корзине. Чтобы в процессе мытья вилки, ...
Страница 14 - Лоток для мелких столовых приборов
14 ЗАГРУЗКА ПОСУДЫ В ПОСУДОМОЕЧНУЮ МАШИНУ Лоток для мелких столовых приборов Столовые приборы следует укладывать в лоток для столовых приборов отдельно, в над - лежащем положении. Следите, чтобы они не сцеплялись друг с другом, поскольку это может снизить эффективность мытья. Внимание: Сто - ловые п...
Страница 15 - Моющее средство/Ополаскиватель
15 ЗАГРУЗКА ПОСУДЫ В ПОСУДОМОЕЧНУЮ МАШИНУ Стандартная загрузка и результаты тестированияВместимость: Верхняя и нижняя корзины: 10 комплектов посуды. Верхнюю корзину нужно установить в верхнее положение. Чайные чашки поставить на полки. Моющее средство/Ополаскиватель 3+22 cм 3 в соответствии с нормам...
Страница 16 - Включение посудомоечной машины; раcпылительные сопла, и закрытия дверцы:; После окончания цикла мытья
16 ВКЛЮЧЕНИЕ ПОСУДОМОЕЧНОЙ МАШИНЫ И ВЫБОР ПРО - ГРАММЫ Включение посудомоечной машины Посудомоечную машину можно включить только после загрузки ее посудой, добавления всех необходимых химических средств в дозаторы, проверки, могут ли свободно вращаться раcпылительные сопла, и закрытия дверцы: 1. наж...
Страница 17 - шина переключится в режим ожидания,; Изменение программы
17 ВКЛЮЧЕНИЕ ПОСУДОМОЕЧНОЙ МАШИНЫ И ВЫБОР ПРО - ГРАММЫ Выполняемый цикл мойки можно изменить только в самом начале, если с запуска прошло очень немного времени и пока еще машина не использовала моющее средство и не слила воду в канализацию. Если это произошло, необходимо восполнить содержимое дозато...
Страница 19 - ОЧИСТКА И КОНСЕРВАЦИЯ
19 ОЧИСТКА И КОНСЕРВАЦИЯ Регулярная очистка посудомоечной машины продлевает срок ее службы.В моющей части посудомоечной машины может скапливаться известковый осадок и жир. В этом случае необходимо: - Загрузить моющее средство в дозатор, вы - брать программу с высокой температурой мытья и запустить м...
Страница 20 - КОДЫ ОШИБОК И СПОСОБЫ УСТРАНЕНИЯ АВАРИЙ
20 КОД ОШ- ИБКИ ОПИСАНИЕ НЕПОЛАДКИ СПОСОБ УСТРАНЕНИЯ E1 Вода набирается слишком долго • Перекрыт водопроводный кран. • Засорение водопроводной трубы • Слишком низкое давление воды • Свяжитесь с сервисом. E4 Перелив • Слишком высокий уровень поступающей воды • Свяжитесь с сервисом E8 Aвария распредел...
Страница 21 - ПОЛЕЗНЫЕ СОВЕТЫ И ПРАКТИЧЕСКИЕ РЕКОМЕНДАЦИИ; Если на посуде остаются пятна ржавчины; Заявление производителя; Прибор маркируется знаком соответствия
21 Если на посуде остаются белые разводы • Недостаточное количество моющего средства. • Подается недостаточная доза ополаскивателя. • Не используется специальная соль, несмотря на высокую жесткость воды. • Неправильно отрегулирована система смягчения воды. • Неплотно закрыта крышка дозатора для соли...
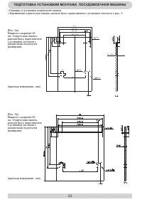
Страница 22 - ПОДГОТОВКА УСТАНОВКИИ МОНТАЖА ПОСУДОМОЕЧНОЙ МАШИНЫ; Подготовка к установке посудомоечной машины
22 ПОДГОТОВКА УСТАНОВКИИ МОНТАЖА ПОСУДОМОЕЧНОЙ МАШИНЫ При установке посудомоечная машина должна быть расположена на близком рассотянии к трубопроводу оттока / притока воды и гнезду электропитания. Следует выбрать одну из сторон отсека шкафа, чтобы облегчить подключение спускного трубопровода посудом...
Страница 26 - трёх подвижных ругулируемых ножек.
26 ПОДГОТОВКА УСТАНОВКИИ МОНТАЖА ПОСУДОМОЕЧНОЙ МАШИНЫ Для того, чтобы обеспечить правильную эксплуатацию корзин для посуды и эффективное качественное мытьё посуды, посудомоечная машина должна быть установлена по уровню. 1. Чтобы проверить ровность установки посудомоечной машины, следует разместить у...
Страница 27 - ПАСПОРТ ПРИБОРА В СООТВЕТСТВИИ С РАСПОРЯЖЕНИЕМ КОМИС
27 ПАСПОРТ ПРИБОРА В СООТВЕТСТВИИ С РАСПОРЯЖЕНИЕМ КОМИС - СИИ ЕС 1059/2010 Наименование поставщика/товарный знак Hansa Tип ZIM 428 EH Номинальная вместимость 10 Класс энергоэффективности 1 A++ Годовое потребление электроэнергии в кВТчас (AEC) ( 280 циклов ) 1 211 2 Потребление энергии при стандартно...