Hansa ZIM 434 H - инструкции и руководства
Посудомоечная машина Hansa ZIM 434 H - инструкции пользователя по применению, эксплуатации и установке на русском языке читайте онлайн в формате pdf
Инструкции:
Инструкция по эксплуатации Hansa ZIM 434 H
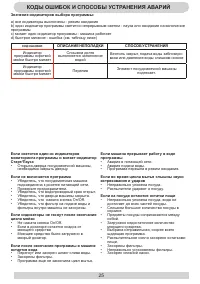
1
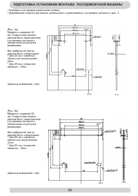
2
3
4
5
6
7
8
9
10
11
12
13
14
15
16
17
18
19
20
21
22
23
24
25
26
27
28
29
30
31
32
33
34
35
36
Hansa Посудомоечные машины Инструкции
-
Hansa ZIM 428 EH
Инструкция по эксплуатации
-
Hansa ZIM 454 H
Инструкция по эксплуатации
-
Hansa ZIM 628 EH
Инструкция по эксплуатации
-
Hansa ZIM 654 H
Инструкция по эксплуатации
-
Hansa ZWM 427 EIH (EWH)
Инструкция по эксплуатации
-
Hansa ZWM 615 PQW
Инструкция по эксплуатации
-
Hansa ZWV 615 WRH
Инструкция по эксплуатации
-
Hansa ZWV 646 ERH
Инструкция по эксплуатации
-
Hansa ZWV 626 WEH
Инструкция по эксплуатации
-
Hansa ZWV 614 WH
Инструкция по эксплуатации
-
Hansa ZWV 434 WH
Инструкция по эксплуатации
-
Hansa ZWV 426 WEH
Инструкция по эксплуатации
-
Hansa ZWV 414 WH
Инструкция по эксплуатации
-
Hansa ZIV 646 ELH
Инструкция по эксплуатации
-
Hansa ZIV 626 ELH
Инструкция по эксплуатации
-
Hansa ZIV 614 H
Инструкция по эксплуатации
-
Hansa ZIV 453 H
Инструкция по эксплуатации
-
Hansa ZIV 446 EH
Инструкция по эксплуатации
-
Hansa ZIV 435 H
Инструкция по эксплуатации
-
Hansa ZIV 433 H
Инструкция по эксплуатации