Fondital Pyros 1 G - инструкции и руководства
Котел Fondital Pyros 1 G - инструкции пользователя по применению, эксплуатации и установке на русском языке читайте онлайн в формате pdf
Инструкции:
Инструкция по эксплуатации Fondital Pyros 1 G
1
2
3
4
5
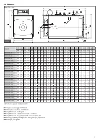
6
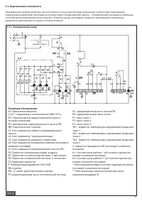
7
8
9
10
11
12
13
14
15
16
17
18
19
20
21
22
23
24
25
26
27
28
29
30
31
32
Fondital Котлы Инструкции
-
Fondital MINORCA CTFS 24
Инструкция по эксплуатации
-
Fondital Victoria Compact CTFS 24 AF
Инструкция по эксплуатации
-
Fondital Victoria Compact CTN 24 AF
Инструкция по эксплуатации
-
Fondital Tahiti Dual CTFS 24
Инструкция по эксплуатации
-
Fondital Bali RTN E 36
Инструкция по эксплуатации
-
Fondital RODI Dual 70
Инструкция по эксплуатации
-
Fondital RODI Dual 80
Инструкция по эксплуатации
-
Fondital RODI Dual 90
Инструкция по эксплуатации
-
Fondital RODI Dual 100
Инструкция по эксплуатации
-
Fondital RODI Dual 120
Инструкция по эксплуатации
-
Fondital RODI Dual 150
Инструкция по эксплуатации
-
Fondital RODI Dual 200
Инструкция по эксплуатации
-
Fondital RODI Dual 250
Инструкция по эксплуатации
-
Fondital RODI Dual 300
Инструкция по эксплуатации
-
Fondital RODI Dual 350
Инструкция по эксплуатации
-
Fondital RODI Dual 400
Инструкция по эксплуатации
-
Fondital RODI Dual 500
Инструкция по эксплуатации
-
Fondital RODI Dual 620
Инструкция по эксплуатации
-
Fondital RODI Dual 750
Инструкция по эксплуатации
-
Fondital RODI Dual 850
Инструкция по эксплуатации