Страница 3 - Запрещается закрывать воздухозаборные решетки.
3 Общие указания для монтажной организации, техперсонала и пользователя Настоящее РУКОВОДСТВО, являющееся неотъемлемой частью изделия, должно быть передано монтажной организацией пользователю, который обязан бережно хранить его и, при необходимости, пользоваться как справочником.При продаже или при ...
Страница 4 - ОПАСНОСТЬ
4 ОПАСНОСТЬ Если при использовании котлов, работающих на газе, в воздухе чувствуется запах газа, необходимо действовать следующим образом: • Не пользоваться электрическими выключателями и не включать электрические приборы.• Не зажигать огонь и не курить.• Закрыть главный газовый кран.• Открыть двери...
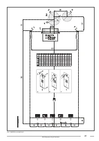
Страница 8 - Инструкци для пользователя; Панель управления; B C; Рис. 1 Панель управления
8 Инструкци для пользователя 1. Инструкци для пользователя 1.1 Панель управления 1 3 6 7 A D B C F 8 5 2 4 E Рис. 1 Панель управления A. Регулировка температуры горячей воды (+/- ГВС).B. Выбор режима работы котла и подтверждение нового значения.C. Разблокировка и возврат на стартовую страницу в режи...
Страница 9 - Описание
9 Инструкци для пользователя Поз. Описание Горит Мигает 1 Индикатор параметров Отображение параметра в меню параметров. Не используется. 2 Индикатор контура ГВС Котел работает в режиме приготовления ГВС. Отображение установленной температуры в контуре ГВС. 3 Буквенно-цифровой индикатор Отображение т...
Страница 10 - Oтображение состояния котла на дисплее; Котел в дежурном режиме OFF; Котел в дежурном режимe; Неполадки в работе; Для определения неполадок, обратитесь к параграфу
10 Инструкци для пользователя 1.2 Oтображение состояния котла на дисплее 1.2.1 Котел в дежурном режиме OFF Котел в дежурном режимe Котел в режиме ЛЕТОНи одна из функций котла не включенаОтображается температура подачи Котел в режиме ЗИМАНи одна из функций котла не включенаОтображается температура по...
Страница 14 - Блокировка котла; Таблица технических неисправностей
14 Инструкци для пользователя 1.4 Блокировка котла В случае возникновения нарушений в работе, котел автоматически блокируется.Для определения возможных причин блокировок (смотри Таблица технических неисправностей на странице 50 ). В соответствии с типом неисправности необходимо дeйcтвoвaть cоглaснo ...
Страница 15 - Техническое обслуживание
15 Инструкци для пользователя 1.4.5 Cбoи в работе температурных датчиков В случае неисправности температурных датчиков котла, на его дисплее появится соответствующий код неисправности: • E05 для датчика контура отопления; в этом случае котел не работает; • E06 неисправен датчик контура ГВС; в этом с...
Страница 16 - Технические характеристики и габаритные размеры; Технические характеристики; • CTFS; помощью проточного теплообменника.; Конструкционные характеристики
16 Технические характеристики и габаритные размеры 2. Технические характеристики и габаритные размеры 2.1 Технические характеристики Котел оборудован встроенной газовой атмосферной горелкой и выпускается в следующих версиях: • CTFS котел с закрытой камерой и принудительной тягой, с электронным poзжи...
Страница 17 - Характеристики работы
17 Технические характеристики и габаритные размеры 2.1.3 Характеристики работы • Электронная модуляция пламени в режиме отопления с задержкой выхода на полную мощность.• Электронная модуляция пламени в режиме ГВС.• Функция антизамерзания контура отопления: ON при 5°C; OFF при 30°C, или после 15 мин....
Страница 18 - Габаритные размеры; Рис. 3 Габаритные размеры
18 Технические характеристики и габаритные размеры 2.2 Габаритные размеры 400 250 700 200 107,5 134 60 66 60 62 67 82 63 114 31 91 81 M C G F R Рис. 3 Габаритные размеры M Подающая линия системы отопления (3/4'') C Выход горячей воды (1/2") G Вход газа (1/2'') F Подача холодной воды (1/2'') R Во...
Страница 19 - Гидравлические схемы; C G; Рис. 4 Гидравлические схемы
19 Технические характеристики и габаритные размеры 2.3 Гидравлические схемы M C G 8 7 65 4 32 1 9 10 11 12 19 14 15 F R 13 18 21 16 20 24 22 25 26 23 17 Рис. 4 Гидравлические схемы M Подающая линия системы отопления C Выход ГВС G Вход газа F Подача холодной воды R Возврат из системы отопления 1. Авт...
Страница 20 - Рабочие характеристики
20 Технические характеристики и габаритные размеры 2.4 Рабочие характеристики Давление на горелке, указанное в приведенной ниже таблице, должно замеряться после 3-х минут работы котла.Категоря газа: II2H3+ Топливо Входное давление газа [мбар] Форсунка [мм] Минимальное давление на горелке [мбар] Макс...
Страница 21 - Общие технические характеристики; Табл. 7 Oбщие характеристики
21 Технические характеристики и габаритные размеры 2.5 Общие технические характеристики Описание Величина измерения CTFS 9 CTFS 11 CTFS 13 CTFS 15 CTFS 18 CTFS 24 Количество форсунок горелки № 11 11 11 11 11 11 Номинальная тепловая мощность кВт 10,4 12,3 14,2 16,4 20,0 25,5 Минимальная тепловая мощн...
Страница 23 - Табл. 13 Характеристики процесса горения CTFS 24
23 Технические характеристики и габаритные размеры Описание Величина измерения Макс. Тепловая нагрузка Мин. Тепловая нагрузка 30%-ая нагрузка Потери тепла через корпус % 1,96 1,70 - Потери тепла через корпус при работающей горелке % 6,84 12,40 - Массовый расход дымовых газов г/сек 15,4 15,6 - Разниц...
Страница 24 - Инструкции по установке; Нормы по установке; Выбор места установки котла; При выборе места установки котла следует:; Размещение котла
24 Инструкции по установке 3. Инструкции по установке 3.1 Нормы по установке Этот котел должен быть установлен согласно нормативам действующим в стране установки, и инструкциям приведенным в настоящем руководстве.Для определения категории газа, для консультирования технических данных, смотри рабочие...
Страница 26 - Подключение к гидравлической сети; Вентиляция помещений; Система воздухозабора и дымоотвода
26 Инструкции по установке 3.4 Монтаж котла ОПАСНОСТЬ Перед подсоединением котла к отопительной системе и к контуру ГВС следует тщательно прочистить систему.Перед запуском в работу НОВОЙ системы, необходимо провести очистку труб, чтобы удалить возможные металлические остатки монтажа и сварки, остатк...
Страница 28 - Возможные схемы для систем воздухозабора и дымоотвода
28 Инструкции по установке 3.6.1 Возможные схемы для систем воздухозабора и дымоотвода Тип B22 • Конструкция котла обязывает подсоединение его к дымоотводу для удаления отработанных газов наружу помещения его установки. • Забор воздуха происходит в помещении установки котла, при этом отработанные га...
Страница 30 - Воздухозабор / дымоотвод через коаксиальные трубы диам. 100/60 мм
30 Инструкции по установке 3.6.2 Воздухозабор / дымоотвод через коаксиальные трубы диам. 100/60 мм ПРЕДУПРЕЖДЕНИЕ Эти данные действительны для каналов воздухозабора и дымоотвода состоящих из жестких труб с гладкой поверхностью, поставляемых производителем. Тип C12 CTFS 9 - 11 - 13 - 15 - 18 • Минима...
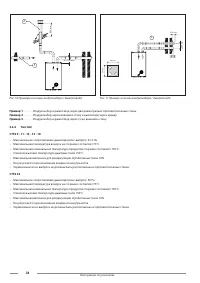
Страница 33 - ПРЕДУПРЕЖДЕНИЕ; Дымоотвод; Рис. 9 Размеры для подсоединения раздельных труб
33 Инструкции по установке CTFS 24 Забор воздуха • Минимально допустимая длина воздухозаборных труб – 0,5 м.• Каждый добавочный изгиб на 90° с широким радиусом (R=D) при воздухозаборе равен 1,5 м эквивалентной линейной длины.• Каждый отвод нa 90° малого радиуса (R<D) на заборе воздуха эквиваленте...
Страница 35 - Проверка КПД горения; Измерения; Рис. 12 Примеры мест для контроля дымовых газов
35 Инструкции по установке 3.7 Проверка КПД горения 3.7.1 Режим тестирования ("трубочист") • В котле предусмотрена функция "трубочист", которая используется для измерения КПД горения в процессе работы и для регулировки горелки. • Для активации режима трубочист необходимо одновременно...
Страница 36 - Подключение к газовой сети; Рис. 13 Подключение к газовой сети; Подключение к гидравлической сети
36 Инструкции по установке 3.8 Подключение к газовой сети ОПАСНОСТЬ Перед подключением котла к газопроводу убедитесь, что тип газа в нем и обозначеный на шильде котла совпадают.В противном случае запрещается подключение котла к газовой сети. Сечение применяемой трубы зависит от ее длины, типа газово...
Страница 38 - Установка датчиков комнатной температуры; терморегулирования
38 Инструкции по установке 3.11 Подключение к комнатному термостату (oпция) Котел может быть подсоединен одному комнатному термостату (опция).Конаткты комнатного термостата работают под нагрузкой 4 мА при 20 В постоянного тока.Комнатный термостат должен подключаться к контактам (3) и (4) пульта упра...
Страница 39 - Работа с датчиком температуры наружного воздуха
39 Инструкции по установке ПРЕДУПРЕЖДЕНИЕ Провода датчика наружной температуры НЕ должны соприкасаться с проводами электропитания. Датчик должен устанавливаться на стену с СЕВЕРНОЙ или СЕВЕРО-ВОСТОЧНОЙ стороны, в месте, защищенном от воздействия атмосферных явлений.Не устанавливать датчик наружной т...
Страница 42 - Заполнение системы; стравливание воздуха.
42 Инструкции по установке 3.15 Заполнение системы После завершения монтажа отопительной системы можно приступать к ее заполнению.Эту операцию следует выполнять с особой осторожностью по следующей схеме: • Открыть воздушные клапаны батарей и проверить работу автоматического воздушного клапана котла....
Страница 43 - Включение котла; либо утечки продуктов сгорания через уплотнения; Располагаемый напор; Рис. 15 Располагаемый напор
43 Инструкции по установке 3.16 Включение котла 3.16.1 Предпусковой контрольПеред пуском котла следует убедиться в том, что: • дымоход и выступающая часть трубы установлены согласно инструкциям: при включенном котле должно быть исключены какие либо утечки продуктов сгорания через уплотнения; • котел...
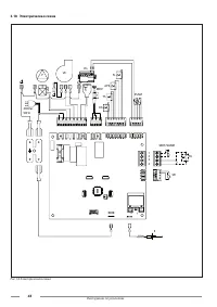
Страница 44 - Электрическая схема; Рис. 16 Электрическая схема
44 Инструкции по установке 3.18 Электрическая схема 1 2 3 4 1 2 3 4 P P P 230Vac50Hz P VG SM SS SR SEXT/SAMB TA FL APS TS DK MDV 1 2 3 4 FUSE E VE Рис. 16 Электрическая схема
Страница 46 - Переналадка котла на другой тип газа и регулировка горелки
46 Инструкции по установке 3.19 Переналадка котла на другой тип газа и регулировка горелки ПРЕДУПРЕЖДЕНИЕ Данный котел произведен для работы с типом газа, который указан на маркировке упаковки и на заводской табличке с техническими данными размещенными в котле. Возможные переналадки котла на другой ...
Страница 48 - Испытание котла; Предварительный контроль; Перед проведением испытаний котла следует убедиться в том, что:; Включение и выключение
48 Испытание котла 4. Испытание котла 4.1 Предварительный контроль Перед проведением испытаний котла следует убедиться в том, что: • дымоход и выступающая часть трубы установлены согласно инструкциям: при включенном котле должно быть исключены какие либо утечки продуктов сгорания через уплотнения; •...
Страница 49 - Техническое обслуживание; График технического обслуживания; При выполнении первого технического обслуживания проверить:; Анализ параметров процесса горения
49 Техническое обслуживание 5. Техническое обслуживание ПРЕДУПРЕЖДЕНИЕ Все операции по техническому обслуживанию и ремонту котла должны проводиться квалифицированным персоналом. Для осуществления технического обслуживания и ремонта, производитель советует обращаться в Авторизованный Сервисный Центр ...
Страница 50 - Неисправности, их причины и устранение; Таблица технических неисправностей
50 Неисправности, их причины и устранение 6. Неисправности, их причины и устранение 6.1 Таблица технических неисправностей СОСТОЯНИЕ КОТЛА НЕИСПРАВНОСТИ ВОЗМОЖНАЯ ПРИЧИНА ДЕЙСТВИЯ ПОЛЬЗОВАТЕЛЯ ДЕЙСТВИЯ СЕРВИСНОГО ЦЕНТРА E01* Не включается горелка. Отсутствует газ Проверить наличие газа Проверить сос...