Страница 2 - Flames; Разработчик и производитель:
- 2 - Дорогой наш покупатель! Поздравляем Вас с приобретением котла Flames серии КОД . Эффективное сжигание дровяного топлива, надежность и долговечность (15 лет и более) – основные задачи, которые были успешно решены при разработке котла Flames. В основу работы котла заложен принцип длительного гор...
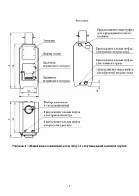
Страница 4 - Н А З Н А Ч Е Н И Е; В В Е Д Е Н И Е; открытого типа; О П И С А Н И Е К О Н С Т Р У К Ц И И
- 4 - 1 Н А З Н А Ч Е Н И Е Котлы Flames изготовлены в строгом соответствии с ГОСТ 20548 - 87 «Котлы отопительные водогрейные теплопроизводительностью до 100 кВт. Общие технические условия» и предназначены для теплоснабжения жилых домов и зданий коммунально - бытового назначения, оборудованных систе...
Страница 8 - Т Е Х Н И Ч Е С К И Е Х А Р А К Т Е Р И С Т И К И; КОТЛЫ С ВЕРТИКАЛЬНОЙ ДЫМОВОЙ ТРУБОЙ; Тепловая
- 8 - 4 Т Е Х Н И Ч Е С К И Е Х А Р А К Т Е Р И С Т И К И 4.1 КОТЛЫ С ВЕРТИКАЛЬНОЙ ДЫМОВОЙ ТРУБОЙ Таблица 1 – Технические характеристики котлов с вертикальной дымовой трубой Тех. параметры Ед. изм. Код -18 Код -20 Код -25 Код -30 Код -35 Код -40 Тепловая производительность кВт 4-20 6-25 8- 30 9-35 1...
Страница 12 - КОТЛЫ С ГОРИЗОНТАЛЬНОЙ ДЫМОВОЙ ТРУБОЙ; Таблица; Высота от
- 12 - 4.2 КОТЛЫ С ГОРИЗОНТАЛЬНОЙ ДЫМОВОЙ ТРУБОЙ Таблица 2 – Технические характеристики котлов с горизонтальной дымовой трубой Тех. параметры Ед. изм. Код -18 ГТ Код -20 ГТ Код -25 ГТ Код -30 ГТ Код -35 ГТ Код -40 ГТ Тепловая производительность ( мин – ном) кВт/ час 4-20 6-25 8- 30 9-35 10-40 12-45 ...
Страница 16 - КОМПЛЕКТАЦИЯ; У С Т А Н О В К А; ТРЕБОВАНИЕ К КОТЕЛЬНОЙ
- 16 - 4.3 КОМПЛЕКТАЦИЯ Наименование Количество Котел отопительный 1 Паспорт и инструкция по эксплуатации 1 Клапан предохранительный 1 Присоединительный патрубок дымохода (регулируемый шибер ) 1 Термоманометр 1 Тара, деревянная обрешетка 1 5 У С Т А Н О В К А К О Т Л А 5.1 ТРЕБОВАНИЕ К КОТЕЛЬНОЙ 5.1...
Страница 17 - УСТАНОВКА КОТЛА В КОТЕЛЬ НОЙ; Рисунок
- 17 - 5.2 УСТАНОВКА КОТЛА В КОТЕЛЬ НОЙ 5.2.1 Допускается установка котла только на несгораемый пол . 5.2.2 Котел , заполненный теплоносителем, имеет значительный вес, поэтому при его установке необходимо учитывать прочность основания . 5.2.3 Рекомендуем устанавливать котел на бетонном подиуме разме...
Страница 18 - ПОДКЛЮЧЕНИЕ КОТЛА К ДЫМОВОЙ ТРУБЕ; AISI
- 18 - 5.3 ПОДКЛЮЧЕНИЕ КОТЛА К ДЫМОВОЙ ТРУБЕ Котел работает при тяге , создаваемой дымовой трубой . От правильного расчета и монтажа дымохода зависит производительность, экономичность, долговечность котла и Ваша безопасность . Данную работу может выполнить только квалифицированный специалист . Поруч...
Страница 19 - Варианты расположения трубы на скате крыши показаны на рисунке
- 19 - 5.3.11 Варианты расположения трубы на скате крыши показаны на рисунке 11. Рисунок 9 и 10 – Подключение котла к дымовой трубе, соответственно вариант 1 и 2 Рисунок 11 – Варианты расположения трубы на скате
Страница 20 - ПОДКЛЮЧЕНИЕ К СИСТЕМЕ ОТОПЛЕНИЯ; pH
- 20 - Рисунок 12 – Вариант подключения котла с горизонтальной дымовой трубой 5.4 ПОДКЛЮЧЕНИЕ К СИСТЕМЕ ОТОПЛЕНИЯ 5.4.1 Проект теплоснабжения дома, монтаж системы отопления и первый пуск котла должны выполнить квалифицированные специалисты - теплотехники . 5.4.2 Требования к теплоносителю (вода ): В...
Страница 21 - СХЕМЫ ПОДКЛЮЧЕНИЯ КОТЛА К СИСТЕМЕ ОТОПЛЕНИЯ
- 21 - 5.4.5 Запрещается в качестве теплоносителя использовать жидкости , не предназначенные для систем отопления. 5.5 СХЕМЫ ПОДКЛЮЧЕНИЯ КОТЛА К СИСТЕМЕ ОТОПЛЕНИЯ 5.5.1 Трубы для подключения котла должны устанавливаться без напряжений . 5.5.2 Все краны системы отопления при эксплуатации котла должны...
Страница 23 - П Р И М Е Н Е Н И Е А Н Т И Ф Р И З О В В С И С Т Е М Е О Т О П Л Е Н И Я
- 23 - 5.5.7 После подключения котла к дымовой трубе и системе отопления проверить состояние приборов контроля, безопасности и управления и установить их на котел. 5.5.8 Заполнить систему отопления подготовленной водой, обеспечивая выпуск воздуха, и произвести опрессовку давлением не более 1,5 бар ....
Страница 25 - Т О П К А К О Т Л А; ПОДГОТОВКА КОТЛА; Регулирование в ручном режиме
- 25 - 6.1.8 Для расчета и монтажа системы отопления на антифриз в качестве теплоносителя обязательно обратитесь к специалисту - теплотехнику. 7 Т О П К А К О Т Л А 7.1 ПОДГОТОВКА КОТЛА К ЭКСПЛУАТАЦИИ И ТРЕБОВАНИЯ К ТОПЛИВУ 7.1.1 Перед запуском котла убедитесь , что система отопления заполнена полно...
Страница 26 - З А П У С К К О Т Л А И О С Н О В Н Ы Е Р Е Ж И М Ы Г О Р Е Н И Я; РЕЖИМ ВНЕШНЕГО ГОРЕНИЯ (ЭКОНОМИЧНЫЙ , ДЛИТЕЛЬНЫЙ; Укладку
- 26 - хода регулятора , и холодный воздух будет остужать котел . Поэтому котел не должен работать без присмотра длительное время. В дальнейшем длина цепочки может быть откорректирована. 8 З А П У С К К О Т Л А И О С Н О В Н Ы Е Р Е Ж И М Ы Г О Р Е Н И Я Перед тем как разжечь котел убедитесь в налич...
Страница 29 - Г А Р А Н Т И Й Н Ы Е О Б Я З А Т Е Л Ь С Т В А
- 29 - При эксплуатации котла использовать только указанное в настоящей инструкции топливо . Не допускается на котле или вблизи котла сушить дрова, одежду и т.п. Запрещается хранить в помещении котельной легковоспламеняющиеся и взрывоопасные вещества . Перед розжигом проверить наличие тяги и произве...
Страница 30 - Условия прекра щения действия гарантийны х обязательств
- 30 - 11.1.2 При выполнении монтажных и пусконаладочных работ требуйте заполнения в паспорте даты выполнения и реквизитов организации , выполнившей данную работу. 11.1.3 Гарантийные обязательства распространяются на дефекты изделия , возникшие по вине завода - производителя. 11.1.4 Устранение неисп...
Страница 32 - СВИДЕТЕЛЬСТВО О ПРИЕМКЕ; ГАРАНТИЙНЫЙ ТАЛОН
- 32 - СВИДЕТЕЛЬСТВО О ПРИЕМКЕ Котел Flames КОД ________ заводской номер № __________ Изготовлен в соответствии с ТУ 4931 -012-133116875-2013 Испытан испытательным давлением 3 бар Мастер ____________________ Представитель ОТК __________ М.П. ____________ (дата выпуска) ГАРАНТИЙНЫЙ ТАЛОН Наименование...
Страница 35 - Реквизиты организации, выполнившей гарантийный ремонт
- 35 - Талон выполнения гарантийного ремонта № _____________ ЗАПОЛНЯЕТСЯ СЕРВИСНЫМ ЦЕНТРОМ Наименование котла: __ ________________________________________________ Заводской номер: _____________________________________________________ Дата пуска в эксплуатацию: _____ _________________________________...