FLAMES КОД-40 - Инструкция по эксплуатации

FLAMES КОД-40

Котел FLAMES КОД-40 - инструкция пользователя по применению, эксплуатации и установке на русском языке. Мы надеемся, она поможет вам решить возникшие у вас вопросы при эксплуатации техники.

Если остались дополнительные вопросы — свяжитесь с нами через контактную форму.

1 Страница 1
2 Страница 2
3 Страница 3
4 Страница 4
5 Страница 5
6 Страница 6
7 Страница 7
8 Страница 8
9 Страница 9
10 Страница 10
11 Страница 11
12 Страница 12
13 Страница 13
14 Страница 14
15 Страница 15
16 Страница 16
17 Страница 17
18 Страница 18
19 Страница 19
20 Страница 20
21 Страница 21
22 Страница 22
23 Страница 23
24 Страница 24
25 Страница 25
26 Страница 26
27 Страница 27
28 Страница 28
29 Страница 29
30 Страница 30
31 Страница 31
32 Страница 32
33 Страница 33
34 Страница 34
35 Страница 35
36 Страница 36
Страница: / 36

Содержание:

  • Страница 2 – Flames; Разработчик и производитель:
  • Страница 4 – Н А З Н А Ч Е Н И Е; В В Е Д Е Н И Е; открытого типа; О П И С А Н И Е К О Н С Т Р У К Ц И И
  • Страница 8 – Т Е Х Н И Ч Е С К И Е Х А Р А К Т Е Р И С Т И К И; КОТЛЫ С ВЕРТИКАЛЬНОЙ ДЫМОВОЙ ТРУБОЙ; Тепловая
  • Страница 12 – КОТЛЫ С ГОРИЗОНТАЛЬНОЙ ДЫМОВОЙ ТРУБОЙ; Таблица; Высота от
  • Страница 16 – КОМПЛЕКТАЦИЯ; У С Т А Н О В К А; ТРЕБОВАНИЕ К КОТЕЛЬНОЙ
  • Страница 17 – УСТАНОВКА КОТЛА В КОТЕЛЬ НОЙ; Рисунок
  • Страница 18 – ПОДКЛЮЧЕНИЕ КОТЛА К ДЫМОВОЙ ТРУБЕ; AISI
  • Страница 19 – Варианты расположения трубы на скате крыши показаны на рисунке
  • Страница 20 – ПОДКЛЮЧЕНИЕ К СИСТЕМЕ ОТОПЛЕНИЯ; pH
  • Страница 21 – СХЕМЫ ПОДКЛЮЧЕНИЯ КОТЛА К СИСТЕМЕ ОТОПЛЕНИЯ
  • Страница 23 – П Р И М Е Н Е Н И Е А Н Т И Ф Р И З О В В С И С Т Е М Е О Т О П Л Е Н И Я
  • Страница 25 – Т О П К А К О Т Л А; ПОДГОТОВКА КОТЛА; Регулирование в ручном режиме
  • Страница 26 – З А П У С К К О Т Л А И О С Н О В Н Ы Е Р Е Ж И М Ы Г О Р Е Н И Я; РЕЖИМ ВНЕШНЕГО ГОРЕНИЯ (ЭКОНОМИЧНЫЙ , ДЛИТЕЛЬНЫЙ; Укладку
  • Страница 29 – Г А Р А Н Т И Й Н Ы Е О Б Я З А Т Е Л Ь С Т В А
  • Страница 30 – Условия прекра щения действия гарантийны х обязательств
  • Страница 32 – СВИДЕТЕЛЬСТВО О ПРИЕМКЕ; ГАРАНТИЙНЫЙ ТАЛОН
  • Страница 35 – Реквизиты организации, выполнившей гарантийный ремонт
Загрузка инструкции

2013 г.

Соответствует требованиям:

ГОСТ 20

548-87

ТУ 4931

-012-133116875-

2013

ТР ТС 010/

2011

«О безопасности машин и
оборудования»

Регистрационный

номер

декларации о
соответствии ЕАЭС №

RU

Д

-RU.A

Ж50.

B.03909/20

Котел

Flames

отопительный

дровяной длительного

горения

КОД

-

18, КОД

-

18ГТ

КОД

-20

, КОД

-20

ГТ

КОД

-

25, КОД

-25

ГТ

КОД

-

30, КОД

-30

ГТ

КОД

-

35, КОД

-35

ГТ

КОД

-

40, КОД

-40

ГТ


ООО «ЧЗ «Механика»

2021

г.

Паспорт и инструкция по эксплуатации

"Загрузка инструкции" означает, что нужно подождать пока файл загрузится и можно будет его читать онлайн. Некоторые инструкции очень большие и время их появления зависит от вашей скорости интернета.

Краткое содержание

Страница 2 - Flames; Разработчик и производитель:

- 2 - Дорогой наш покупатель! Поздравляем Вас с приобретением котла Flames серии КОД . Эффективное сжигание дровяного топлива, надежность и долговечность (15 лет и более) – основные задачи, которые были успешно решены при разработке котла Flames. В основу работы котла заложен принцип длительного гор...

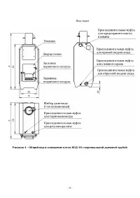
Страница 4 - Н А З Н А Ч Е Н И Е; В В Е Д Е Н И Е; открытого типа; О П И С А Н И Е К О Н С Т Р У К Ц И И

- 4 - 1 Н А З Н А Ч Е Н И Е Котлы Flames изготовлены в строгом соответствии с ГОСТ 20548 - 87 «Котлы отопительные водогрейные теплопроизводительностью до 100 кВт. Общие технические условия» и предназначены для теплоснабжения жилых домов и зданий коммунально - бытового назначения, оборудованных систе...

Страница 8 - Т Е Х Н И Ч Е С К И Е Х А Р А К Т Е Р И С Т И К И; КОТЛЫ С ВЕРТИКАЛЬНОЙ ДЫМОВОЙ ТРУБОЙ; Тепловая

- 8 - 4 Т Е Х Н И Ч Е С К И Е Х А Р А К Т Е Р И С Т И К И 4.1 КОТЛЫ С ВЕРТИКАЛЬНОЙ ДЫМОВОЙ ТРУБОЙ Таблица 1 – Технические характеристики котлов с вертикальной дымовой трубой Тех. параметры Ед. изм. Код -18 Код -20 Код -25 Код -30 Код -35 Код -40 Тепловая производительность кВт 4-20 6-25 8- 30 9-35 1...

Характеристики

Другие модели - Котлы FLAMES

Все котлы FLAMES