FLAMES КОД-35ГТ - инструкции и руководства

model-name

Котел FLAMES КОД-35ГТ - инструкции пользователя по применению, эксплуатации и установке на русском языке читайте онлайн в формате pdf

1 Page 1
2 Page 2
3 Page 3
4 Page 4
5 Page 5
6 Page 6
7 Page 7
8 Page 8
9 Page 9
10 Page 10
11 Page 11
12 Page 12
13 Page 13
14 Page 14
15 Page 15
16 Page 16
17 Page 17
18 Page 18
19 Page 19
20 Page 20
21 Page 21
22 Page 22
23 Page 23
24 Page 24
25 Page 25
26 Page 26
27 Page 27
28 Page 28
29 Page 29
30 Page 30
31 Page 31
32 Page 32
33 Page 33
34 Page 34
35 Page 35
36 Page 36

Краткое содержание

Страница 2 - Flames; Разработчик и производитель:

- 2 - Дорогой наш покупатель! Поздравляем Вас с приобретением котла Flames серии КОД . Эффективное сжигание дровяного топлива, надежность и долговечность (15 лет и более) – основные задачи, которые были успешно решены при разработке котла Flames. В основу работы котла заложен принцип длительного гор...

Страница 4 - Н А З Н А Ч Е Н И Е; В В Е Д Е Н И Е; открытого типа; О П И С А Н И Е К О Н С Т Р У К Ц И И

- 4 - 1 Н А З Н А Ч Е Н И Е Котлы Flames изготовлены в строгом соответствии с ГОСТ 20548 - 87 «Котлы отопительные водогрейные теплопроизводительностью до 100 кВт. Общие технические условия» и предназначены для теплоснабжения жилых домов и зданий коммунально - бытового назначения, оборудованных систе...

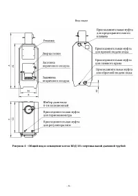
Страница 8 - Т Е Х Н И Ч Е С К И Е Х А Р А К Т Е Р И С Т И К И; КОТЛЫ С ВЕРТИКАЛЬНОЙ ДЫМОВОЙ ТРУБОЙ; Тепловая

- 8 - 4 Т Е Х Н И Ч Е С К И Е Х А Р А К Т Е Р И С Т И К И 4.1 КОТЛЫ С ВЕРТИКАЛЬНОЙ ДЫМОВОЙ ТРУБОЙ Таблица 1 – Технические характеристики котлов с вертикальной дымовой трубой Тех. параметры Ед. изм. Код -18 Код -20 Код -25 Код -30 Код -35 Код -40 Тепловая производительность кВт 4-20 6-25 8- 30 9-35 1...

FLAMES Котлы Инструкции