Эван NOVATOR-15 - инструкции и руководства

model-name

Котел Эван NOVATOR-15 - инструкции пользователя по применению, эксплуатации и установке на русском языке читайте онлайн в формате pdf

1 Page 1
2 Page 2
3 Page 3
4 Page 4
5 Page 5
6 Page 6
7 Page 7
8 Page 8
9 Page 9
10 Page 10
11 Page 11
12 Page 12
13 Page 13
14 Page 14

Краткое содержание

Страница 2 - Дата

Таблица 1. Повышение класса энергетической эффективности отапливаемого объекта ведет к резкому снижению энергопотребления, затрат на отопление и снижению загрязнения окружающей среды, в частности при изменении класса энергоэффективности с D до А потребление энергии снижается в 2-3 раза. 2.3 По степе...

Страница 8 - Подготовка к работе; Монтаж и подключение

а) немедленно отключить прибор от электрической сети автоматическим выключателем; б) если при этом существует возможность замерзания теплоносителя в системе отопления, то его необходимо слить; в) вызвать специалиста из сервисного центра или организации, зарегистриро- ванной в соответствующих органах...

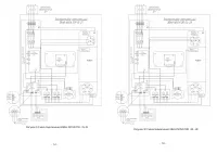
Страница 10 - Заполнение отопительной системы.; ней незаполненных пустот.; Подключение датчика температуры воздуха; Совместное; Схема обслуживания насоса.

6.1.9 В системе должен быть установлен предохранительный клапан (7) рис. 5, рассчитанный на давление 0,3 МПа. Устанавливать запорно-регулирующую арматуру между теплообменной емкостью и предохранительным клапаном запрещается! 6.1.10 В верхних точках поднимающихся от выходного патрубка прибора участко...

Эван Котлы Инструкции