Борино ИШМА-80 Elletro Sit - инструкции и руководства

model-name

Котел Борино ИШМА-80 Elletro Sit - инструкции пользователя по применению, эксплуатации и установке на русском языке читайте онлайн в формате pdf

1 Page 1
2 Page 2
3 Page 3
4 Page 4
5 Page 5
6 Page 6
7 Page 7
8 Page 8
9 Page 9
10 Page 10
11 Page 11
12 Page 12
13 Page 13
14 Page 14
15 Page 15
16 Page 16
17 Page 17
18 Page 18
19 Page 19
20 Page 20
21 Page 21
22 Page 22
23 Page 23
24 Page 24
25 Page 25
26 Page 26
27 Page 27
28 Page 28
29 Page 29

Краткое содержание

Страница 2 - – ES; ПАСПОРТ; Липецк

Открытое акционерное общество « Боринское » Котел отопительный водогрейный стальной модели ИШМА – ES ПАСПОРТ И РУКОВОДСТВО ПО ЭКСПЛУАТАЦИИ ИС – 225. 00. 00 ТУ 4931 – 001 – 00872266 – 97 АЕ 58 Товар сертифицирован г . Липецк – 2008 г .

Страница 3 - СОДЕРЖАНИЕ

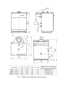
СОДЕРЖАНИЕ : 1. Общие указания 2. Технические характеристики 3. Комплектность 4. Описание конструкции и принцип действия 5. Монтаж 6. Порядок работы 7. Требования по технике безопасности 8. Техническое обслуживание 9. Возможные неисправности и методы их устранения 10. Свидетельство о приёмке котла 1...

Страница 4 - – ES; ВНИМАНИЕ

1. ОБЩИЕ УКАЗАНИЯ 1.1. Котёл отопительный водогрейный модели ИШМА – ES со стальным тепло - обменником / в дальнейшем котёл / предназначен для водяного отопления жилых , служебных и производственных помещений с принудительной циркуляцией теп - лоносителя . В комплекте с теплообменником типа « вода – ...

Борино Котлы Инструкции