Beretta NOVELLA 71 RAI - инструкции и руководства

Котел Beretta NOVELLA 71 RAI - инструкции пользователя по применению, эксплуатации и установке на русском языке читайте онлайн в формате pdf

1 Page 1
2 Page 2
3 Page 3
4 Page 4
5 Page 5
6 Page 6
7 Page 7
8 Page 8
9 Page 9
10 Page 10
11 Page 11
12 Page 12
13 Page 13
14 Page 14
15 Page 15
16 Page 16

Краткое содержание

Страница 4 - ТЕХНИЧЕСКИЕ

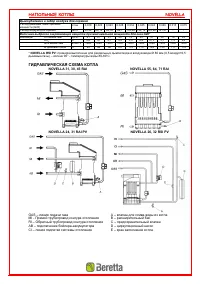
Н Н А А П П О О Л Л Ь Ь Н Н Ы Ы Е Е К К О О Т Т Л Л Ы Ы N N O O V V E E L L L L A A 1 Панель управления 2 Гильзы для датчиков котла 3 Корпус котла 4 Блок розжига и контроля пламени 5 Циркуляционный насос 6 Клапан для слива воды из котла 7 Электрод розжига 8 Электрод контроля пламени 9 Горелка 10 Газ...

Страница 5 - NOVELLA RSI PV; ГИДРАВЛИЧЕСКАЯ; GAS –

Н Н А А П П О О Л Л Ь Ь Н Н Ы Ы Е Е К К О О Т Т Л Л Ы Ы N N O O V V E E L L L L A A Дымоудаление и забор воздуха для горения Расход дымовых газов при макс . мощности (G20) кг / сек 0,018 0,023 0,023 0,028 0,034 0,045 0,044 0,046 0,015 0,015 Расход воздуха для горения нм 3 / ч 55,32 69,18 69,18 69,1 ...

Страница 6 - NOVELLA RAI – RSI PV; Напо

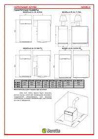
Н Н А А П П О О Л Л Ь Ь Н Н Ы Ы Е Е К К О О Т Т Л Л Ы Ы N N O O V V E E L L L L A A ГИДРАВЛИЧЕСКИЕ ХАРАКТЕРИСТИКИ Для гидравлического расчета контура отопления рекомендуется использовать приведенные ниже гидравлические характеристики котлов NOVELLA. Потери напора ( м . в . ст .) Производительность (...

Beretta Котлы Инструкции