Beretta NOVELLA 64 RAI - Инструкция по эксплуатации

Beretta NOVELLA 64 RAI

Котел Beretta NOVELLA 64 RAI - инструкция пользователя по применению, эксплуатации и установке на русском языке. Мы надеемся, она поможет вам решить возникшие у вас вопросы при эксплуатации техники.

Если остались дополнительные вопросы — свяжитесь с нами через контактную форму.

1 Страница 1
2 Страница 2
3 Страница 3
4 Страница 4
5 Страница 5
6 Страница 6
7 Страница 7
8 Страница 8
9 Страница 9
10 Страница 10
11 Страница 11
12 Страница 12
13 Страница 13
14 Страница 14
15 Страница 15
16 Страница 16
Страница: / 16

Содержание:

  • Страница 4 – ТЕХНИЧЕСКИЕ
  • Страница 5 – NOVELLA RSI PV; ГИДРАВЛИЧЕСКАЯ; GAS –
  • Страница 6 – NOVELLA RAI – RSI PV; Напо
  • Страница 7 – CONNECT; ПРИНЦИПИАЛЬНЫЕ; AQUAMAX
  • Страница 9 – NOVELLA RAI – RAI PV
  • Страница 10 – ПОДКЛЮЧЕНИЕ
  • Страница 11 – NOVELLA RAI; CONNECT BASE
  • Страница 13 – ⁄2’ 1⁄2’ 1⁄2’ 1⁄2’ 3⁄4’ 3⁄4’ 1⁄2’ 1⁄2’ 1⁄2’ 1⁄2’; АВ
  • Страница 14 – NOVELLA; ОТКРЫТАЯ; PV
Загрузка инструкции

Н

Н

А

А

П

П

О

О

Л

Л

Ь

Ь

Н

Н

Ы

Ы

Е

Е

К

К

О

О

Т

Т

Л

Л

Ы

Ы

N

N

O

O

V

V

E

E

L

L

L

L

A

A

NOVELLA

Напольный

чугунный

котел

с

атмосферной

газовой

горелкой

NOVELLA

предназначен

для

отопления

помещений

различного

назначения

.

Артикул

Наименование

1650603

NOVELLA 24 R.A.I. PV

1650623

NOVELLA 31 R.A.I. PV

1100063

NOVELLA 31 R.A.I.

1100083

NOVELLA 38 R.A.I.

1650643

NOVELLA 45 R.A.I.

1650663

NOVELLA 55 R.A.I.

1650683

NOVELLA 64 R.A.I.

1650703

NOVELLA 71 R.A.I.

2410333

NOVELLA 26 R.S.I. PV

2410343

NOVELLA 32 R.S.I. PV

РАСШИФРОВКА

НАЗВАНИЯ

NOVELLA 45 R A

I PV

Встроенные

расширительный

бак

и

циркуляционный

насос

Электророзжиг

и

ионизационный

контроль

наличия

пламени

S –

закрытая

камера

сгорания

A –

открытая

камера

сгорания

Одноконтурный

котел

(

только

отопление

)

24, 31, 38, 45, 55, 64, 71 –

округленная

полезная

тепловая

мощность

(

кВт

)

Название

серии

ОСОБЕННОСТИ

Чугунные

секции

котла

собственной

разработки

из

высококачественного

чугуна

.

Плавный

автоматический

электророзжиг

с

ионизационным

контролем

пламени

.

Наличие

закрытой

камеры

сгорания

(

для

моделей

NOVELLA RSI).

Позволяет

производить

забор

воздуха

из

-

за

пределов

помещения

,

где

установлен

котел

,

и

удалять

продукты

горения

через

наружную

стену

.

Возможность

подключения

бойлера

-

аккумулятора

ГВС

,

выполненного

в

том

же

дизайне

.

Для

моделей

24 RAI PV, 26 RSI PV, 31 RAI, 31 RAI PV, 32 RSI PV

и

38 RAI

рекомендуется

бойлер

RO

120

объемом

120

л

,

для

моделей

45 RAI, 55 RAI, 64 RAI

и

71 RAI

рекомендуется

бойлер

AQUAMAX

объемом

220

л

.

Наличие

встроенных

циркуляционного

насоса

,

расширительного

бака

и

предохранительного

клапана

(

для

моделей

NOVELLA PV)

Упрощает

монтаж

котла

в

систему

отопления

.

Возможность

работы

на

сжиженном

газе

.

РЕЖИМЫ

РАБОТЫ

«ON»

При

наличие

запроса

на

от

системы

отопления

котел

разжигается

и

работает

до

тех

пор

,

пока

температура

воды

в

системе

отопления

не

достигнет

заданной

на

регуляторе

температуры

.

«OFF»

Котел

отключен

.

"Загрузка инструкции" означает, что нужно подождать пока файл загрузится и можно будет его читать онлайн. Некоторые инструкции очень большие и время их появления зависит от вашей скорости интернета.

Краткое содержание

Страница 4 - ТЕХНИЧЕСКИЕ

Н Н А А П П О О Л Л Ь Ь Н Н Ы Ы Е Е К К О О Т Т Л Л Ы Ы N N O O V V E E L L L L A A 1 Панель управления 2 Гильзы для датчиков котла 3 Корпус котла 4 Блок розжига и контроля пламени 5 Циркуляционный насос 6 Клапан для слива воды из котла 7 Электрод розжига 8 Электрод контроля пламени 9 Горелка 10 Газ...

Страница 5 - NOVELLA RSI PV; ГИДРАВЛИЧЕСКАЯ; GAS –

Н Н А А П П О О Л Л Ь Ь Н Н Ы Ы Е Е К К О О Т Т Л Л Ы Ы N N O O V V E E L L L L A A Дымоудаление и забор воздуха для горения Расход дымовых газов при макс . мощности (G20) кг / сек 0,018 0,023 0,023 0,028 0,034 0,045 0,044 0,046 0,015 0,015 Расход воздуха для горения нм 3 / ч 55,32 69,18 69,18 69,1 ...

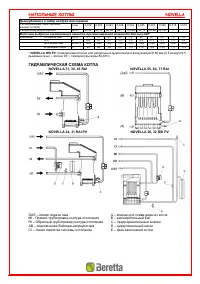
Страница 6 - NOVELLA RAI – RSI PV; Напо

Н Н А А П П О О Л Л Ь Ь Н Н Ы Ы Е Е К К О О Т Т Л Л Ы Ы N N O O V V E E L L L L A A ГИДРАВЛИЧЕСКИЕ ХАРАКТЕРИСТИКИ Для гидравлического расчета контура отопления рекомендуется использовать приведенные ниже гидравлические характеристики котлов NOVELLA. Потери напора ( м . в . ст .) Производительность (...

Характеристики

Другие модели - Котлы Beretta

Все котлы Beretta