Страница 4 - ТЕХНИЧЕСКИЕ
Н Н А А П П О О Л Л Ь Ь Н Н Ы Ы Е Е К К О О Т Т Л Л Ы Ы N N O O V V E E L L L L A A 1 Панель управления 2 Гильзы для датчиков котла 3 Корпус котла 4 Блок розжига и контроля пламени 5 Циркуляционный насос 6 Клапан для слива воды из котла 7 Электрод розжига 8 Электрод контроля пламени 9 Горелка 10 Газ...
Страница 5 - NOVELLA RSI PV; ГИДРАВЛИЧЕСКАЯ; GAS –
Н Н А А П П О О Л Л Ь Ь Н Н Ы Ы Е Е К К О О Т Т Л Л Ы Ы N N O O V V E E L L L L A A Дымоудаление и забор воздуха для горения Расход дымовых газов при макс . мощности (G20) кг / сек 0,018 0,023 0,023 0,028 0,034 0,045 0,044 0,046 0,015 0,015 Расход воздуха для горения нм 3 / ч 55,32 69,18 69,18 69,1 ...
Страница 6 - NOVELLA RAI – RSI PV; Напо
Н Н А А П П О О Л Л Ь Ь Н Н Ы Ы Е Е К К О О Т Т Л Л Ы Ы N N O O V V E E L L L L A A ГИДРАВЛИЧЕСКИЕ ХАРАКТЕРИСТИКИ Для гидравлического расчета контура отопления рекомендуется использовать приведенные ниже гидравлические характеристики котлов NOVELLA. Потери напора ( м . в . ст .) Производительность (...
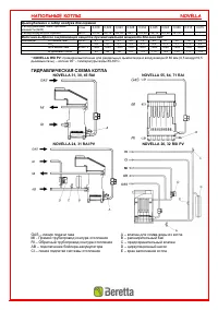
Страница 7 - CONNECT; ПРИНЦИПИАЛЬНЫЕ; AQUAMAX
Н Н А А П П О О Л Л Ь Ь Н Н Ы Ы Е Е К К О О Т Т Л Л Ы Ы N N O O V V E E L L L L A A Novella 26 – 32 RSI PV Напор ( м . в . ст .) Производительность ( л / ч ) Если гидравлическое сопротивление контура отопления не может быть преодолено с помощью стандартного насоса возможна установка циркуляционного ...
Страница 9 - NOVELLA RAI – RAI PV
Н Н А А П П О О Л Л Ь Ь Н Н Ы Ы Е Е К К О О Т Т Л Л Ы Ы N N O O V V E E L L L L A A ТРЕБОВАНИЯ К КАЧЕСТВУ ВОДЫ И ЭЛЕМЕНТАМ СИСТЕМЫ ТЕПЛОСНАБЖЕНИЯ Данный котел предназначен для закрытых систем отопления с принудительной циркуляцией . Для обеспечения длительной и эффективной работы котла и системы ото...
Страница 10 - ПОДКЛЮЧЕНИЕ
Н Н А А П П О О Л Л Ь Ь Н Н Ы Ы Е Е К К О О Т Т Л Л Ы Ы N N O O V V E E L L L L A A NOVELLA RSI PV IG – главный выключатель FU – предохранитель LV – зеленый световой индикатор ( работа котла ) LR – красный световой индикатор ( блокировка горелки ) RS – кнопка разблокировки горелки TR – регулирующий ...
Страница 11 - NOVELLA RAI; CONNECT BASE
Н Н А А П П О О Л Л Ь Ь Н Н Ы Ы Е Е К К О О Т Т Л Л Ы Ы N N O O V V E E L L L L A A ПОДКЛЮЧЕНИЕ ВНЕШНИХ УСТРОЙСТВ Регулятор комнатной температуры ( артикул 695449, 1100279) Регулятор комнатной температуры ( ТА ) подключается к клеммам 4-5 вместо установленной на заводе перемычки . Контакты регулятор...
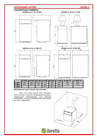
Страница 13 - ⁄2’ 1⁄2’ 1⁄2’ 1⁄2’ 3⁄4’ 3⁄4’ 1⁄2’ 1⁄2’ 1⁄2’ 1⁄2’; АВ
Н Н А А П П О О Л Л Ь Ь Н Н Ы Ы Е Е К К О О Т Т Л Л Ы Ы N N O O V V E E L L L L A A ПРИСОЕДИНИТЕЛЬНЫЕ РАЗМЕРЫ NOVELLA 31, 38, 45 RAI NOVELLA 55, 64, 71 RAI NOVELLA 24, 31 RAI PV NOVELLA 26, 32 RSI PV (*) – внутренняя резьба 31 RAI 38 RAI 45 RAI 55 RAI 64 RAI 71 RAI 24 RAI PV 31 RAI PV 26 RSI PV 32 R...
Страница 14 - NOVELLA; ОТКРЫТАЯ; PV
Н Н А А П П О О Л Л Ь Ь Н Н Ы Ы Е Е К К О О Т Т Л Л Ы Ы N N O O V V E E L L L L A A РАБОТА НА СЖИЖЕННОМ НЕФТЯНОМ ГАЗЕ Котлы NOVELLA поставляются подготовленные для работы на природном газе . Для перевода котла для работы на сжиженном нефтяном газе ( пропан - бутан ) необходимо установить на котел ко...