Страница 3 - ЭЛЕКТРИЧЕСКИЕ ВОДОНАГРЕВАТЕЛИ; Сталь с эмалевым покрытием; - Водосодержащая емкость серии PRO1 R INOX ABS -; или в представительство компании-производителя.; ЭЛЕКТРИЧЕСКИЕ ВОДОНАГРЕВАТЕЛИ; Модель; Сталь с эмалевым покрытием; ГАРАНТИЙНЫЙ ТАЛОН
ГАРАНТИЙНЫЙ ТАЛОН ЭЛЕКТРИЧЕСКИЕ ВОДОНАГРЕВАТЕЛИ Просим Вас хранить талон в течение всего гарантийного срока. При покупке изделия требуйте заполнения гарантийного талона. Просим Вас осмотреть водонагреватель и проверить комплектность до заполнения гарантийного талона. Претензии по механическим повреж...
Страница 7 - ОБЩИЕ ТРЕБОВАНИЯ
7 ОБЩИЕ ТРЕБОВАНИЯ 1. Данная инструкция входит в комплект поставки водонагревателя. Храните инструкцию в доступном месте на случай передачи при-бора другому пользователю и/или перемещения на другое место эксплуатации. 2. Внимательно изучите данную инструкцию. В руководстве содер- жится необходимая и...
Страница 9 - Символ Значение
Перед чисткой водонагревателя отключите его от сети электропитания, вынув вилку из розетки или разомкнув сетевой выключатель 10 11 12 Закрепите прибор на прочной стене, не способствующейусилению вибрации Для электрических соединений используйте кабелис жилами соответствующего сечения Перед пуском пр...
Страница 10 - ТЕХНИЧЕСКИЕ ХАРАКТЕРИСТИКИ
Поздравляем Вас с приобретением электрического водонагревателя, произведенного компанией «Аристон Термо Групп». Данное оборудование разработано в соответствии с европейскими стандартами качества и отвечает заявленным техническим характеристикам. Водонагреватель прост в обращении, имеет высокие потре...
Страница 11 - Фланец на 5-ти болтах
2.2. Гидравлическое подключение Внимание! Установка предохранительного клапана, входящего в комплект поставки, является обязательным требованием. Запрещается устанавливать любую запорную арматуру между предохранительным клапаном и входом холодной воды в водонагреватель, а также блокировать сливное о...
Страница 12 - ВКЛЮЧЕНИЕ И РАБОТА
3. ВКЛЮЧЕНИЕ И РАБОТА 3.1. Ввод в эксплуатацию 3.1.1. Перекройте подачу горячей воды системы центрального водоснабжения. Перед подключением водонагревателя к источнику электропитания обязательно заполните бак водой. Для этого откройте кран горячей воды на смесителе, потом кран подачи холодной воды в...
Страница 24 - ТЕХНІЧНЕ ОБСЛУГОВУВАННЯ І РЕМОНТ
А B C 2.2. Гидравлическое подключение Внимание! Установка предохранительного клапана, входящего в комплект поставки, является обязательным требованием. Запрещается устанавливать любую запорную арматуру между предохранительным клапаном и входом в бак, а также блокировать сливное отверстие предохранит...
Страница 36 - ҚОСУ ЖӘНЕ ЖҰМЫС ІСТЕУ
Су жылытқышты тазалар алдында вилканы розеткадан суырып немесе желілік ажыратқышты ажыратып, оны электр желісінен ажыратыңыз 10 11 12 Құрылғыны дірілдің күшеюіне әсер етпейтін мықты қабырғаға орнатыңыз Электрлік қосылыстар үшін қимасы сәйкес тарамы бар кабельдерді қолданыңыз Құрылғыны іске қосар алд...
Страница 43 - საერთო მოთხოვნები
43 GE Печать сервисного центра Печать сервисного центра Печать сервисного центра მიღების თარიღი გაცემის თარიღი წუნი შესრულებული სამუშაო ხელოსანი (გვარი, სახელი, მამის სახელი) Дата приема Дата выдачи Дефект Выполненная работа Мастер (Ф.И.О. ) Дата приема Дата выдачи Дефект Выполненная работа Мастер (...
Страница 58 - Идентификационная табличка
Идентификационная табличка Data plate Серийный номер Serial number 12 3 4 5 6 7 8 11 Hz 10 9 код продукта код продукту product code код завода код заводу code of the plant год производства рік виробництва year of production день производства день виробництва day of production порядковый номер порядк...
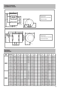
Страница 59 - Recommendation on the storage water heater installation
Рекомендации по монтажу накопительного электрического водонагревателя Recommendation on the storage water heater installation Тройник с запорным краном Tee with stopcock Сливной шланг Drain hose Запорный кран Stopcock D B Предохранительный клапан Safety valve A C B B D D A C ХОЛОДНАЯ ВОДА | COLD WAT...
Страница 60 - TEST
Устройство водонагревателя Water heater device 7 8 10 12 13 9 1 23 4 5 6 TEST LIGH T TEST LIGHT RES ET RES ET 11 7 8 10 12 13 9 1 4 5 6 2 3 TEST LIGHT TEST LIGHT RES ET RES ET 11 14 14 1. Внешний корпус 2. Кронштейн 3. Внутренний бак 4. Выход горячей воды 5. Магниевый анод 6. Вход холодной воды 7. Т...